Beschrijving

In de rustige Schoolstraat, midden in de wijk Blijham, staat deze karakteristieke vrijstaande eengezinswoning (bouwjaar 1925) op een ruim perceel van 394 m². De woning is keurig onderhouden en heeft een verzorgde afwerking. Daarnaast beschikt de woning over zonnepanelen en extra isolatie wat resulteert in een energielabel C. Extra is de royale vrijstaande garage met bergzolder en een keurige aangelegde tuin op het Westen. Daarnaast zijn er op de verdieping drie goede slaapkamers én op de begane grond een slaapkamer en badkamer. Deze woning biedt ruimte, comfort en sfeer en is klaar voor een nieuwe bewoner.

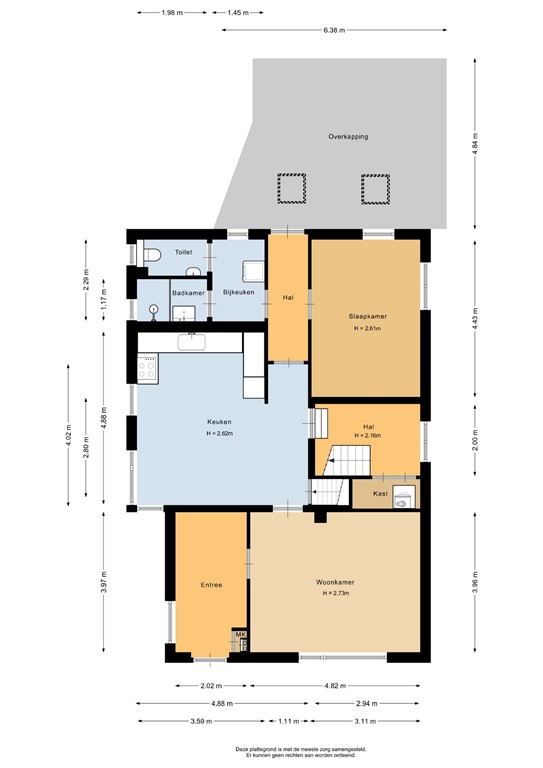
Middels de lichte entree (8 m²) met plavuizen is deze sfeervolle woning te betreden en aansluitend  kom je binnen in de zonnige woonkamer (19 m²), voorzien van een nette parketvloer. De ruime woonkeuken (22 m²) beschikt over een landelijke inbouwkeuken in hoekopstelling met o.a. een inductiekookplaat (2021), afzuigkap, vaatwasser, oven en koelkast en vanuit  de keuken is er toegang tot de grote kelder van 12 m² – ideaal voor extra opslag. Daarnaast beschikt deze woning over een slaapkamer van 13 m² en een badkamer op de begane grond. De bijkeuken, toiletruimte en de achterhal maken het geheel compleet.

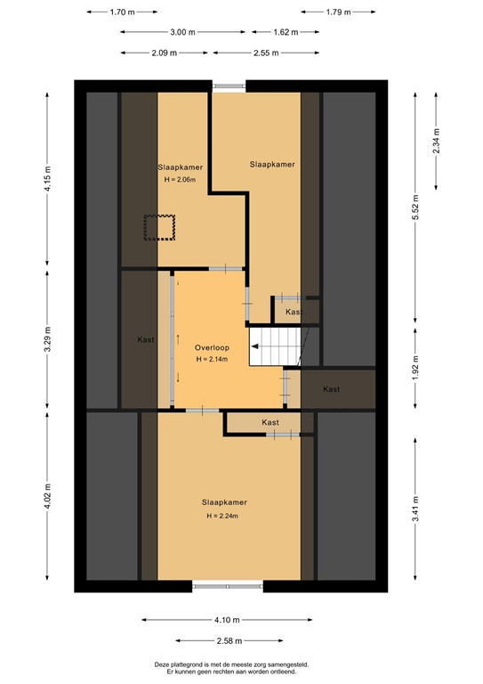
Op de eerste verdieping beschikt deze woning eveneens over veel ruimte. De grote overloop (8,5 m²) beschikt over inbouwkasten geeft toegang tot drie slaapkamers (8,7 – 14 – 16,5 m²), allen met laminaatvloer en opbergruimte.

De woning beschikt over een fraai aangelegde voortuin (2022) en een keurig onderhouden achtertuin op het westen. Hier vind je o.a. een royale overkapping (30 m²), een sfeervolle vijverpartij (2021) en een volledig bestrate oprit (2011 vernieuwd). Door de gunstige ligging heb je ’s middags en ’s avonds volop zon in de achtertuin en onder de overkapping.

De vrijstaande in spouw gebouwde garage (41 m²) met elektrische deur biedt volop mogelijkheden. Met een ruime zolderverdieping (22 m²) is dit de ideale plek voor hobby, opslag of werkplaats.

Kortom een sfeervolle woning met veel woonoppervlak en een heerlijke tuin op het Westen. Deze fijne woning is daarnaast gelegen op loopafstand van basisschool, supermarkt en sportvelden. Wilt u deze woning bezichtigen? Neem dan contact op met Ommeland Makelaardij en we laten u graag de woning zien.

Indeling

Entree, 8 m², v.v. plavuizen, structuur en veel lichtinval.
Woonkamer, 19 m², v.v. parketvloer.
Woonkeuken, 22 m², v.v. laminaatvloer, landelijke inbouwkeuken in hoekopstelling met inductiekookplaat, afzuigkap, vaatwasser, oven en een koelkast.
Hal, 3.6 m², met deur naar de tuin/overkapping.
Slaapkamer beneden, 13 m², v.v. laminaatvloer en structuur.
Bijkeuken, 3.3 m², volledig betegeld en met aansluiting wasautomaat.
Badkamer, 2.3 m², met douchecabine met stortdouche en een wastafelmeubel.
Toiletruimte, 2.2 m², met (hang)closet en fonteintje.
Opkamer met wasruimte, 6 m², met trapopgang en v.v. cv-ruimte met aansluiting voor de combiketel.

Diversen:
Vrijstaande garage, 41 m², in spouw gebouwd, met vlieringzolder (22 m²), elektrische deur
Overkapping, 30 m².
Kelder, 12 m², via de keuken te bereiken.

Eerste verdieping

Overloop, 8.5 m², met inbouwkastenwand en voorraadkast.
1e slaapkamer, 8.7 m², v.v. laminaatvloer en inbouwkast.
2e slaapkamer, 14 m², v.v. laminaatvloer en dakraam.
3e slaapkamer, 16.5 m², v.v. laminaatvloer en inbouwkastenwand.

Tuin

Voortuin, fraai aangelegd in 2022 en ingericht als siertuin.
Oprit, geheel bestraat 
Achtertuin, keurig aangelegd en gelegen op het Westen, met een sfeervolle vijverpartij, overkapping en royale garage.

Bijzonderheden

Waarom Schoolstraat 21 jouw nieuwe thuis kan zijn
*	Vrijstaand wonen op een ruim perceel
* Gelegen in een rustige straat (eenrichtingsverkeer)
*	Slaapkamer en badkamer op de begane grond
*	Grote kelder en zeer royale garage
*	Fraaie tuin met overkapping en vijver
*	Energielabel C met o.a.  10 zonnepanelen
*	Vernieuwde meterkast (2019)
*	CV-ketel uit 2018 (onderhoud juni 2024)
*	Glasvezelaansluiting
*	Dakisolatie en spouwmuurisolatie (2022/2023)
*	Recent schilderwerk (woning 2024, garage/veranda 2025)

Kenmerken