Beschrijving

Aan een karakteristieke straat in Hoogezand staat deze sfeervolle jaren ’30 woning met authentieke details, een verrassend ruime woonkeuken en een zonnige tuin. De woning combineert de charme van vroeger, zoals de fraaie en-suite deuren, erker en de terugvallende entree met het comfort van nu, denk aan vloerverwarming, elektrische laadpunt voor de auto, zonnepanelen en meer. Met een woonoppervlakte van circa 108 m², een perceel van 280 m² en diverse verbeteringen op het gebied van isolatie en duurzaamheid is dit een heerlijke plek om thuis te komen.

Bij binnenkomst valt direct de sfeer van de jaren ’30 op. De entree met plavuizenvloer en trapopgang geeft toegang tot de voorkamer van circa 13 m² met erker en de originele en-suite deuren. Deze kamer staat in verbinding met de woonkamer van circa 21 m², waardoor u de ruimte eenvoudig kunt indelen als zit- en eetkamer of als separate leefruimtes. 
Aan de achterzijde van de woning bevindt zich de royale woonkeuken van circa 21 m², die in 2000 is gerealiseerd door een uitbouw. Tevens is de gehele aanbouw v.v. van vloerverwarming. Deze tuingerichte ruimte vormt het hart van het huis en is voorzien van een plavuizenvloer en een complete inbouwkeuken met inductiekookplaat, afzuigkap, oven, magnetron, vaatwasser en koelkast. Vanuit hier heeft u prettig zicht op de tuin. Via de achterhal bereikt u het moderne toilet met hangcloset en fonteintje en aansluitend bevindt zich de praktische bijkeuken met de opstelling van de boiler, cv-ketel en witgoedaansluitingen. 

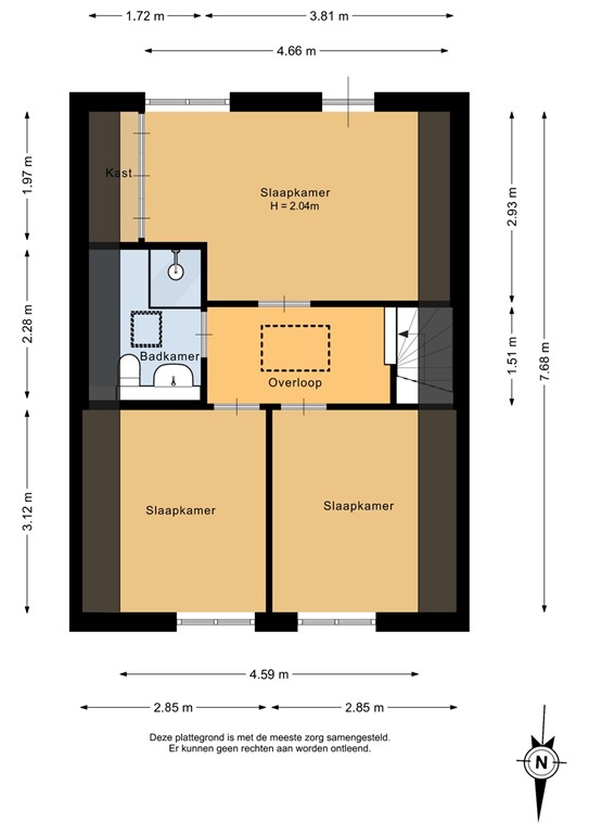
Op de eerste verdieping bevinden zich drie slaapkamers. Twee kamers liggen aan de voorzijde van de woning (beide ca. 9m²) en de derde, ruimere slaapkamer aan de achterzijde beschikt over een inbouwkastenwand en een tuindeur. De badkamer is compact maar compleet ingericht met een hangcloset, wastafel, douchecabine en verwarming.
Via een vlizotrap bereikt u de tweede verdieping met een praktische zoldervliering van circa 6,5 m². Dankzij de mansardekap is deze verdieping goed bruikbaar als bergruimte. Onder de woning bevindt zich een kelder van circa 6 m² met een hoogte van ongeveer 1,30 meter. Daarnaast is er een vrijstaande berging van circa 23,5 m², verdeeld in twee units, ideaal voor opslag, fietsen of hobbyruimte.

De woning beschikt over meerdere tuinen rondom het huis. De voortuin ligt op het noorden en is netjes onderhouden. Aan de zijkanten bevinden zich twee zijtuinen: één op het westen en één op het oosten, waarbij de oostzijde momenteel in gebruik is als oprit. De achtertuin van circa 82 m² ligt gunstig op het zuiden en is onderhoudsvriendelijk aangelegd met bestrating. Hier kunt u volop genieten van zon en privacy.

De woning is door de jaren heen goed onderhouden en op diverse punten verbeterd. In 2000 is de woning aan de achterzijde uitgebouwd en is de volledige elektra-installatie vernieuwd. Daarnaast is extra isolatie aangebracht in vloer, dak en muren en is de woning voorzien van volledig (HR) dubbelglas. In 2023 zijn bovendien 8 zonnepanelen geplaatst. In combinatie met de combiketel (CW5) resulteert dit in energielabel C.

Hoogezand is een levendige plaats met een compleet voorzieningenaanbod. In de directe omgeving vindt u winkels, scholen, sportvoorzieningen en recreatiemogelijkheden. Het winkelcentrum van Hoogezand, het treinstation en diverse uitvalswegen liggen op korte afstand, waardoor ook de stad Groningen uitstekend bereikbaar is. Dit maakt Hoogezand een aantrekkelijke woonplek voor wie rustig wil wonen met alle voorzieningen binnen handbereik.

De Burgemeester van Roijenstraat 97 is een karaktervolle en comfortabele woning waar de charme van de jaren ’30 prachtig samenkomt met hedendaags wooncomfort. Met een ruime woonkeuken, drie slaapkamers, een zonnige tuin en een gunstige ligging nabij voorzieningen is dit een woning die u zeker van binnen moet beleven.

Wilt u deze heerlijke en sfeervolle woning komen bezichtigen? Maak dan een afspraak met de makelaars van Ommeland Makelaardij en u bent van harte welkom!

Indeling

Entree, 7.4 m², v.v. plavuizen vloer, trapopgang en meterkast.
Voorkamer, en-suite, 12.9 m², v.v. laminaatvloer, erker en fraaie suite-deuren.
Woonkamer, 21 m², v.v. laminaatvloer en grenzend aan de voorkamer dus dezelfde suite-deuren.
Woonkeuken, 21 m², tuingericht gelegen en v.v. plavuizen vloer met een inbouwkeuken v.v. inductiekookplaat, afzuigkap, oven, magnetron, vaatwasser en koelkast.
Bijkeuken, v.v. boiler, cv-ketel en aansluitingen voor het witgoed.
Hal/achterentree, 5 m², v.v. plavuizen vloer en structuur.
Toiletruimte, v.v. (hang)closet met fontein.

Diversen:
Kelder, 6 m², met een hoogte van 1.3 meter.
Vrijstaande berging, 23.5 m² opgedeeld in 2 units van ca. 11 en 12 m².

Eerste verdieping

Overloop, 5.7 m², met vlizoluik naar de 2e verdieping.
1e slaapkamer, 9 m², gelegen aan de voorzijde van de woning.
2e slaapkamer, 9 m², gelegen aan de voorzijde van de woning.
3e slaapkamer, 13.6 m², v.v. inbouwkastenwand, schroten en tuindeur
Badkamer, 4 m², v.v. (hang)closet, wastafel, douchecabine en verwarming.

Tweede verdieping

Zoldervliering, 6.5 m² middels vlizo-trap te bereiken goede bergzolder en geheel beloopbaar.

Tuin

Voortuin 29 m² gelegen op het Noorden, netjes onderhouden
Zijtuin 22 m², gelegen op het Westen. 
Zijtuin, 26 m², gelegen op het Oosten, in gebruik als oprit.
Achtertuin 82, gelegen op het Zuiden, geheel bestraat en onderhoudsvriendelijk aangelegd.

Bijzonderheden

* Sfeervolle jaren '30 woning.
* Met originele en-suite voorkamer, erker en terugvallende entree.
* De woning is in 2000 uitgebouwd aan de achterzijde met vloerverwarming
* Elektrische laadpunt voor de auto.
* Zo is er een woonkeuken, bijkeuken en toiletruimte gerealiseerd.
* De woning beschikt over een Combiketel (CW5)
* Er is extra isolatie aangebracht aan vloeren, dak en muren
* Daarnaast is de woning (bijna) geheel v.v. dubbele beglazing HR. 
* Er is dan ook een Energielabel C van toepassing op deze heerlijke woning.
* Door de mansarde-kap is er ook een ruime zolderberging aanwezig.
* De ligging is ideaal, nabij uitvalswegen, treinstation en het winkelcentrum van Hoogezand.

Kenmerken