Beschrijving

Ruim driekamerappartement met eigen berging en garage !

Gelegen in het centrum van Hoogezand ligt dit verrassend ruime driekamerappartement dat uitblinkt door licht, comfort en een heerlijk balkon op het zuiden. De brede raampartijen geven de woonkamer een open sfeer en bieden een vrij uitzicht op de Kerkstraat. Het energielabel B laat zien dat het appartement energiezuinig is, kunststof kozijnen met isolerende beglazing zorgen voor een comfortabel binnenklimaat. De keuken uit 2023 biedt u veel inbouwapparatuur en geeft de woning een frisse en moderne uitstraling.

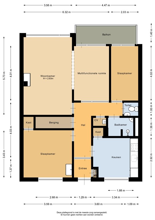
De indeling voelt logisch en ruim. Het tochtportaal leidt naar een verzorgde hal met ruime berging en een separaat toilet. De woonkamer van circa 30 m2 ontvangt veel daglicht en vormt een uitnodigende leefruimte met directe toegang tot het balkon. Dit balkon is gelegen op het zuiden biedt een fijne plek en een vrij zicht aan de voorzijde.

De keuken is in 2023 volledig vernieuwd en beschikt over moderne inbouwapparatuur, een frisse uitstraling en veel ruimte. Twee slaapkamers van mooi formaat bieden een goede indeling voor een hoofdslaapkamer en een logeer- of werkkamer. De badkamer is praktisch ingedeeld met een douche en wastafel en sluit aan bij het verzorgde karakter van het appartement.

In het souterrain bevinden zich een eigen fietsenberging van 5 m² en daarnaast is er een garagebox van 16 m², geschikt is voor de auto of extra opslag. Het balkon vormt een fijne buitenruimte waar u op zonnige dagen geniet van het uitzicht.

Het appartement ligt in een aantrekkelijke woonomgeving met winkels, openbaar vervoer, horeca en dagelijkse voorzieningen op loopafstand. De verbinding naar Groningen is snel en direct, deze interessante locatie is ideaal voor het centraal wonen met alle gemakken binnen handbereik.

Dit verzorgde appartement biedt een prettige leefruimte, een net afwerkingsniveau en fijne extra's zoals een garage en een berging. Bent u benieuwd naar dit zonnige appartement op deze centrale locatie in Hoogezand? Neem dan contact op met Ommeland Makelaardij en Assurantiën voor een bezichtiging.

Indeling

Indeling
Centrale entree met videofooninstallatie en afgesloten trappenhuis met lift.
Tochtportaal met toegang tot de hal.
Hal, 5 m², L-vorm met  v.v. laminaat 
Toiletruimte met fonteintje.
Woonkamer, 30 m², v.v. parketvloer, haard en grote raampartijen met toegang tot het balkon op het zuiden.
Keuken, 10 m², ruim opgezet en vernieuwd in 2023, v.v. moderne inbouwapparatuur, inductiekookplaat, afzuigkap, koelkast, oven en een vaste kast.
1e slaapkamer, 12 m², .v.v. laminaatvloer en wastafelmeubel.
2e slaapkamer, 8 m², v.v. parketvloer.
Badkamer,  3 m², v.v. vaste wastafel, douche-hoek en aansluitingen voor het witgoed.

Diversen:
Balkon, 6 m², gelegen op het zuiden.
Fietsenberging, 5 m², inpandig en v.v. elektra.
Garagebox, 16 m², v.v. schuifkanteldeur.

Balkon

Balkon gelegen op het zuiden, circa 6 m².

Bijzonderheden

* Energielabel B !
* Kunststof kozijnen met isolerende beglazing
* Keuken vernieuwd in 2023 en v.v. moderne inbouwapparatuur
* Verwarming via blokverwarming
* Warm water via elektrische boiler (huur)
* Balkon op het zuiden
* Eigen garagebox en inpandige fietsenberging
* Woonoppervlakte 84 m²
* Centrale ligging in Hoogezand met winkels en voorzieningen op loopafstand
* Actieve VvE waarvan de servicekosten circa € 330,= per maand bedragen (dit bedrag is incl. de stookkosten).

Kenmerken