| Adres: | Beneden Veensloot 9, 9651 CH Meeden |
| Prijs | € 495.000,- k.k. |
| Type object | Woonhuis, eengezinswoning, vrijstaande woning |
| Perceeloppervlakte | 1.145 m² |
| Woonoppervlakte | 167 m² |
| Aanvaarding | In overleg |
| Status | Nieuw in verkoop |
Landelijk wonen met ruimte, comfort en privacy – dat is precies wat deze sfeervolle en verrassend ruime woning uit 1930/2003 u te bieden heeft. Gelegen op een royaal perceel van maar liefst 1.145 m², met vrij uitzicht over de landerijen aan de voorzijde en een diepe groene tuin aan de achterzijde, is dit een plek waar rust en vrijheid centraal staan. Met een woonoppervlakte van circa 167 m², drie slaapkamers en een levensloopbestendige indeling is dit een ideale woning voor gezinnen én voor wie gelijkvloers wil wonen. De woning is in 2003 uitgebouwd en biedt daardoor een verrassend ruime en praktische indeling. Via de entree komt u in de hal met meterkast. De woonkamer van circa 35 m² is een lichte en comfortabele leefruimte met vrij uitzicht aan de voorzijde. De royale woonkeuken van circa 21 m² vormt het hart van het huis en is in 2022 vernieuwd. Deze moderne keuken is voorzien van hoogwaardige inbouwapparatuur, een duurzaam Dekton werkblad, een 5-pits inductiekookplaat en een close-in boiler. Hier is volop ruimte om te koken en gezellig samen te zijn. De woning beschikt op de begane grond over een luxe badkamer van circa 13 m², vernieuwd in 2019 en voorzien van vloerverwarming, een ligbad, inloopdouche, dubbele wastafel en een tweede toilet. Daarnaast is er een separate toiletruimte die in 2018 is gemoderniseerd. Een groot pluspunt is de ruime slaapkamer op de begane grond van circa 23 m², met openslaande deuren naar de veranda en een praktische room-divider met inbouwkast. Dit maakt de woning uitermate geschikt voor levensloopbestendig wonen. Verder vindt u op de begane grond een wasruimte met witgoedaansluitingen en extra bergruimte. Op de eerste verdieping bevinden zich nog twee slaapkamers van circa 17 m² en 10 m². Daarnaast is er een royale tussenruimte van circa 18 m² met hoog plafond en veel bergruimte, die ook mogelijkheden biedt voor het realiseren van een extra kamer of werkruimte. Rondom de woning ligt een prachtige tuin met volop ruimte en privacy. De achtertuin van circa 672 m² is groen aangelegd met meerdere terrassen, gazon en volwassen beplanting. Hier vindt u fruitbomen, druiven en frambozen, wat het buitenleven extra aantrekkelijk maakt. De voortuin van circa 110 m² ligt op het zuiden en biedt een vrij uitzicht over de landerijen. Daarnaast zijn er twee zijtuinen en een ruime oprit met parkeergelegenheid voor meerdere auto’s op eigen terrein. De woning beschikt over diverse bijgebouwen, waaronder een multifunctioneel geïsoleerd bijgebouw van circa 24,5 m² (geschikt als garage, werkruimte of hobbyruimte), een tuinberging en een extra houten berging. De overkapping/veranda van circa 15 m² grenst direct aan de slaapkamer en vormt een heerlijke plek om beschut buiten te zitten. De woning is de afgelopen jaren op veel punten verbeterd en verduurzaamd. Zo zijn er 18 zonnepanelen geplaatst, is de woning voorzien van gevel- en vloerisolatie (EPS, 2023) en is de cv-ketel (Remeha Tzerra Ace 39C) in 2022 vernieuwd. Daarnaast is er een modern Tado verwarmingssysteem aanwezig en beschikt de woning over een waterontharder en een eigen waterbron voor tuin en kas. Meeden is een rustig en gemoedelijk dorp in de gemeente Midden-Groningen, waar u geniet van ruimte, natuur en een hechte gemeenschap. In de directe omgeving vindt u prachtige wandel- en fietsroutes door het open landschap, terwijl voorzieningen zoals winkels, scholen en sportfaciliteiten zich in de nabijgelegen plaatsen bevinden. Dankzij de gunstige ligging zijn plaatsen als Veendam, Winschoten en Groningen goed bereikbaar. Hier woont u landelijk, maar niet afgelegen. Beneden Veensloot 9 is een ruime, sfeervolle en goed onderhouden woning met een unieke combinatie van landelijk wonen, comfort en duurzaamheid. Met een slaapkamer en badkamer op de begane grond, een royale tuin, meerdere bijgebouwen en vrij uitzicht is dit een plek waar u optimaal kunt genieten van rust en ruimte. Een complete vrijstaande woning met moderne voorzieningen, een praktische indeling en een buitenruimte die direct uitnodigt om te genieten. Interesse? Neem snel contact op met de makelaars van Ommeland Makelaardij voor een bezichtiging!
Entree, 4 m², v.v. een laminaatvloer en meterkast. Woonkamer, 35 m², ruime en lichte leefruimte met een laminaatvloer en vrij uitzicht aan de voorzijde. Gesloten hal, 4 m² met trapopgang naar de verdieping. Bijkeuken, 6 m², voorzien van wasmachine aansluiting en extra bergruimte. Woonkeuken 21 m², met moderne inbouwapparatuur, duurzaam Dekton werkblad, een 5-pits inductiekookplaat en een close-in boiler (10 liter). Luxe badkamer ca. 13 m², modern uitgevoerd met dubbele wastafel, ligbad, inloopdouche en hangtoilet en vloerverwarming. Gang 5 m², met toegang tot diverse vertrekken. Toiletruimte, v.v. modern (hang)closet met fonteintje. Slaapkamer beneden, 23 m², v.v. een nette vloer openslaande deuren naar de overkapping en een room-divider naar de inbouwkast. Diversen: Multifunctioneel bijgebouw, 24.5 m², geïsoleerd en geschikt als garage, werkruimte, hobbyruimte of opslag Tuinberging, 12 m², ideaal voor tuinmateriaal en opslag Houten berging, 17 m², ruime aanvullende opslagruimte Overkapping / veranda, 15 m², grenzend aan de slaapkamer.
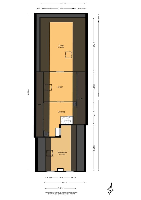
Overloop, 7 m², met knieschotruimte. 1e slaapkamer 17 m², ruime slaapkamer met daglicht en bergruimte onder de schuine kap. 2e slaapkamer 10 m², geschikt als slaapkamer, werkruimte of hobbykamer. Tussenruimte 18 m², praktische bergruimte met hoog plafond en mogelijkheden voor extra indeling.
Achtertuin 672 m², diepe en groene tuin op het noorden met meerdere terrassen, gazon en volwassen beplanting. Voortuin 110 m², gelegen op het zuiden met vrij uitzicht over de landerijen met een open en ruimtelijk gevoel. Oprit/Zijtuin west 62 m², ruime oprit met parkeergelegenheid voor meerdere voertuigen op eigen terrein. Zijtuin 72 m², gelegen op het oosten, ideaal voor ochtendzon en een rustige plek in de tuin.
* Uitgebouwd in 2003 met slaapkamer en badkamer op de begane grond * Levensloopbestendige indeling * Woonoppervlakte circa 167 m² * Multifunctioneel bijgebouw, geïsoleerd in 2017 * Keuken vernieuwd in 2022 met Dekton werkblad en 5 pits inductiekookplaat * Badkamer en slaapkamer begane grond gerenoveerd in 2019 * Badkamer voorzien van vloerverwarming en tweede toilet * Toilet gemoderniseerd in 2018 * 18 zonnepanelen geplaatst in 2016 * CV ketel Remeha Tzerra Ace 39 C uit 2022 * Gevel en vloerisolatie met EPS in 2023 * Tado verwarmingssysteem uit 2020 * Waterontharder aanwezig * Eigen waterbron voor tuin en kas * Tuin met fruitbomen, druiven en frambozen * Vrij uitzicht over landerijen * Veel privacy en ruimte rondom de woning
| Referentienummer | 06476 |
| Vraagprijs | € 495.000,- k.k. |
| Inrichting | Niet gestoffeerd |
| Inrichting | Niet gemeubileerd |
| Status | Nieuw in verkoop |
| Aanvaarding | In overleg |
| Aangeboden sinds | Donderdag 26 maart 2026 |
| Type object | Woonhuis, eengezinswoning, vrijstaande woning |
| Soort bouw | Bestaande bouw |
| Bouwperiode | 1930 |
| Dakbedekking | Bitumen Dakpannen |
| Type dak | Zadeldak |
| Isolatievormen | Dakisolatie Dubbel glas HR-glas Muurisolatie Spouwmuren Vloerisolatie |
| Perceeloppervlakte | 1.145 m² |
| Woonoppervlakte | 167 m² |
| Woonkameroppervlakte | 33,17 m² |
| Keukenoppervlakte | 20,86 m² |
| Inhoud | 602 m³ |
| Oppervlakte externe bergruimte | 53 m² |
| Oppervlakte gebouwgebonden buitenruimte | 15 m² |
| Aantal bouwlagen | 2 |
| Aantal kamers | 4 (waarvan 3 slaapkamers) |
| Aantal badkamers | 1 (en 1 apart toilet) |
| Ligging | Aan rustige weg Buiten bebouwde kom In bosrijke omgeving Nabij snelweg Open ligging Platteland Vrij uitzicht |
| Type | Achtertuin |
| Hoofdtuin | Ja |
| Oriëntering | Noorden |
| Staat | Goed onderhouden |
| Tuin 2 - Type | Voortuin |
| Tuin 2 - Oriëntering | Zuiden |
| Tuin 2 - Staat | Goed onderhouden |
| Tuin 3 - Type | Zijtuin |
| Tuin 3 - Oriëntering | West |
| Tuin 3 - Staat | Goed onderhouden |
| Tuin 4 - Type | Zijtuin |
| Tuin 4 - Oriëntering | Oosten |
| Tuin 4 - Staat | Goed onderhouden |
| Energielabel | C |
| CV ketel | Remeha Tzerra Ace 39 C |
| Warmtebron | Gas |
| Bouwjaar | 2022 |
| Eigendom | Eigendom |
| Aantal parkeerplaatsen | 4 |
| Aantal overdekte parkeerplaatsen | 1 |
| Warm water | CV-ketel |
| Verwarmingssysteem | Centrale verwarming Vloerverwarming (gedeeltelijk) |
| Ventilatie methode | Mechanische ventilatie |
| Badkamervoorzieningen | Dubbele wastafel Inloopdouche Ligbad Toilet Vloerverwarming |
| Parkeergelegenheid | Vrijstaande stenen garage |
| Heeft een rookkanaal | Ja |
| Glasvezelaansluiting aanwezig | Ja |
| Tuin aanwezig | Ja |
| Heeft een garage | Ja |
| Beschikt over een internetverbinding | Ja |
| Heeft schuur/berging | Ja |
| Heeft een dakraam | Ja |
| Heeft zonnepanelen | Ja |
| Heeft ventilatie | Ja |
| Kadastrale aanduiding | Meeden H 608 |
| Perceeloppervlakte | 55 m² |
| Omvang | Geheel perceel |
| Eigendomsituatie | Eigen grond |
| Kadastrale aanduiding | Meeden H 7 |
| Perceeloppervlakte | 1.090 m² |
| Omvang | Geheel perceel |
| Eigendomsituatie | Eigen grond |