Beschrijving

Aan de Anna Maria Horalaan 22b in het geliefde Midwolda staat deze moderne en uitstekend onderhouden woning uit 2017. Met een tuingerichte woonkamer een moderne keuken, drie slaapkamers en een vrijstaande garage, gelegen op een fraai perceel van 429 m². Dit is de ideale woning voor wie op zoek is naar comfortabel en energiezuinig wonen in een rustige, groene omgeving.

In de woning ervaart u direct de moderne en verzorgde afwerking. De hal is voorzien van een strakke gietvloer en een stijlvolle trapopgang met zwartstalen leuning. De toiletruimte is modern uitgevoerd met een wandcloset en lichte tegelafwerking. De tuingerichte woonkamer is heerlijk licht dankzij de grote schuifpui en staat in directe verbinding met de achtertuin. De gietvloer in combinatie met vloerverwarming zorgt voor een comfortabel geheel. De open keuken is modern en praktisch ingericht, biedt veel werkruimte en beschikt over diverse inbouwapparatuur, waardoor koken hier een plezier is.
Daarnaast heeft deze fijne en lichte woning een bijkeuken, deze biedt u extra bergruimte en toegang tot de tuin. De gehele begane grond is voorzien van vloerverwarming en een gietvloer, wat bijdraagt aan het moderne wooncomfort.

Op de eerste verdieping bevinden zich drie slaapkamers van verschillende afmetingen, ideaal voor een gezin, thuiswerken of hobbyruimte. De moderne badkamer is compleet uitgevoerd met een inloopdouche, wastafelmeubel, toilet en vloerverwarming. De tweede verdieping is bereikbaar via een vaste trap en biedt een praktische zolderruimte met witgoedaansluitingen, cv-opstelling en mechanische ventilatie.

De woning beschikt over een verzorgde voor-, zij- en achtertuin. De achtertuin is gelegen op het westen en biedt meerdere terrassen, een grasveld en borders – een heerlijke plek om te genieten van de middag- en avondzon. De brede oprit naast de woning biedt parkeergelegenheid voor meerdere auto’s op eigen terrein. In 2024 is er een ruime vrijstaande houten schuur/garage geplaatst, ideaal voor opslag, hobby of stalling. Aansluitend bevindt zich een overkapping waar u beschut kunt zitten.

Deze woning is volledig geïsoleerd en beschikt over energielabel A. Met maar liefst 20 zonnepanelen, kunststof kozijnen met HR++ beglazing en vloerverwarming is dit een toekomstbestendige en energiezuinige woning met lage energielasten.

De woning is gelegen nabij recreatiegebied de Blauwestad, een uniek recreatiegebied met veel water, natuur en wandel- en fietsmogelijkheden. Midwolda zelf is een actief en prettig dorp met onder andere een basisschool, sportverenigingen en een supermarkt in de nabije omgeving. Daarnaast bevindt u zich op korte afstand van de A7, waardoor steden als Groningen en Winschoten uitstekend bereikbaar zijn.

Bent u op zoek naar een moderne, energiezuinige woning op een rustige en aantrekkelijke locatie nabij natuur en voorzieningen? Dan is deze woning aan de Anna Maria Horalaan absoluut een bezichtiging waard. Neem contact op met Ommeland Makelaardij en plan snel een afspraak – u bent van harte welkom!

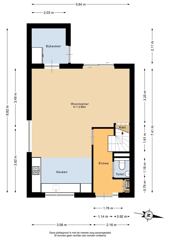
Indeling

Entree/hal, 4.6 m², v.v. gietvloer, strakke wandafwerking en moderne trapopgang met zwart stalen leuning. Meterkast aanwezig.
Toiletruimte, modern uitgevoerd, v.v. wandcloset, fonteintje en tegelwerk in lichte kleurstelling.
Woonkamer, 27 m², tuingericht en v.v. gietvloer met vloerverwarming, grote schuifpui aan de achterzijde met veel lichtinval en directe verbinding met de tuin. 
Open keuken, 7.5 m², moderne en lichte hoekopstelling v.v. inductiekookplaat, afzuigkap, oven, vaatwasser en koel-vriescombinatie.
Bijkeuken, 4.3 m², v.v. voorraadruimte en toegang tot de tuin.
De gehele begane grond is voorzien van vloerverwarming met een gietvloer.

Diversen:
Vrijstaande houten schuur/garage, 32 m², recent geplaatst in 2024. Uitgevoerd in hout met dubbele deuren en geschikt voor opslag, hobbyruimte of stalling.
Overkapping, 14 m², grenzend aan de garage.

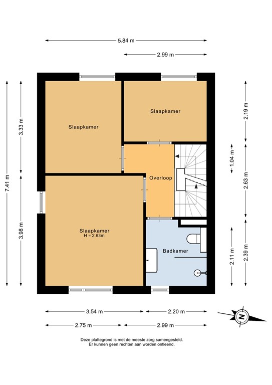
Eerste verdieping

Overloop, v.v. vaste trap naar de tweede verdieping.
1e slaapkamer, 14 m², gelegen aan de voorzijde, v.v. nette vloerafwerking en veel lichtinval. Geschikt als hoofdslaapkamer.
2e slaapkamer, 9 m², gelegen aan de achterzijde, v.v. vloerafwerking en geschikt als slaapkamer of werkkamer.
3e slaapkamer, 6.5 m², gelegen aan de achterzijde, v.v. vloerafwerking en momenteel ingericht als compacte slaapkamer.
Badkamer, 4 m², modern uitgevoerd, v.v. inloopdouche met glazen wand en regendouche, wastafelmeubel, toilet en vloerverwarming.

Tweede verdieping

Zolder, via vaste trap bereikbaar, 13 m², op deze verdieping zijn de witgoedaansluitingen en een cv-ruimte met opstelling van de cv installatie met boiler en de mechanische ventilatie.

Tuin

Voortuin, 54 m², gelegen op het Oosten en keurig aangelegd.
Zijtuin/oprit, 85 m² geheel bestraat en met een lengte van 13 meter voldoende parkeerruimte.
Achtertuin, 175 m², gelegen op het Westen met terrassen, grasveld, borders en keurige schuttingen.

Bijzonderheden

* Bouwjaar 2017
* Volledig geïsoleerd met een Energielabel A !
* Voorzien van maar liefst 20 zonnepanelen.
* Vloerverwarming op de begane grond en in de badkamer.
* Begane grond voorzien van een gietvloer.
* Kunststof kozijnen met HR++ beglazing.
* Vrijstaande houten schuur/garage geplaatst in 2024.
* Brede oprit met parkeergelegenheid voor meerdere auto’s.
* Achtertuin op het westen met terras en overkapping.

Kenmerken