Beschrijving

In een rustige woonomgeving in Muntendam staat deze geschakelde twee-onder-een-kap woning met aangebouwde garage. De woning is voorzien van kunststof kozijnen en deuren met HR++ glas en heeft een onderhoudsarme tuin.

Op korte afstand ligt het centrum van Muntendam met winkels en horeca. Het dorp biedt diverse sportverenigingen en onderwijsvoorzieningen. Via de A7 en N33 bereikt u Groningen in circa 25 minuten.

Indeling
Via de entree bereikt u de hal met toilet, meterkast en trap naar de eerste verdieping. Vanuit de hal loopt u naar de ruime woonkamer met veel daglicht en vloerbedekking. De gesloten keuken heeft een eenvoudige opstelling met spoelbak, afzuigkap en koelkast. Vanuit de keuken heeft u toegang tot de achtertuin.

Eerste verdieping
De overloop geeft toegang tot drie slaapkamers van circa 15 m², 11 m² en 6 m². De badkamer beschikt over een douche, wastafel en aansluitingen voor witgoed. Met een vlizotrap bereikt u de (berg)zolder. 

De achtertuin ligt op het noorden en is bereikbaar via een achterom.

De woning verkeert in nette staat, maar het afwerkingsniveau is wat gedateerd. De kunststof kozijnen met HR++ glas dragen bij aan isolatie en wooncomfort. De verwarming verloopt via centrale verwarming. U kunt de woning naar eigen inzicht moderniseren en inrichten. Plan een bezichtiging in bij Ommeland Makelaardij en ontdek de mogelijkheden.

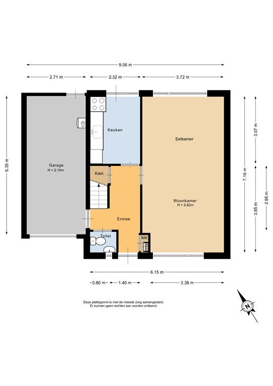
Indeling

Entree met trapopgang en meterkast
Toilet v.v. fonteintje
Woonkamer/eetkamer circa 27 m², v.v. vloerbedekking.
Gesloten keuken circa 7 m², v.v. plavuizenvloer en spoelbak, afzuigkap en koelkast.

Diversen:
17 m², v.v. schuifkanteldeur, elektra en de cv-ketel is hier gesitueerd.

Eerste verdieping

Overloop
Slaapkamer 1 van circa 16 m²,  gelegen aan de achterzijde en v.v. vloerbedekking
Slaapkamer 2 , van circa 9 m², gelegen aan de voorzijde en v.v. vloerbedekking.
Slaapkamer 3 , van circa 7 m², gelegen aan de achterzijde en v.v. tapijt.
Badkamer circa 5 m² v.v. douche en wastafel en aansluitingen voor wasmachine.

Tweede verdieping

Bergzolder bereikbaar middels vlizo

Bijzonderheden

* Geschakelde twee onder een kapwoning met aangebouwde garage
* Garage binnendoor bereikbaar
* Gelegen in een rustige en kindvriendelijke woonomgeving
* Op loopafstand van het centrum van Muntendam
* Zolder bereikbaar via vlizotrap met bergruimte
* Kunststof kozijnen met HR++ beglazing
* Achtertuin op het noorden met achterom
* Gunstige ligging ten opzichte van A7 en N33
* Woning is netjes onderhouden maar gedateerd afgewerkt
* Mogelijkheid om de woning naar eigen smaak te moderniseren

Kenmerken