Beschrijving

Aan de Soetan Sjahrirweg 12 in Muntendam staat deze goed onderhouden geschakelde twee onder een kap woning met eigen oprit, carport en een diepe tuin met overkapping. In de voormalige garage is een slaapkamer gerealiseerd en daarnaast beschikt de woning over een badkamer op de begane grond. Hierdoor is de woning levensloopbestendig en biedt zij verrassend veel leefruimte verdeeld over drie woonlagen. Dankzij goede isolatie, kunststof kozijnen met HR++ glas en 8 zonnepanelen woont u hier energiezuinig en comfortabel. Tezamen resulteert dit in een definitief energielabel B.

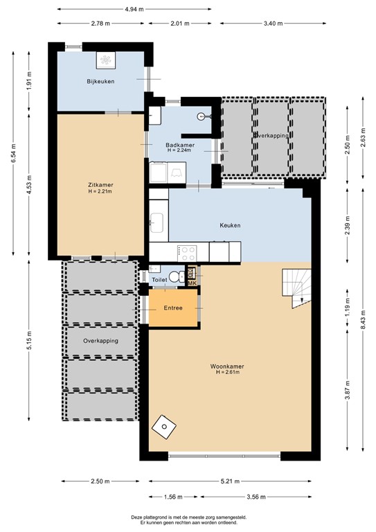
Begane grond
Via de entree komt u in de hal met toilet en meterkast. De hal geeft toegang tot de woonkamer met een grote raampartij aan de voorzijde die zorgt voor veel daglicht. De pelletkachel draagt bij aan een aangename warmte. De open verbinding met de eetruimte zorgt voor een logische en ruimtelijke indeling.
De keuken is uitgevoerd in een praktische hoekopstelling en voorzien van een gaskookplaat, oven, vaatwasser en koelkast. Aansluitend bevindt zich de bijkeuken met extra bergruimte en witgoedaansluitingen. Vanuit de bijkeuken is er toegang tot de tuin en de voormalige garage die in gebruik is als slaapkamer.

Uniek is de slaapkamer en badkamer op de begane grond. De slaapkamer is voorzien van vloerverwarming en maakt de woning geschikt voor levensloopbestendig wonen of een andere mogelijkheid: werken aan huis. De badkamer heeft een inloopdouche en tevens zijn de witgoedaansluitingen hier gesitueerd.

Op de eerste verdieping bevinden zich drie slaapkamers van goed formaat. Alle kamers zijn functioneel ingedeeld en beschikken over voldoende daglicht. De badkamer is uitgerust met een douche, ligbad, tweede toilet en wastafelmeubel.  Via een vaste trap bereikt u de tweede verdieping. Deze ruimte is ingericht als extra kamer en geschikt als werkplek, hobbyruimte of logeerkamer. Dankzij de dakramen is er prettig lichtinval. 

De achtertuin is verzorgd aangelegd en biedt veel privacy. De overkapping maakt het mogelijk om heerlijk te zitten in het buitenseizoen. Daarnaast is er voldoende ruimte voor groen en diverse terrassen. De woning is daarnaast aan de achterkant te bereiken met de auto of fiets. Parkeren kan op eigen terrein onder de carport en op de oprit. 

De woning is degelijk geïsoleerd. De vloer is geïsoleerd met PUR. De gevels zijn voorzien van korrelisolatie. Het dak is geïsoleerd met glaswol. De woning beschikt over kunststof kozijnen met HR++ beglazing en in 2020 zijn er acht zonnepanelen geplaatst. 

Muntendam is een levendig dorp met dagelijkse voorzieningen zoals een supermarkt, basisschool en sportverenigingen. Veendam ligt op korte afstand en biedt een uitgebreid winkel en voorzieningenaanbod. De bereikbaarheid richting Groningen en omliggende plaatsen is goed.

Deze woning biedt een praktische indeling, duurzame voorzieningen en veel gebruiksmogelijkheden. Een solide huis dat klaar is voor nieuwe bewoners. Interesse in een bezichtiging. Neem contact op met Ommeland Makelaardij en Assurantiën voor een afspraak.

Indeling

Entree met hal en toegang tot de toiletruimte.
Woonkamer ca. 28 m² met goede lichtinval en een praktische indeling.
Keuken ca. 13 m² met diverse inbouwapparatuur o.a. gaskookplaat, oven, vaatwasser en koelkast.
Bijkeuken ca. 5 m² met aansluitingen voor witgoed en extra bergruimte.
Badkamer op de begane grond ca. 5 m² voorzien van douche en wastafel.
Slaapkamer op de begane grond circa 12.6 m² met vloerverwarming en geschikt voor gelijkvloers wonen of werken aan huis.

Diversen:
Carport 13 m²
Overkapping 9 m²
Tuinhuis 7 m²

Eerste verdieping

Overloop met toegang tot alle vertrekken.
Eerste slaapkamer ca. 13 m².
Tweede slaapkamer ca. 12 m².
Derde slaapkamer ca. 6 m² geschikt als kinder of werkkamer.
Badkamer ca. 5 m² voorzien van douche, ligbad, tweede toilet en wastafelmeubel.

Tweede verdieping

Vaste trap naar de tweede verdieping.
Overloop.
Slaapkamer circa 8 m² met daglicht en praktische indeling.

Bijzonderheden

* Royale geschakelde 2-onder-1-kapwoning
* Gebruiksoppervlakte wonen 128 m² verdeeld over drie woonlagen 
* Slaapkamer op de begane grond met vloerverwarming.
* Vloer-, dak- en gevelisolatie aanwezig.
* Kunststof kozijnen voorzien van HR++ beglazing.
* Pelletkachel als aanvullende warmtebron.
* Acht zonnepanelen geplaatst in 2020.
* Energielabel B 
* Verzorgde achtertuin met overkapping en veel privacy.
* Parkeren op eigen terrein mogelijk.
* Gelegen in een rustige en kindvriendelijke woonwijk.
* Goede bereikbaarheid richting Veendam en Groningen.

Kenmerken