Beschrijving
Ruime, energiezuinige 2-onder-1 kapwoning met garage, carport en 40 zonnepanelen, welkom op de Gaykemastraat 6 in Opende !
In een superleuke, groene en kindvriendelijke woonwijk van Opende staat deze verrassend ruime en uitstekend onderhouden 2-kapper met bouwjaar 2006. Met een woonoppervlakte van maar liefst 149 m², een inhoud van circa 640 m³, vier slaapkamers en een perceel van 345 m² biedt deze woning alles wat een modern gezin zich kan wensen. De combinatie van goed onderhoud, comfort, duurzaamheid en een fijne ligging maakt dit een huis waar u zó in kunt.
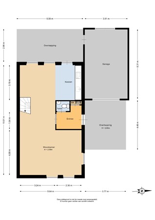
Via de entree met laminaatvloer en een fraaie stalen deur met glas betreedt u de woning. De L-vormige woonkamer van circa 42 m² is licht en ruim, met gestucte wanden, veel raampartijen, een open trap en airconditioning voor extra comfort. Hier geniet u van een vrij uitzicht over een vijverpartij. De open keuken sluit naadloos aan op de woonkamer en is uitgevoerd met een zeer nette inbouwkeuken voorzien van diverse apparatuur grotendeels vervangen in 2022, waaronder een inductiekookplaat, afzuigkap, vaatwasser, koeler, vriezer en combi-magnetron/oven.
Op de eerste verdieping bevinden zich een grote overloop, drie zeer ruime slaapkamers, waarvan één met airco en allen voorzien van een nette laminaatvloer. De badkamer is compleet uitgevoerd en ingericht met een ligbad, een inloopdouche, een wastafelmeubel en het 2e toilet.
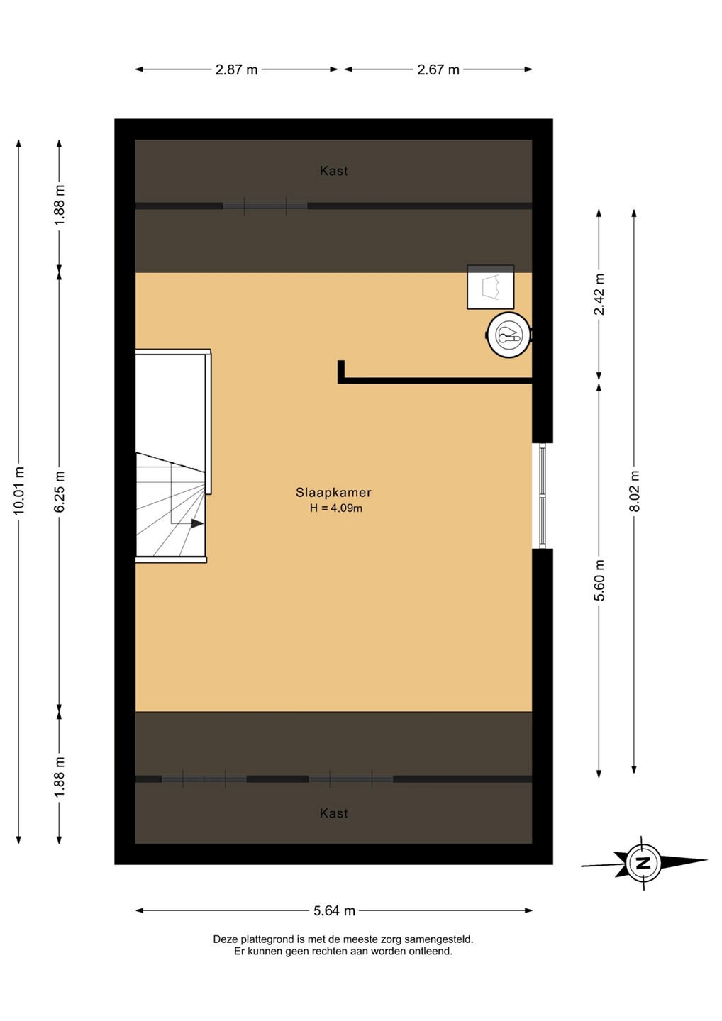
De tweede verdieping biedt een royale zolderslaapkamer van circa 35 m². Deze multifunctionele ruimte is momenteel niet ingedeeld en biedt volop mogelijkheden voor een extra slaapkamer, werkruimte of hobbykamer. Hier bevinden zich tevens de warmtepompboiler en witgoedaansluitingen.
De woning beschikt naast de voordelen in het huis ook over een fijne buitenruimte. De verzorgde voortuin met beukenhaag, een ruime oprit van circa acht meter naar de carport en een aangebouwde garage met elektrische sectionaaldeur geven deze woning nog meer karakter. Daarnaast is er een vrijstaande houten tuinberging voor extra opslag. De achtertuin is keurig aangelegd met terras, gazon en borders en biedt volop privacy. Dankzij de gunstige ligging op het westen – en de diepte van de tuin – kunt u hier de hele dag van de zon genieten. De overkapping grenzend aan de woning maakt het mogelijk om lang van de zonnige dagen te genieten.
De woning beschikt over energielabel A, is volledig geïsoleerd en voorzien van maar liefst 40 zonnepanelen. In combinatie met de warmtepompboiler en verwarming middels airco-units zorgt dit voor lage energielasten en een toekomstbestendige woonoplossing.
Wonen in Opende:
Opende is een prettig dorp met een actieve gemeenschap, basisschool, sportverenigingen en volop groen in de directe omgeving. U woont hier rustig en ruim, maar toch centraal: binnen circa 15 minuten bereikt u Drachten, 30 minuten Leeuwarden en 25 minuten Groningen. De combinatie van dorpse charme en goede bereikbaarheid maakt Opende bijzonder aantrekkelijk voor gezinnen.
Kortom een goed onderhouden, sfeervolle en duurzame woning met veel leefruimte, garage en carport, gelegen op een prachtige plek in het groen.
Gaykemastraat 6 in Opende is een woning waar u zich direct thuis voelt. Neem vandaag nog contact op met ons kantoor voor een bezichtiging en de makelaars van Ommeland Makelaardij laten u deze fantastische en energiezuinige woning graag zien!
Indeling
Entree, 3.5 m², met een laminaatvloer, meterkast en een fraaie stalen deur met glas.
Toiletruimte, met toilet en fonteintje.
L-vormige woonkamer, 42 m², v.v. een laminaatvloer gestucte wanden, airco, veel raampartijen en een open trap.
Open keuken, 7.5 m², zeer nette inbouwkeuken met veel apparatuur, o.a. een inductiekookplaat, afzuigkap, vaatwasser, koeler, vriezer en combi-magnetron/oven.
Diversen:
Overkapping, 18 m², grenzend aan de woning.
Garage, 24.7 m², met een elektrische sectionaaldeur
Carport/entreeluifel, 17 m².
Tuinberging, 6.5 m², vrijstaande houten berging.
Eerste verdieping
Overloop, 9.8 m², v.v. laminaatvloer en vaste trap naar de 2e verdieping.
1e slaapkamer, 15.8 m², v.v. laminaatvloer.
2e slaapkamer, 13.5 m², v.v. laminaatvloer en airco-unit.
3e slaapkamer, 9 m², v.v. laminaatvloer.
Badkamer, 6.7 m², v.v. ligbad, inloopdouche, wastafelmeubel en toilet.
Tweede verdieping
Zolderslaapkamer, 35 m², niet ingedeeld, v.v. laminaatvloer en opstelling warmtepompboiler en witgoedaansluitingen.
Tuin
Voortuin, 35 m², onderhoudsvriendelijke voortuin met een beukenhaag.
Zijtuin/oprit, 40 m², oprit van ca 8 meter tot aan de carport.
Achtertuin, 127 m², gelegen op het Westen en keurig aangelegd met terras, een grasveld en borders.
Bijzonderheden
Vrij uitzicht over vijverpartij en nabij Hertenkamp
Diepe tuin op het Westen
2021 zijn er 20 zonnepanelen geplaatst
2023 zijn er ook 20 zonnepanelen geplaatst
Totaal 40 zonnepanelen gelegen op Oost-West.
2021 Overkapping aan de woning geplaatst.
2021 plaatsing van 2 airco-units t.b.v. verwarming
2023 plaatsing van de Warmtepompboiler
2023 CV-verwijderd, radiatoren en leidingen zijn nog aanwezig.
2022 Achtergevel van de garage geïmpregneerd
2015 Platte dak van de garage preventief vervangen.
2024 Woning is buitenom geschilderd
2020 Energielabel A opgesteld (dus voor de verbeteringen!)
De woning beschikt over een laadpaal.
Er is een waterontharder geplaatst.
De woning is volledig geïsoleerd en gasloos (dus ook geen vaste aansluiting meer)
Er is een extra stuk grond van de gemeente in gebruik ca 100 m².
Gelegen in een superleuke woonwijk met veel groen.
Centraal gelegen; Drachten (15), Leeuwarden (30) en Groningen (25 minuten)