Beschrijving

Op een fijne locatie in het groene en geliefde Roden staat deze ruime en goed onderhouden tussenwoning met maar liefst 4 slaapkamers, een zonnige achtertuin en een royale overkapping. Met een woonoppervlakte van circa 135 m², een perceel van 199 m² en een energielabel B is dit een comfortabele gezinswoning waar ruimte, duurzaamheid en woonplezier samenkomen.

Roden is een verrassend veelzijdig dorp in Drenthe en behoort tot de grotere plaatsen van de provincie. Het staat bekend om zijn groene omgeving, rijke historie en gezellige dorpskarakter. Denk aan de brink met terrasjes, diverse winkels en goede horeca. Culturele trekpleisters zoals Havezate Mensinge en het Scheepstra Kabinet geven het dorp extra charme.

Daarnaast is Roden geliefd om evenementen zoals de Rodermarkt. Voor natuurliefhebbers liggen het Leekstermeer, het Paterswoldsemeer en recreatiegebied Ronostrand op korte afstand. Ook kunt u heerlijk wandelen en fietsen in natuurgebieden zoals de De Onlanden en het Mensingebos.
Met scholen op loop- en fietsafstand en een centrale ligging bent u bovendien binnen circa 20 minuten in Groningen en 30 minuten in Assen.

Deze ruime woning beschikt over een prettige en speelse indeling, via de grote entree van circa 5,5 m² met trapopgang en meterkast komt u in de woning. De toiletruimte is middels de entree te bereiken en deze ruimte is dan ook voorzien van een keurig hangcloset en fonteintje. De aangrenzende  woonkamer van circa 32 m² is heerlijk licht dankzij de grote raampartijen en afgewerkt met een laminaatvloer en strak stucwerk. Een praktische voorraadkast zorgt voor extra bergruimte. De gesloten keuken beschikt over een nette inbouwkeuken met onder andere een gaskookplaat, afzuigkap, koelkast, vaatwasser, oven en combi-magnetron.

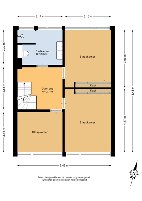
Op de eerste verdieping vindt u een ruime overloop met inbouwkasten en een vaste trap naar de tweede verdieping. Hier bevinden zich drie slaapkamers van circa 12,5 m², 13,8 m² en 8,5 m², allen voorzien van laminaatvloeren en kunststof kozijnen. De luxe badkamer (2022) is modern uitgevoerd met een inloopdouche, toilet, wastafelmeubel en designradiator.
De tweede verdieping biedt nog eens verrassend veel ruimte met een overloop en een royale vierde slaapkamer van circa 17,5 m², voorzien van een kunststof dakkapel biedt deze veel lichtinval.

Buiten biedt deze woning ook een prettig geheel met een voortuin van circa 32 m² die netjes aangelegd is als siertuin. De achtertuin van circa 56 m² is onderhoudsvriendelijk ingericht en volledig bestraat. Hier vindt u een royale overkapping van circa 19 m² (geplaatst in 2021), waar u het hele jaar door heerlijk kunt zitten. Daarnaast beschikt de woning over een schuur/fietsenberging van circa 14 m²  en een garage van circa 16 m² met elektrische sectionaaldeur. De tuin is tevens via een achterom bereikbaar.

De woning is de afgelopen jaren op diverse punten gemoderniseerd en verduurzaamd. Zo zijn de voor- en achtergevel vervangen door composiet en voorzien van isolatie en dampfolie. Op de eerste en tweede verdieping zijn kunststof kozijnen met HR++ beglazing geplaatst. In 2021 is de Remeha HR 35c combiketel vernieuwd en er zijn maar liefst 12 zonnepanelen aangebracht. Dit alles resulteert in een energielabel B en relatief gunstige energielasten, met een laag gasverbruik.

Ceintuurbaan Noord 70 is een ruime en instapklare gezinswoning met vier slaapkamers, een moderne badkamer, veel bergruimte en een fijne tuin met overkapping. Gelegen in een groene en levendige omgeving met alle voorzieningen binnen handbereik, is dit een ideale plek voor gezinnen en doorstromers. Kortom een woning waar u zich direct thuis zult voelen!

Wilt u deze prettige woning bezichtigen ?  Maak dan een afspraak met de makelaars van Ommeland Makelaardij en u bent van harte welkom!

Indeling

Entree, 5.5 m², v.v. structuur, trapopgang, meterkast.
Toiletruimte, met een (hang)closet en fonteintje.
Woonkamer, 32 m², v.v. een laminaatvloer, stucwerk, voorraadkast en grote raampartijen.
Keuken, 8.4 m², met een inbouwkeuken v.v. 4-pits gaskookplaat, afzuigkap, koeler, vaatwasser, oven en combi-magnetron.

Diversen:
Overkapping, 19 m², grenzend aan de woning met licht-doorlatende platen.
Schuur, 13.8 m², v.v. elektra.
Garage, 15.5 m², met elektrische sectionaaldeur.

Eerste verdieping

Overloop 7 m², met laminaatvloer en vaste trap naar de verdieping.
1e slaapkamer, 12.5 m², met laminaatvloer, vaste kastenwand en kunststof kozijnen.
2e slaapkamer, 13.8 m², met laminaatvloer en kunststof kozijnen.
3e slaapkamer, 8.5 m², met laminaatvloer en kunststof kozijnen.
Luxe badkamer (2022), 7 m², v.v. inloopdouche, toilet, wastafelmeubel en designradiator.

Tweede verdieping

Overloop, 8 m².
4e slaapkamer met kunststof dakkapel, 17.5 m², royale ruimte met veel lichtinval.

Tuin

Voortuin, 32 m², ingericht als siertuin en netjes onderhouden.
Achtertuin, 56 m², geheel bestraat en v.v. overkapping, schuur en garage.

Bijzonderheden

* Heerlijke tussenwoning met vrij uitzicht aan de voorzijde
* De woning beschikt over kunststof kozijnen met HR++ beglazing op 1e en 2e verdieping.
* Er zijn maar liefst 12 zonnepanelen geplaatst op het pand
* De combiketel is in 2021 vervangen Remeha HR 35c (met onderhoudscontract)
* Er is een grote overkapping geplaatst in 2021
* De voor en achtergevel zijn vervangen voor composiet en v.v. isolatie en dampenfolie.
* De luxe badkamer is in 2022 aangelegd door een aannemer.

Kenmerken