Beschrijving

LET OP: bezichtigingsmomenten volledig volgepland
Wegens de grote belangstelling voor deze woning zijn alle bezichtigingsmomenten inmiddels volgeboekt. Geïnteresseerden kunnen zich uitsluitend nog aanmelden voor de wachtlijst. Er worden op dit moment geen nieuwe bezichtigingen ingepland.

Sfeervolle, knusse en goed onderhouden 2-onder-1 kapwoning met garage !
Deze heerlijke woning is modern ingericht en biedt u direct veel woongenot, met vernieuwd dak (isolatie en pannen), moderne keuken, geïsoleerde gevelbekleding en ruime oprit met garage

Gelegen in een kindvriendelijke straat in het hart van Sappemeer, bevindt zich deze fraai onderhouden woning uit 1912. Achter de karakteristieke gevel schuilt een verrassend eigentijds interieur met lichte leefruimtes, een moderne keuken, nieuwe dakpannen en isolatie (2023) en onderhoudsvrije Keralit gevelbekleding met glaswol-isolatie. De zonnige tuin op het zuiden en de vrijstaande houten garage maken het geheel compleet en biedt u een goede start op deze woningmarkt. 

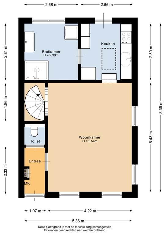
De woning is aan de voorzijde te betreden via de entree, deze ruimte geeft toegang tot het modern toilet (vernieuwd in 2024) en tot de sfeervolle woonkamer. Deze sfeervolle woonkamer beschikt over  grote ramen met een prachtige lichtinval en een vrij uitzicht op het naastgelegen groen. De warme laminaatvloer en de neutrale afwerking creëren een uitnodigende leefruimte waar zit- en eethoek harmonieus samenkomen. Aansluitend bevindt zich de keuken (vernieuwd in 2018), uitgevoerd in een lichte kleurstelling met o.a. inductiekookplaat, afzuigkap, oven, koel-vriescombinatie en vaatwasser. Vanuit de keuken heeft u toegang tot de badkamer, uitgerust met een douchecabine, wastafelmeubel en aansluitingen voor witgoed.
De verdieping is middels de trapopgang te bereiken, de overloop is v.v. een laminaatvloer en een cv-berging. Daarnaast zijn op deze verdieping nog 2 prima slaapkamers gelegen (12.4 en 6.4 m²), ook deze ruimtes zijn netjes afgewerkt en v.v. een laminaatvloer. De bergruimte is via 

De deur in de keuken leidt naar de zonnige tuin op het zuiden, waar u kunt genieten van rust en privacy. Hier vindt u tevens de grote houten berging/garage met ruimte voor opslag of uw auto, en een tweede berging voor tuingereedschap. Via de open trap in de woonkamer bereikt u de overloop met drie slaapkamers, elk voorzien van een dakkapel die zorgt voor extra ruimte en lichtinval. De verdieping is afgewerkt met laminaatvloeren en beschikt over een praktische kast met de CV-opstelling (Remeha, 2021).

De onderhoudsvriendelijke tuin is gunstig gelegen op het zuiden en biedt volop zonuren. De ruime oprit aan de zijkant van de woning biedt ruimte voor meerdere auto’s en toegang tot de vrijstaande garage. Een ideale starterswoning met veel extra's.

Wilt u deze fijne woning bezichtigen, dat kan vanaf nu ! 
Neem contact op met Ommeland Makelaardij & Assurantiën om een bezichtiging te plannen, wij leiden u graag rond.

Indeling

Entree/hal, 2.5 m², voorzien van laminaatvloer en meterkast (2011 vervangen).
Toiletruimte, vernieuwd in 2024 met toilet en fonteintje.
Woonkamer, 22.5 m², lichte en sfeervolle leefruimte met laminaatvloer, trapopgang naar de verdieping, grote raampartijen en vrij uitzicht op het groen aan de zijkant van de woning.
Keuken, 7 m², vernieuwd in 2018, voorzien van een moderne inbouwkeuken met inductiekookplaat, afzuigkap, oven, koel-vriescombinatie en vaatwasser. Vanuit de keuken toegang tot de tuin en de bergzolder via vlizotrap.
Badkamer, 7.5 m², uitgerust met douchecabine, wastafelmeubel en aansluiting voor wasmachine/droger.

Diversen:
Vrijstaande houten garage, 21 m², voorzien van elektra en dubbele deuren.
Tuinberging, 3.5 m², achter de garage gelegen.

Eerste verdieping

Overloop, 4.3 m², met laminaatvloer en inbouwkast t.b.v. combiketel.
1e slaapkamer, 12.4 m², v.v. laminaatvloer.
2e slaapkamer, 6.4 m², v.v. laminaatvloer.
Bergruimte, ca 12 m² met een hoogte van 1.6 meter (via de keuken te bereiken.

Tuin

Voortuin, 3 m², ingericht als siertuintje.
Zijtuin, 57 m², gelegen op het Westen, met ruime oprit, vrijstaande houten garage, extra berging een royale parkeerruimte.
Achtertuin, 40 m², gelegen op het Zuiden, ingericht met een zonneterras, een fijne plek om tot laat in de avond te genieten.
Naast het perceel is een groenstrook gelege.

Bijzonderheden

* Moderne en goed onderhouden starterswoning.
* Sfeervolle woonkamer met vrij zicht over groenstrook
* Nette inbouwkeuken met veel apparatuur aanwezig
* Ruime badkamer met o.a. inloopdouche
* Toiletruimte gerenoveerd in 2024
* Dak, vernieuwde dakpannen en een geïsoleerde kap in 2023 (inclusief SF19-isolatiefolie)
* Zijgevel voorzien van Keralit gevelbekleding en met glaswolisolatie (2022)
* CV-installatie (Remeha Avanta 28C) geplaatst in 2021 en onderhouden in 2025
* Volledig dubbele beglazing, m.u.v. twee kleine ramen.
* Kruipruimte(isolatie) v.v. schelpen.
* Schilderwerk buitenzijde uitgevoerd in 2022 door erkend schildersbedrijf
* Nabij treinstation, supermarkt en overige voorzieningen

Kenmerken