Beschrijving

Op een rustige en groene locatie in Veendam staat deze fijne tussenwoning met verrassend veel ruimte, een zonnige tuin en volop mogelijkheden om naar eigen wens in te delen. Met een woonoppervlakte van circa 90 m² en nog een extra zolderverdieping gelegen op een perceel van 139 m² is dit een ideale woning voor starters en gezinnen die comfortabel willen wonen met alle voorzieningen binnen handbereik.

De woning is te betreden middels de entree met plavuizenvloer, daarnaast zijn hier ook de trapopgang en praktische voorraadkast aanwezig en is ook de toiletruimte te bereiken voorzien van een hangcloset en fonteintje. De doorzonwoonkamer van circa 26 m² is licht en ruim en beschikt over een nette laminaatvloer en door de prettige indeling zowel zicht op de voor- als achtertuin. De keuken beschikt over een granieten werkblad, gaskookplaat, afzuigkap, combi-oven/magnetron en koelkast en aansluitend bevindt zich de handige bijkeuken met witgoedaansluiting.

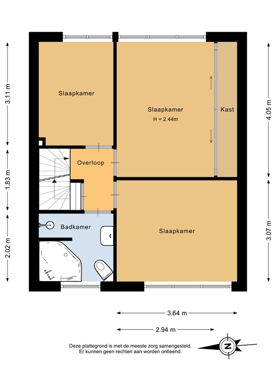
Op de eerste verdieping vindt u drie slaapkamers van circa 7 m², 11 m² en 12 m². De grootste slaapkamer beschikt over een praktische inbouwkastenwand en alle kamers zijn voorzien van laminaatvloeren. De keurige badkamer van circa 4,5 m² is compleet ingericht met een inloopdouche, hoekbad, wastafelmeubel en een (hang)toilet. Daarnaast beschikt deze verdieping over kunststof kozijnen met HR++ beglazing.
De tweede verdieping is bereikbaar via een vaste trap en biedt een ruime zolder van circa 18,5 m² met eveneens witgoedaansluitingen. Deze ruimte is nog vrij in te delen en biedt eenvoudig de mogelijkheid voor het realiseren van een vierde slaapkamer. Door het plaatsen van een groot dakraam kan hier zelfs extra woonoppervlak worden gecreëerd.

De voortuin van circa 28 m² ligt op het westen en is onderhoudsvriendelijk aangelegd. De achtertuin van circa 43 m² ligt op het oosten en beschikt over een royale overkapping van circa 17 m² (geplaatst in 2017), waar u heerlijk vroeg van het voorjaar en tot de late nazomer kunt genieten. Daarnaast is er een aangebouwde (fietsen)schuur van circa 6 m² en is de achtertuin tevens via de mandelige gang te bereiken. Voor het parkeren van de auto is er op korte afstand van de woning (circa 25 meter) een ruim en rustig parkeerterrein. Dus deze woning is echt van alle gemakken voorzien.

De woning is door de jaren heen netjes onderhouden en op diverse punten verbeterd. Zo is in 2022 een nieuwe cv-installatie (CW-5) geplaatst en is de woning grotendeels voorzien van HR++ beglazing. Op de eerste verdieping zijn kunststof kozijnen geplaatst en ook de achterdeur is vervangen door een kunststof deur. Dit alles resulteert in een Energielabel C !

Veendam is een levendige plaats met een compleet aanbod aan winkels, scholen, sportvoorzieningen en horeca. In de directe omgeving van de woning vindt u onder andere supermarkten, sportscholen en diverse dagelijkse voorzieningen. Daarnaast ligt het prachtige recreatiegebied Borgerswold op korte afstand, waar u heerlijk kunt wandelen, fietsen en ontspannen. Ook zijn uitvalswegen richting Groningen en omliggende plaatsen goed bereikbaar, wat zorgt voor een prettige combinatie van rust en bereikbaarheid.

De Botnische Golf 11 in Veendam  is een comfortabele en praktische woning met drie slaapkamers, een ruime zolder met uitbreidingsmogelijkheden, een fijne tuin met overkapping en een gunstige ligging in een prettige woonomgeving. Een ideale kans voor wie op zoek is naar een goed betaalbare woning met een optie voor een 4e slaapkamer op een fijne locatie in Veendam. Bovendien is de woning op korte termijn te aanvaarden.

Bent u op zoek naar een nette gezinswoning met uitbreidingsmogelijkheden op een centrale locatie? Dan is de Botnische Golf 11 in Veendam zeker een bezichtiging waard. Neem contact op met Ommeland Makelaardij voor meer informatie of het plannen van een afspraak.

Indeling

Entree, 4 m² v.v. plavuizen, trapopgang en voorraadkast. 
Toilet, v.v. hangtoilet en fontein.
Woonkamer, 26 m², doorzonwoonkamer v.v. laminaatvloer en structuur.
Keuken, 7 m², v.v. plavuizen, open inbouwkeuken, met granieten blad, 4-pits gaskookplaat, afzuigkap, combi-oven/magnetron en koelkast. 
Bijkeuken, 2 m² v.v. wasmachine aansluiting

Diversen:
Overkapping, 17 m², v.v. licht doorlatende platen.
Aangebouwde schuur, 6 m² v.v. elektra.

Eerste verdieping

Overloop, v.v. een laminaatvloer en een vaste trap naar de 2e verdieping.
1e slaapkamer, 7 m², v.v. een laminaatvloer.
2e slaapkamer, 11 m²  v.v. een laminaatvloer.
3e slaapkamer, 12 m²,  v.v. een laminaatvloer en inbouwkast over de gehele lengte van de slaapkamer. 
Badkamer, 4,5 m², v.v. een wastafelmeubel, een inloopdouche, een hoekbad en een (hang)toilet.

Tweede verdieping

Zolder, 18,5 m² v.v. vaste trap en witgoed aansluiting, en eenvoudig een 4e slaapkamer te creëren.

Tuin

Voortuin, 28 m², gelegen op het Westen onderhoudsvriendelijk grotendeels bestraat.
Achtertuin, 43 m²,  gelegen op het Oosten met een royale overkapping en schuur.
Rechts van de woning (ca 25 meter) is een rustig en ruim parkeerterrein gelegen.

Bijzonderheden

* Cv-installatie (CW-5) in 2022 geplaatst en doorlopend onderhouden.
* 1e verdieping v.v. kunststof kozijnen met HR++ beglazing
* Kunststof achterdeur geplaatst.
* Grotendeels is de woning v.v. HR++ beglazing.
* Heerlijke overkapping geplaatst in 2017.
* Onderhoudsvriendelijke tuin.
* Aan de voorzijde vrij uitzicht over groen.
* Ideaal gelegen nabij winkels, supermarkt en sportscholen.
* De zolder is nog niet ingedeeld, eenvoudig de 4e slaapkamer te maken.
* Door het plaatsen van een groot dakraam krijgt de woning 18 m² woonoppervlak extra.
* Aanvaarding in overleg en kan ook op kort termijn.

Kenmerken