| Adres: | Jan Tooroplaan 4, 9646 DG Veendam |
| Prijs | € 439.500,- k.k. |
| Type object | Woonhuis, eengezinswoning, twee onder een kap woning |
| Perceeloppervlakte | 384 m² |
| Woonoppervlakte | 139 m² |
| Aanvaarding | In overleg |
| Status | Verkocht |
Gelegen in een rustige en moderne woonwijk de Golflaan in Veendam staat deze zeer goed onderhouden en ruime 2-onder-1 kapwoning met garage, carport en extra brede oprit. De woning is gebouwd in 2000 en is volledig geïsoleerd. De woning beschikt over energielabel A, 19 zonnepanelen, hybride-ketel, zonneboiler en airconditioning wat resulteert in zeer lage energielasten en een goed binnenklimaat. De woning is te betreden middels de entree, deze biedt ruimte voor een keurige toiletruimte, de vernieuwde meterkast en de nette trapopgang. Vanuit de entree is er toegang tot de ruime L-vormige woonkamer en de recente geplaatste inbouwkeuken. De woonkamer ligt aan de voorzijde en heeft een oppervlakte van circa 42 m². Grote raampartijen in de erker en een extra zijraam zorgen voor veel daglicht aan de voorzijde, een keurige afwerking, de vloer betreft een lichte parketvloer en de wanden zijn opnieuw gestuct, maken dit een fijne woonruimte. De open keuken is aan de achterzijde van de woning gelegen en staat in directe verbinding met de woonkamer. De keuken is in 2022 geplaatst in een U-vorm waardoor en een praktische ruimte is ontstaan met veel inbouwapparatuur, daarnaast beschikt de keuken over een hoogwaardige pvc-vloer. Daarnaast is de tuin ook via de keuken te bereiken. Op de eerste verdieping bevinden zich drie slaapkamers van goed formaat. Alle kamers en de overloop hebben een prettige lichtinval en hebben een laminaatvloer. Daarnaast beschikt de verdieping over een luxe en moderne badkamer (2024), deze goed uitgevoerd ruimte beschikt over een inloopdouche, (hang)closet en een dubbele wastafelmeubel met meubel. De badkamer is keurig afgewerkt en beschikt daarnaast nog over vloerverwarming. Via een vaste trap is de tweede verdieping bereikbaar. Op deze verdieping bevindt zich een ruime overloop v.v. een dakraam. Hier zijn de hybride-ketel, warmwatervat en boilervat geplaatst., daarnaast is zijn de witgoedaansluitingen hier ook gesitueerd en is er nog veel bergruimte aanwezig. De 4e volwaardige slaapkamer is hier gerealiseerd en heeft een oppervlak van ca. 17 m². Wat deze woning bijzonder maakt is de brede oprit met voldoende parkeerruimte. Daarnaast is er de aangebouwde garage aanwezig, deze is 16 m² en ook te bereiken via de tuin. Voor de garage is de carport gelegen, deze is voorzien van een lichtkoepel en ruim genoeg om uw auto te parkeren. De achtertuin is zonnig, keurig onderhouden en gelegen op het westen. De tuin is onderhoudsvriendelijk aangelegd en biedt veel privacy door de volledige omsluiting. Achter in de tuin staat een houten tuinberging met ruime overkapping. De tuin biedt voldoende ruimte voor meerdere zitplekken en is geschikt om zowel van de zon als schaduw te genieten. De woning ligt in een gewilde en kindvriendelijke woonwijk de Golflaan, met een moderne opzet, loopafstand van basisscholen, voortgezet onderwijs en nabij veel sportvoorzieningen, daarnaast zijn supermarkt en winkels op korte afstand gelegen. Ook het centrum van Veendam, het trein-/busstation is goed bereikbaar per fiets of auto. Wilt u wonen in een ruime, goed geïsoleerde woning uit een jong bouwjaar met garage en eigen oprit. Ommeland Makelaardij en Assurantiën laat u deze woning graag zien tijdens een persoonlijke bezichtiging!
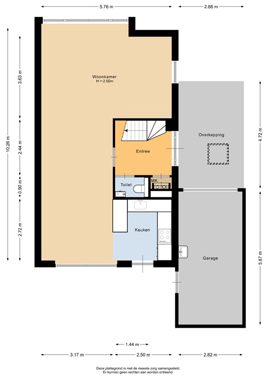
Hal, 3 m², v.v. een lichte parketvloer, de trapopgang en de meterkast. Toiletruimte, 1.3 m², modern en v.v. een (hang)closet met fonteintje. Woonkamer, 42 m², gelegen in een L-vorm met erker aan voorzijde een lichte parketvloer en gestucte wanden. Keuken, 6.8 m², open keuken met opstelling in een U-vorm, v.v. pvc-vloer en met veel inbouwapparatuur; inductiekooplaat, afzuigkap, Quooker, spoelbak, combi-oven, koelkast, vaatwasser en de deur naar achtertuin. Diversen: Garage, 16.5 m², aangebouwd en v.v. elektra en een kanteldeur met loopdeur. Carport, 13 m², v.v. lichtkoepel. Tuinhuis, 6 m², v.v. elektra, ideaal voor het bergen van tuingereedschap. Overkapping, 11 m², om lang te genieten van het buitenleven.
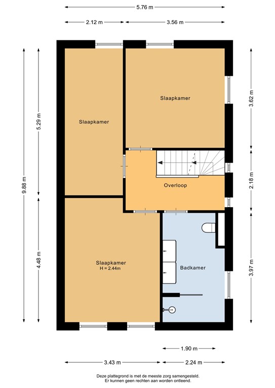
Overloop, 8 m², v.v. een laminaatvloer, zijraam en vaste trap naar de zolder. 1e slaapkamer, 15 m² v.v. een laminaatvloer. 2e slaapkamer, 13 m² v.v. een laminaatvloer en een airco. 3e slaapkamer, 11 m² v.v. een laminaatvloer. Badkamer, 9 m², (2024) v.v. vloerverwarming, moderne betegeling, een inloopdouche, dubbel wastafelmeubel en hangcloset.
Overloop, 24 m², v.v. hybride-ketel, boilervat, aansluiting was/droogautomaat en extra bergruimte. 4e Slaapkamer, 17 m², v.v. een laminaatvloer, dakraam en knieschotten.
Voortuin, 35 m², gelegen op het Oosten en ingericht als siertuin. Zijtuin, 90 m², gelegen op het Zuiden, met een extra brede oprit, grotendeels bestraat. Achtertuin, 160 m², gelegen op het Westen met tuinhuis met overkapping en meerdere terrassen.
* Volledig geïsoleerde 2/1 kapwoning met enregielabel A * 19 zonnepanelen in eigendom * Airconditioning aanwezig * Hybride verwarmingssysteem met cv ketel * Woonoppervlakte circa 139 m² * Vier volwaardige slaapkamers * Moderne badkamer vernieuwd in 2024 * Keukenopstelling en inbouwapparatuur uit 2022 * Aangebouwde garage van circa 16 m² * Carport en brede oprit voor meerdere auto’s * Keurig aangelegde achtertuin op het zonnige Westen * Houten tuinberging met overkapping * Gelegen in de gewilde en kindvriendelijke woonwijk de Golflaan * Goede bereikbaarheid van (basis)scholen, winkels en centrum
| Referentienummer | 06443 |
| Vraagprijs | € 439.500,- k.k. |
| Inrichting | Niet gestoffeerd |
| Inrichting | Niet gemeubileerd |
| Status | Verkocht |
| Aanvaarding | In overleg |
| Aangeboden sinds | Maandag 15 december 2025 |
| Laatste wijziging | Donderdag 22 januari 2026 |
| Type object | Woonhuis, eengezinswoning, twee onder een kap woning |
| Soort bouw | Bestaande bouw |
| Bouwperiode | 2000 |
| Dakbedekking | Dakpannen |
| Type dak | Schilddak |
| Isolatievormen | Dakisolatie Dubbel glas HR-glas Muurisolatie Spouwmuren Vloerisolatie Volledig geïsoleerd |
| Perceeloppervlakte | 384 m² |
| Woonoppervlakte | 139 m² |
| Woonkameroppervlakte | 42,37 m² |
| Keukenoppervlakte | 6,8 m² |
| Inhoud | 546 m³ |
| Oppervlakte overige inpandige ruimten | 17 m² |
| Oppervlakte externe bergruimte | 6 m² |
| Oppervlakte gebouwgebonden buitenruimte | 14 m² |
| Aantal bouwlagen | 3 |
| Aantal kamers | 5 (waarvan 4 slaapkamers) |
| Aantal badkamers | 1 (en 1 apart toilet) |
| Ligging | Aan rustige weg In woonwijk Nabij school |
| Type | Achtertuin |
| Hoofdtuin | Ja |
| Oriëntering | West |
| Staat | Prachtig aangelegd |
| Tuin 2 - Type | Voortuin |
| Tuin 2 - Oriëntering | Oosten |
| Tuin 2 - Staat | Prachtig aangelegd |
| Tuin 3 - Type | Zijtuin |
| Tuin 3 - Oriëntering | Zuiden |
| Tuin 3 - Staat | Goed onderhouden |
| Energielabel | A |
| CV ketel | Hybride Remeha Tzerra Ace Matic 28C |
| Warmtebron | Gas |
| Bouwjaar | 2024 |
| Eigendom | Eigendom |
| Aantal parkeerplaatsen | 3 |
| Aantal overdekte parkeerplaatsen | 1 |
| Warm water | CV-ketel Elektrische boiler Zonneboiler Zonnecollectoren |
| Verwarmingssysteem | Airconditioning Centrale verwarming Vloerverwarming (gedeeltelijk) |
| Ventilatie methode | Mechanische ventilatie Natuurlijke ventilatie |
| Keukenvoorzieningen | Inbouwapparatuur |
| Badkamervoorzieningen | Dubbele wastafel Inloopdouche Toilet Vloerverwarming |
| Parkeergelegenheid | Garage met carport |
| Heeft airco | Ja |
| Glasvezelaansluiting aanwezig | Ja |
| Tuin aanwezig | Ja |
| Heeft een garage | Ja |
| Telefoonaansluiting aanwezig | Ja |
| Beschikt over een internetverbinding | Ja |
| Heeft schuur/berging | Ja |
| Heeft een dakraam | Ja |
| Heeft zonwering | Ja |
| Heeft zonnepanelen | Ja |
| Heeft zonnecollectoren | Ja |
| Heeft ventilatie | Ja |
| Kadastrale aanduiding | Veendam o 1348 |
| Perceeloppervlakte | 384 m² |
| Eigendomsituatie | Eigen grond |