Beschrijving

In de geliefde en kindvriendelijke wijk Sorghvliet staat deze ruime tussenwoning met een forse uitbouw aan de achterzijde, met vier slaapkamers, twee garages en een L-vormige woonkamer met open haard. De woning ligt in een rustige straat met enkel bestemmingsverkeer en beschikt over een heerlijk vrij uitzicht over een grasveld. Deze combinatie biedt een fijn comfort, functionaliteit en volop mogelijkheden om het naar eigen smaak te moderniseren.

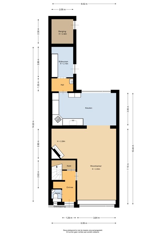
Bij binnenkomst ervaart u direct de ruime en open indeling. De entree met plavuizenvloer geeft toegang tot het toilet met fontein, de meterkast en een handige trapkast. De woonkamer (32 m²) vormt het hart van het huis: een royale leefruimte v.v. plavuizen, met grote raampartijen en een sfeervolle open haard. De woonkeuken (18,6 m²) is ruim opgezet en beschikt over een hoekkeuken, voorzien van een vijfpits gasfornuis, oven, koelkast, vriezer en vaatwasser. Aansluitend bevindt zich de bijkeuken (6 m²) met toegang tot de tuin.

Op de eerste verdieping bevinden zich drie prima slaapkamers van 6,6 m², 11,7 m² en 14 m². De badkamer (5 m²) is uitgerust met ligbad, douche, toilet, designradiator en wastafelmeubel. Deze verdieping beschikt over kunststof kozijnen. De tweede verdieping biedt een ruime vierde slaapkamer (10,5 m²) met laminaatvloer en kunststof dakkapel, deze biedt u extra licht en ruimte. 

De achtertuin is gelegen op het noorden, heeft een volledige betegelde tuin en daardoor onderhoudsarm. De tuin biedt toegang tot de berging (4,7 m²) en twee garages, beide voorzien van elektra. Daarnaast beschikt de woning over een achterom. 

De ligging is uitstekend: rustig, groen en kindvriendelijk, met scholen, supermarkt, winkels, sportvoorzieningen en het centrum van Veendam op korte afstand.

Kortom de Kleine Belt 3 is een ruime, solide tussenwoning met veel woonruimte, een praktische indeling en erg veel potentie. Wilt u de woning bezichtigen, maak dan een afspraak met de makelaars van Ommeland Makelaardij en we zien elkaar bij de woning !

Indeling

Entree, 2,5 m², v.v. plavuizen, meterkast en een trapkast.
Toilet met fontein.
L-vormige Woonkamer, 32 m², v.v. plavuizen en open haard.
Woonkeuken, 18,6 m², v.v. plavuizen, een hoekkeuken met; 5 pits-gasfornuis, spoelbak, oven, koelkast, vriezer en vaatwasser.
Bijkeuken, 6 m², v.v. plavuizen.

Diversen:
Berging, 4,7 m².
Garage, 6,8 m x 2,90 m v.v. elektra.
Garage, 4,6 m x 2,7 m v.v. elektra.

Eerste verdieping

Overloop, 4,5 m², v.v. toegang tot zolder.
Badkamer, 5 m², v.v. toilet, ligbad, douche, designradiator en wastafelmeubel.
Slaapkamer, 6,6 m².
Slaapkamer, 14 m².
Slaapkamer, 11,7 m².

Tweede verdieping

Overloop, 3,8 m², v.v. dakraam.
Slaapkamer, 10,5 m², v.v. laminaatvloer en kunststof dakkapel.

Tuin

Voortuin, 33 m², ingericht als siertuin.
Achtertuin, 107 m², gelegen op het Noorden, geheel bestraat en met toegang tot de garages.

Bijzonderheden

* Kunststof kozijnen op de eerste verdieping
* Kunststof dakkapel op de tweede verdieping
* Ruime, L-vormige woonkamer 32 m²
* Grote woonkeuken (18,6 m²) met veel werkruimte
* Vier ruime slaapkamers
* Onderhoudsarme achtertuin met toegang tot de garages
* Rustige straat met bestemmingsverkeer
* Nabij scholen, supermarkt, winkels, sportvoorzieningen en uitvalswegen
* Twee garages bieden mogelijkheden voor werkplaats of hobbyruimte
* Volop mogelijkheden voor modernisering naar eigen smaak
* Aanvaarding kan op korte termijn

Kenmerken