Beschrijving

Uitgebouwde hoekwoning met vrij uitzicht over vijverpartij, kunststof kozijnen, zonnepanelen en verrassend veel leefruimte!

In de gewilde woonwijk "Sorghvliet" staat deze moderne gezinswoning. De woning beschikt over een woonoppervlakte van circa 115 m², een aangebouwde garage en een zonnige gerenoveerde tuin. In de afgelopen jaren zijn belangrijke investeringen gedaan in isolatie en verduurzaming, wat direct merkbaar is in comfort en energieverbruik (energielabel A).

De woning is op meerdere punten verduurzaamd. In 2021 is de vloer geïsoleerd. In 2022 zijn het dak en de platte daken nageïsoleerd. Tevens zijn in 2023 veertien zonnepanelen geplaatst met een opbrengst van circa 3500 kWh per jaar. Er is airconditioning aanwezig op de slaapkamer van de tweede verdieping en de woning is ook voorzien van HR++ beglazing in kunststof kozijnen. 

In de directe omgeving bevinden zich basisscholen, speelveldjes en het recreatiegebied "Borgerswold", terwijl het winkelcentrum zelfs op loopafstand ligt. Deze sfeervolle woning biedt voldoende ruimte in en om het huis, en heeft een fijne woonomgeving.

Begane grond
Via de entree bereikt u de hal met meterkast, trapopgang en toiletruimte. De woonkamer is licht en ruim opgezet en biedt een prettige verbinding met de keuken. De keuken is functioneel ingericht met diverse inbouwapparatuur. Aansluitend bevindt zich de bijkeuken met witgoedaansluitingen, die in 2024 is gerenoveerd. Vanuit hier is er toegang tot de tuin en een binnendoor naar de garage.

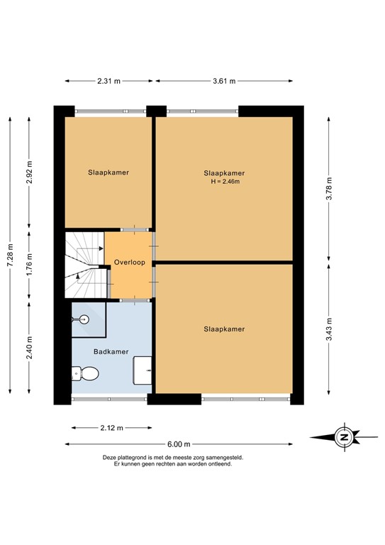
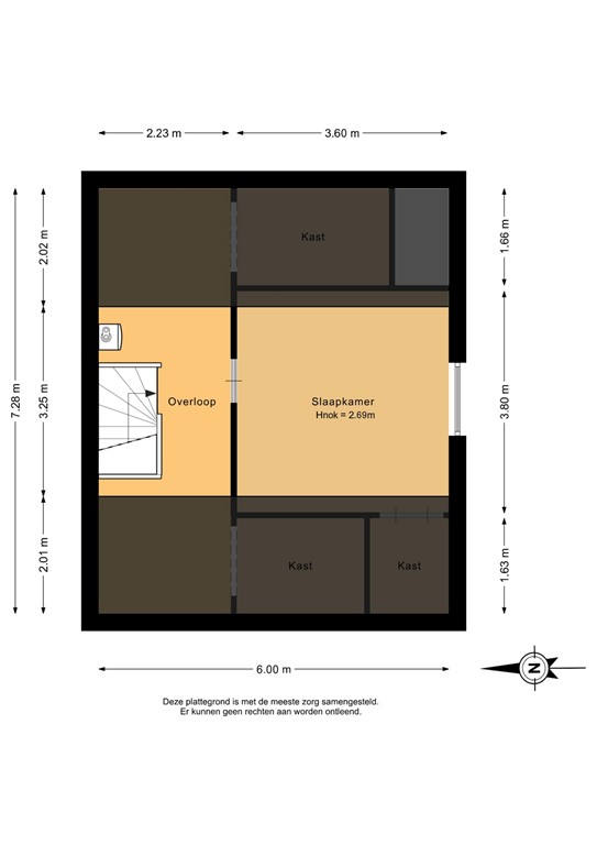
Op de eerste verdieping bevinden zich drie slaapkamers en de badkamer. De slaapkamers zijn praktisch van formaat en goed in te delen. De badkamer is voorzien van een douche, toilet en wastafel. Via een vaste trap is de tweede verdieping bereikbaar. Hier bevindt zich een vierde slaapkamer met bergruimte. Deze verdieping biedt circa 20 m² aan woonoppervlakte en is geschikt als slaap, werk of hobbyruimte.

De achtertuin is onderhoudsvriendelijk en recent vernieuwd en biedt voldoende privacy. Er is een sfeervolle overkapping geplaatst met aansluitend een berging de garage is aangebouwd en van binnenuit bereikbaar. Daarnaast treft u ook nog eens een extra fietsenberg. 

Heeft de Provinciënlaan 2 uw interesse gewekt?  Neem dan contact op met Ommeland Makelaardij voor een bezichtiging, wij laten deze leuke woning graag aan u zien !

Indeling

Entree, 5 m², v.v. een laminaatvloer, meterkast en trapopgang naar de 1e verdieping.
Toilet, v.v. betegeling.
Woonkamer, 29 m², v.v. een laminaatvloer, structuur en een inbouwkast.
Keuken, 6.5 m², v.v. betegeling, 6-pits gasfornuis, afzuigkap, combi-oven en vaatwasser.
Bijkeuken, 8 m², v.v. betegeling, aansluiting wasautomaat en droger.

Diversen:
Garage, 16 m².
Berging, 8 m², met een Overkapping (8 m²).
Schuur, 4 m².

Eerste verdieping

Overloop, 2 m², v.v. een laminaatvloer.
Slaapkamer, 14 m², v.v. een laminaatvloer.
Slaapkamer, 12 m², v.v. een laminaatvloer.
Slaapkamer, 7 m², v.v. een laminaatvloer.
Badkamer, 6 m², v.v. betegeling, douchecabine, wastafelmeubel, toilet en designradiator.

Tweede verdieping

Overloop, 7 m², v.v. CV aansluiting.
Slaapkamer, 14 m², v.v. een laminaatvloer en airconditioning.

Tuin

Voortuin, 42 m², gelegen op het Westen.
Zijtuin, 183 m², gelegen op het Zuiden.
Achtertuin, 94 m², gelegen op het Oosten.

Bijzonderheden

* Hoekwoning met aangebouwde garage.
* Extra tuingrond, waardoor er veel ruimte is rondom de woning.
* Onderhoudsvriendelijke opnieuw aangelegde tuin.
* Veertien zonnepanelen geplaatst in 2023.
* HR++ beglazing en kunststof kozijnen.
* Airconditioning. 
* Aangebouwde garage/schuur.
* Bijkeuken gerenoveerd in 2023.
* Nieuwe dakgoten en windveren.
* Vloer, dak en platte daken geïsoleerd.
* Vrij uitzicht over vijverpartij.
* Goede bereikbaarheid van voorzieningen.
* Op loopafstand van recreatiegebied Borgerswold.

Kenmerken