Beschrijving

Ruime en instapklare gemoderniseerde gezinswoning met slaapkamer op de begane grond en een zonnige tuin gelegen op het Westen.

In een fijne woonomgeving in Veendam staat deze verrassend ruime en goed onderhouden geschakelde woning uit 1974. Met een woonoppervlakte van circa 116 m², een perceel van 193 m² en maar liefst vijf kamers, waarvan vier (slaap)kamers, biedt deze woning volop mogelijkheden voor gezinnen, thuiswerkers of gelijkvloers wonen.

De woning is de afgelopen jaren op diverse punten gemoderniseerd en verduurzaamd. Zo is de voorgevel voorzien van nieuwe keralit beplating, zijn vrijwel alle kozijnen uitgevoerd in kunststof met HR++ beglazing en beschikt de woning over dak-, muur- en vloerisolatie. De combiketel is in 2024 vervangen (huur) en ook de garage is aangepakt met een nieuwe dakbedekking. Dit alles resulteert in een comfortabele woning met energielabel C. Daarnaast zijn de houten kozijnen recent nog geschilderd (februari 2026)

De ruime entree van circa 12 m² biedt niet alleen toegang tot de woning, maar is ook praktisch ingericht met witgoedaansluitingen. De woonkamer van 32 m² is sfeervol afgewerkt met stucwerk en een laminaatvloer en beschikt over een handige voorraadkast. De open keuken in L-opstelling is modern uitgevoerd en voorzien van een inductiekookplaat, afzuigkap, oven, vaatwasser en koelkast. Aansluitend bevindt zich een slaapkamer op de begane grond, ideaal voor levensloopbestendig wonen, een werkruimte of hobbykamer. Deze kamer is gerealiseerd in de voormalige garage en beschikt over na-isolatie van de wanden, wat zorgt voor extra comfort.

Op de eerste verdieping bevinden zich drie slaapkamers, waarvan één met dakkapel voor extra ruimte en licht. De badkamer is compleet ingericht met douchecabine, ligbad, wastafelmeubel en toilet. De verdieping is grotendeels voorzien van nieuwe laminaatvloeren en kunststof dakramen.
Via een vaste trap bereikt u de tweede verdieping met een praktische slaapzolder, voorzien van dakramen en knieschotruimte – ideaal als extra slaapkamer, werkplek of bergruimte.

De voortuin is onderhoudsvriendelijk aangelegd en deels in gebruik als parkeerplaats. In de achtertuin, gelegen op het westen, geniet u van een zonnig terras en sfeervolle borders. De overkapping aan de achterzijde van de woning maakt het mogelijk om ook bij minder weer comfortabel buiten te zitten. Daarnaast is er een berging aanwezig voor fietsen en opslag. Voor elektrisch rijden is alvast een voorbereiding voor een laadpaal getroffen.

Veendam is een complete en levendige woonplaats met een prettige mix van rust, groen en voorzieningen. Op loopafstand van de woning bevinden zich een basisschool en het geliefde recreatiegebied Borgerswold, waar u kunt wandelen, fietsen en ontspannen in het groen. Daarnaast zijn winkels, sportfaciliteiten en uitvalswegen richting onder andere Groningen en Winschoten goed bereikbaar.

Hier woont u comfortabel in een rustige wijk, met alles wat u nodig heeft binnen handbereik. Kortom: een ruime, gemoderniseerde woning met veel slaapkamers, een zonnige tuin en een fijne ligging in Veendam. Wilt u deze woning van binnen komen bekijken, maak dan een afspraak met Ommeland Makelaardij en u bent van harte welkom!

Indeling

Entree, 12 m², v.v. laminaatvloer, stucwerk en aansluitingen voor het witgoed
Toiletruimte, v.v. toilet en wastafeltje. 
Woonkamer, 32 m², v.v. laminaatvloer, stucwerk en voorraadkast.
Open Keuken, 12 m², v.v. laminaatvloer en een inbouwkeuken in L-vorm, v.v. inductieplaat, afzuigkap, oven, vaatwasser, koelkast.
Slaapkamer beneden, 11 m², v.v. laminaatvloer en stucwerk.

Diversen: 
Schuur, 5.6 m² (voormalige garage met de slaapkamer)
Overkapping, 10 m², grenzend aan de achterzijde van het woonhuis.

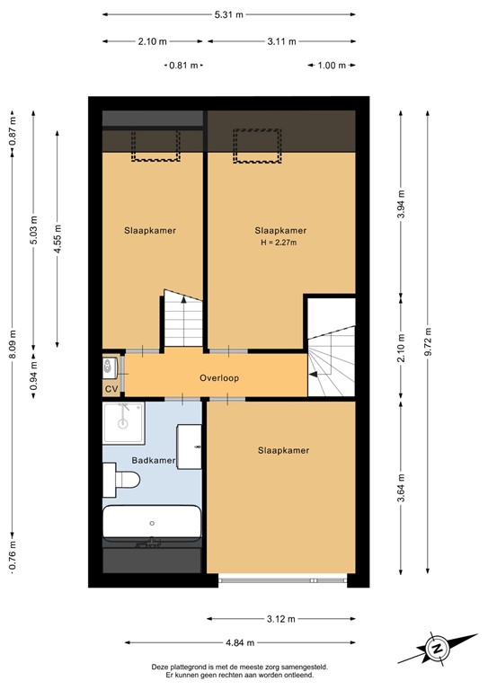
Eerste verdieping

Overloop, 4 m², v.v. laminaatvloer en cv-berging met combiketel.
2e Slaapkamer, 11.4 m², v.v.  dakkapel en laminaatvloer.
3e Slaapkamer, 11 m², v.v. laminaatvloer.
4e Slaapkamer, 7 m², v.v. laminaatvloer.
Badkamer, 6 m², v.v. douchecabine, ligbad, wastafelmeubel, toilet en dakraam.

Tweede verdieping

Slaapzolder, 8.3 m², v.v. vaste trap, laminaatvloer, dakramen en knieschotruimte.

Tuin

Voortuin, volledig bestraat en deels in gebruik als parkeerplaats.
Achtertuin, heerlijk gelegen op het Westen, v.v. een zonnig terras en borders.

Bijzonderheden

* Voorgevel v.v. nieuwe keralit beplating.
* Dakbedekking van de garage vervangen.
* Woning is bijna geheel v.v. kunststof kozijnen.
* De enkele houten kozijnen zijn geschilderd in februari 2026.
* Geheel v.v. HR++ beglazing.
* De woning beschikt over vloerisolatie.
* Op de verdieping zijn nieuwe kunststof dakramen geplaatst.
* De combiketel is in 2024 vervangen (huur).
* Er is een extra slaapkamer gerealiseerd in de garage (wanden ook na-geïsoleerd).
* Er is een voorbereiding voor een laadpaal aanwezig.
* De woning is bijna geheel v.v. nieuwe laminaatvloeren.
* Op loopafstand van basisschool en recreatiegebied Borgerswold.

Kenmerken