Beschrijving

Een prachtige 2-onder-1 kap woning met karakter, een fraaie rieten kap en gelegen in hartje centrum van parkstad Veendam met zicht op het Hertenkamp.
Met zijn nette riet gedekte kap, glas-in-lood ramen en charmante uitstraling trekt deze woning onmiddellijk de aandacht van elke liefhebber !

Stap binnen in deze prachtige jaren ’30 woning en ervaar zijn charme en warmte. Met een woonoppervlak van maar liefst 148 m² en een perceeloppervlak van 247 m² biedt deze woning veel ruimte in en om de woning. Daarnaast beschikt de woning over een goed energielabel (C), een warmtepomp en is de laatste jaren voorzien van vele extra’s.

Bij het binnenkomst van de woning in de ruime hal ervaar je direct de charme van het huis, een prachtige trap naar de verdieping en de doorgang naar de sfeervolle woonkamer. Deze ruime woonkamer van 39 m² straalt gezelligheid uit met zijn (sier)haard, nette laminaatvloer en biedt vanuit de erker een fraai uitzicht over het nabijgelegen hertenkamp. De woonkeuken is compleet, beschikt over veel werkruimte door het grote aanrechtblad en voorziet in een 5-pits gaskookplaat, een afzuigkap, een vaatwasser en een koelkast.
Daarnaast beschikt de woning over een ruime en functionele kelder, deze ruimte heeft een stahoogte van 1.9 meter en is opgedeeld in 3 compartimenten, een ruimte voor de warmwaterboiler, een bergruimte met aansluitingen voor het witgoed en de kelder zelf die perfect is voor extra opslagruimte. 

Op de eerste verdieping vind je een ruime overloop met een vaste trap naar de zolderverdieping. Daarnaast zijn er op deze verdieping drie comfortabele slaapkamers gelegen, elk met hun eigen unieke charme en ruimte. Ook is de nette badkamer hier gesitueerd en deze is compleet en beschikt over een toilet, een douche en een dubbele wastafel.
Ook beschikt deze woning nog over een tweede verdieping, een royale zolderruimte die eindeloze mogelijkheden biedt. Ideaal om te gebruiken als chill-ruimte, studeerkamer of een extra slaapkamer, deze ruimte is nog optimaal te benutten en beschikt daarnaast over een dakkapel.

Buiten wacht een prachtig aangelegde tuin rondom de woning, compleet met een gezellig terras waar je kunt ontspannen en genieten van de zon. De oprit en garage van 16 m² bieden voldoende parkeergelegenheid op eigen terrein en maken deze woning compleet.
Met zijn mooie ligging ben je omringd door voorzieningen zoals basisscholen, sportclubs en het bruisende centrum van Veendam, allemaal op loopafstand.

Dit soort woningen komen niet vaak op de markt, dus grijp deze kans en neem vandaag nog contact op met ons kantoor om deze unieke 2-onder-1 kap woning te bezichtigen. De makelaars van Ommeland Makelaardij leiden je graag rond in deze fantastische woning!

Indeling

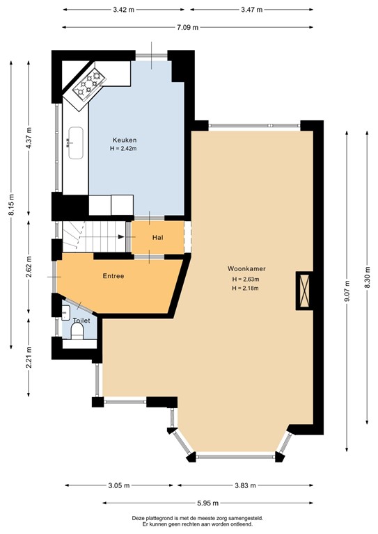
Entree/hal, 9 m², met een trapopgang en v.v. laminaatvloer.
Toiletruimte.
Woonkamer, 39 m², gelegen in een L-vorm met een ruime erker, geheel v.v. laminaatvloer en met een sierhaard.
Keuken, 15 m², v.v. inbouwkeuken v.v. een 5-pits gaskookplaat, afzuigkap, vaatwasser en koeler.

Diversen:
Kelder, 16 m², stahoogte 1.9 meter ingedeeld met berging t.b.v. wasruimte (3.8 m²) en opstelling warmtepomp (4.4 m²).
Vrijstaande garage met vliering, 16 m², v.v. elektra en openslaande deuren.

Eerste verdieping

Overloop, 9 m², met vaste trap naar de verdieping.
1e slaapkamer, 8 m².
2e slaapkamer, 13 m².
3e slaapkamer, 17.5 m², met inbouwkastenwand.
Badkamer, 4 m², v.v. dubbele wastafel, douche en toilet.

Tweede verdieping

Zolderverdieping, 24 m², met een dakkapel en nieuwe laminaatvloer.

Tuin

Voortuin, 35 m², gelegen op het Westen keurig verzorgd en met zicht op het Hertenkamp.
Zijtuin, 95 m², gelegen op het Westen, geheel omheind en met een zonnig terras.
Achtertuin, 33 m², geheel v.v. bestrating en gelegen op het Zuid-Oosten.

Bijzonderheden

2023: Nieuwe laminaat vloer begane grond
2023: Aquacell Waterontharder geplaatst
2024: British Fires New Forest elektrische haard met verwarming
2024: Quatt Hybride Warmtepomp
2024: Elektrische Warmtepompboiler 2x 100 Liter
2024: Voorkant woning geverfd
2024: Tuin voor opnieuw aangelegd
2024: Alle slaapkamers voorzien van nieuw glas (dubbel glas, met glas in lood)
2025: Nieuwe vaatwasser keuken
2025: Slaapkamer voor en kleine kamer achter gerenoveerd aangepakt.
2025: Groot onderhoud Rieten dak met nieuwe dakpannen op zowel huis als garage
2025: Nieuwe laminaat vloer zolderverdieping

Kenmerken