Beschrijving

In een rustige en kindvriendelijke woonomgeving, dichtbij dagelijkse voorzieningen, staat deze sfeervolle twee onder een kapwoning met eigen oprit, garage en een onderhoudsarme tuin. Op korte loopafstand ligt winkelcentrum Autorama maar ook het centrum en het treinstation van Veendam zijn snel bereikbaar.

Deze woning is door de jaren heen goed onderhouden en beschikt over een energielabel C. De begane grond beschikt deels over vloerverwarming wat bijdraagt aan een comfortabel woonklimaat. Verder is de woning voorzien van airconditioning, zonnepanelen, zes elektrische rolluiken en kunststof dakgoten. In 2020 zijn nieuwe dakpannen geplaatst en is het dak geïsoleerd. De dakbedekking van de garage is in 2017 vernieuwd.

De indeling is functioneel en overzichtelijk. De entree geeft toegang tot de hal met meterkast, trapopgang en toilet. Vanuit de hal bereikt men de lichte doorzonwoonkamer met aansluitend de keuken. In de bijkeuken bevinden zich de witgoedaansluitingen. Vanuit hier is er directe toegang tot het terras.

Op de eerste verdieping ligt een overloop met toegang tot drie slaapkamers van circa 13 m², 9 m² en 5 m². De badkamer is ingericht met een douche en wastafel. Via een vlizotrap is de zolderberging op de tweede verdieping bereikbaar.

De tuin ligt op het westen en vraagt weinig onderhoud, het overdekte terras biedt beschutting en via de tuin is de garage aan de achterzijde toegankelijk.

Een complete woning op een praktische locatie met comfortabel woongebruik. Een solide huis dat klaar is voor nieuwe bewoners. Interesse in een bezichtiging. Neem contact op met Ommeland Makelaardij en Assurantiën voor een afspraak.

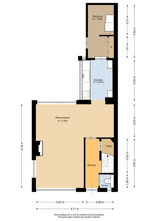
Indeling

Entree, 4 m² v.v. plavuizen en meterkast.
Toilet, v.v. plavuizen.
Woonkamer, 27 m² v.v. plavuizen, houtkachel en rolluiken.
Keuken, 6.5 m² v.v. plavuizen, een inbouwkeuken met inductiekookplaat, afzuigkap, combi-oven, vaatwasser en een rolluik.
Berging, 8 m² v.v. plavuizen, aansluiting wasautomaat en droger.

Diversen:
Garage, 22 m² v.v. een sectionaaldeur.
Overkapping, 7.3 m²

Eerste verdieping

Overloop, 3 m² v.v. een laminaatvloer.
1e Slaapkamer, 12 m² v.v. een laminaatvloer en rolluik.
2e Slaapkamer, 9 m² v.v. een laminaatvloer met rolluik.
3e Slaapkamer, 5 m² v.v. een laminaatvloer met rolluik.
Badkamer, 2 m² v.v. betegeling, douche, wastafel en designradiator.

Tuin

Voortuin, 49 m² gelegen op het Oosten.
Zijtuin, 21 m² gelegen op het Zuiden.
Achtertuin, 76 m² gelegen op het Westen.

Bijzonderheden

* Begane grond (deels) voorzien van vloerverwarming
* Aanwezigheid van airconditioning
* Voorzien van 9 zonnepanelen
* Zes elektrische rolluiken aanwezig
* Kunststof dakgoten toegepast
* Dakpannen recent vernieuwd
* Dakbedekking van de garage vernieuwd in 2017
* Onderhoudsarme tuin met overdekt terras
* Garage bereikbaar via de tuin
* Gelegen in een kindvriendelijke woonomgeving nabij voorzieningen

Kenmerken