Beschrijving

Starters opgelet !

Op een centrale locatie in een prettige woonwijk van Veendam staat deze verzorgde en goed onderhouden eengezinswoning met garage en een fijne tuin. De woning biedt een praktische indeling met drie slaapkamers, een lichte woonkamer en een moderne keuken die in 2024 is vernieuwd. Dankzij de zonnepanelen, kunststof kozijnen op de verdieping en diverse recente verbeteringen is het een comfortabele woning waar u zo in kunt.

De Voormolenstraat ligt aan een doorgaande weg tegenover het winkelcentrum Noord (Autorama) waardoor alle voorzieningen binnen handbereik zijn. Veendam staat daarnaast ook goed bekend om zijn gemoedelijke sfeer, goede voorzieningen en uitstekende bereikbaarheid. In de directe omgeving vindt u winkels, scholen, sportvoorzieningen en het centrum van Veendam. Ook voor ontspanning en recreatie zit u hier goed: wandel- en fietsroutes, het Borgerswold recreatiegebied en het water liggen op korte afstand. Daarnaast zijn steden als Groningen en Assen goed bereikbaar.

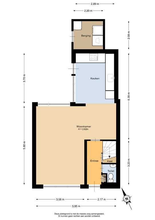
Bij binnenkomst komt u in de entree met een eiken parketvloer. Hier bevinden zich de trapopgang naar de verdieping, de meterkast en een praktische kelderkast. Vanuit de hal bereikt u ook de toiletruimte. De lichte L-vormige woonkamer van circa 26 m² is eveneens voorzien van een parketvloer en biedt voldoende ruimte voor een gezellige zithoek en een eethoek. De aangrenzende open keuken van circa 11 m² heeft een plavuizenvloer en beschikt over een moderne inbouwkeuken in hoekopstelling met veel inbouwapparatuur. De bijkeuken is buitenom bereikbaar en beschikt over een plavuizenvloer, hier bevinden zich dan ook de aansluitingen voor de wasmachine en droger, evenals de opstelling van de cv-ketel.

De overloop is voorzien van een laminaatvloer en biedt toegang tot de drie slaapkamers die zich op deze verdieping bevinden. 
De eerste slaapkamer van circa 8 m² beschikt over een laminaatvloer, kunststof kozijnen en een vlizotrap naar de tweede verdieping. De tweede slaapkamer van circa 12,5 m² en de derde slaapkamer van circa 6 m² zijn eveneens voorzien van een laminaatvloer en kunststof kozijnen met draai-/kiepramen. De badkamer is ingericht met een douchecabine, wastafelmeubel en designradiator.
Via een vlizotrap bereikt u de zoldervliering. Deze ruimte is volledig begaanbaar en biedt veel praktische bergruimte.

De woning beschikt over een verzorgde voortuin van circa 69 m², gunstig gelegen op het Zuiden, waar u al vroeg van de zon kunt genieten. De achtertuin van circa 66 m² ligt op het noorden en is grotendeels bestraat, wat zorgt voor een onderhoudsvriendelijke buitenruimte. In de tuin bevindt zich een overkapping waar u heerlijk kunt zitten en genieten van de zonnige dagen. Daarnaast is er een vrijstaande garage van circa 17 m² met elektrische deur, waarvan het dak in 2015 is vernieuwd. De garage is vanuit de achtertuin bereikbaar en biedt extra opslag- of hobbyruimte. Voor en naast de garage heeft u toegang tot uw eigen perceel.

De woning is de afgelopen jaren op verschillende punten goed verbeterd. Zo is in 2024 een nieuwe inbouwkeuken geplaatst en zijn in 2021 negen zonnepanelen geïnstalleerd. De eerste verdieping is voorzien van kunststof kozijnen met draai-/kiepramen en horren. De elektra en meterkast zijn in 2017 vernieuwd.

Een keurige, praktische en energiezuinige woning op een prima locatie in Veendam, met alle voorzieningen binnen handbereik. Wilt u deze aantrekkelijke woning komen bezichtigen? Neem dan contact op met de makelaars van Ommeland Makelaardij en u bent van harte welkom!

Indeling

Entree, 3.8 m², met frans eiken parketvloer, trapopgang, kelderkast en meterkast.
Toiletruimte, v.v. toilet en fonteintje.
Woonkamer, L-vorm, 26 m² met frans eiken parketvloer.
Open keuken, 11 m², v.v. plavuizen en een inbouwkeuken in hoekopstelling met enkele spoelbak, inductiekookplaat, afzuigkap, oven en koelkast
Bijkeuken, 4.6 m², v.v. plavuizen en met aansluiting voor de wasmachine/ -droger en de opstelling voor de CV-ketel.

Diversen:
Garage, 17 m², v.v. elektrische deur en via de achtertuin te bereiken
Overkapping, 6.6 m². waarin u heerlijk kunt genieten in de tuin.

Eerste verdieping

Overloop, 2 m², met laminaatvloer.
1e slaapkamer, 8 m², v.v. laminaatvloer, kunststof kozijnen en vlizotrap naar de 2e verdieping.
2e slaapkamer, 12.5 m², v.v. laminaatvloer, kunststof kozijnen.
3e slaapkamer, 6 m², v.v. laminaatvloer, kunststof kozijnen.
Badkamer, 3.3 m², v.v. douchecabine, wastafelmeubel en designradiator.

Tweede verdieping

Zoldervliering, middels vlizotrap te bereiken, geheel begaanbaar en ideaal voor opslag.

Tuin

Voortuin, 69 m², verzorgd en gelegen op het Zuiden.
Achtertuin, 66 m², grotendeels v.v. bestrating, gelegen op het Noorden en middels een achterom te bereiken.
Voor en naast de garage, toegang tot uw eigen perceel.

Bijzonderheden

* Er is een nieuwe inbouwkeuken geplaatst in 2024
* Ook zijn er 9 zonnepanelen aangebracht in 2021
* De 1e verdieping is voorzien van kunststof kozijnen draai-/kiepramen met horren.
* Garage (dak vernieuwd 2015) met elektrische deur en vanuit de tuin bereikbaar.
* De elektra en de meterkast zijn vernieuwd in 2017.
* De woning beschikt over een diepe tuin met zonneterras.

Kenmerken