Beschrijving

Sfeervolle en ruime hoekwoning met veel potentie aan de Vredewold 21 in Veendam!

Deze goed gelegen hoekwoning is gebouwd in 1974 beschikt over 4 ruime slaapkamers, heeft een energielabel B en is gelegen aan een rustig hofje met parkeergelegenheid op steenworp afstand. Door de na-isolatie van dak, vloer en muren (2015), het plaatsen van HR++beglazing (2015 en 2023) én door het aanbrengen van 10 zonnepanelen (2022, eigendom), is de woning energiezuinig gemaakt. Daarnaast biedt de woning door de 117 m² woonoppervlakte veel woning voor een zeer aangename vraagprijs. U kunt het huis geheel naar eigen smaak inrichten, waardoor u hier weer geheel up-to-date en met veel plezier kunt wonen.

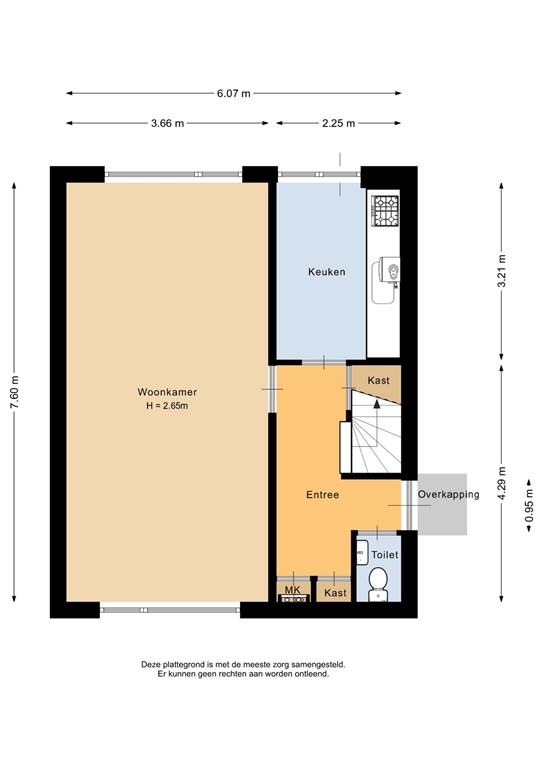
De woning is te betreden door de zij-entree, deze biedt u daardoor een ruime hal die toegang geeft tot de meterkast, de trapopgang met vaste kast en de toiletruimte. De ruime en lichte doorzonwoonkamer van maar liefst 28 m² heeft grote raampartijen aan de voor en achterzijde. Aangrenzend is de gesloten keuken gesitueerd, deze kan ook open gemaakt worden voor een ruimtelijk geheel. 

Vrijstaande stenen berging achter in de tuin; de tuin is grotendeels bestraat en bereikbaar via een achterom.

Op de 1e verdieping biedt de overloop toegang tot drie ruime slaapkamers (7 - 12.5 - 15 m²), de badkamer en heeft een vaste trap naar zolder. De badkamer beschikt over een douchecabine, een wastafelmeubel en een tweede toilet. Middels de vaste trap bereikt u de 2e verdieping, deze is als volgt ingedeeld, een overloop met dakraam, een bergruimte/stookruimte met cv-ketel en mechanische ventilatie-unit en de vierde slaapkamer voorzien van dakraam.

De woning beschikt over een ruime, onderhoudsvriendelijke achtertuin op het Oosten, grotendeels bestraat en voorzien van enkele borders met beplanting. Achterin staat een vrijstaande stenen berging van 10 m², en achter het perceel is een mandelige gang/een achterom aanwezig. Aan de voorzijde ligt eveneens een verzorgde tuin met sierbeplanting.

Deze woning biedt veel ruimte, een praktische indeling en duurzame elementen; een ideaal huis om naar eigen smaak in te richten. Wilt u deze goed gelegen gezinswoning bezichtigen? Neem contact op met de makelaars van Ommeland Makelaardij en Assurantiën en u bent van harte welkom!

Indeling

Entree/hal, 6 m², met meterkast, trapopgang, vaste kast en toegang tot het toilet.
Toilet met fonteintje.
Woonkamer, 28 m², doorzonkamer met veel lichtinval.
Keuken, 7,2 m² dichte keuken in rechte opstelling, deur naar de achtertuin.

Diversen:
Vrijstaande stenen berging, 10 m², achter in de tuin.

Eerste verdieping

Overloop, 5 m², met vaste trap naar de 2e verdieping en toegang tot de slaapkamers en badkamer.
1e slaapkamer, 7 m², aan de achterzijde gelegen.
2e slaapkamer, 15 m², aan de achterzijde gelegen.
3e slaapkamer, 12.5 m², aan de voorzijde gelegen en v.v. een wastafel.
Badkamer, 5 m², met douchecabine, wastafelmeubel en tweede toilet.

Tweede verdieping

Overloop, 5 m², met dakraam en omvormer van de zonnepanelen.
4e slaapkamer, 14.5 m²ruime zolderkamer met dakraam.
Berging/stookruimte, 3 m² met cv-ketel (2011) en mechanische ventilatie.

Tuin

Voortuin, 26 m², gelegen op het Westen en ingericht als siertuin.
Zijtuin, 37 m², gelegen op het Zuiden.
Achtertuin, 126 m², gelegen op het Oosten, met terras, borders en een achterom.

Bijzonderheden

* Gelegen in de rustige wijk Sorghvliet in de Provinciënbuurt, een groene woonomgeving in Veendam.
* Op loopafstand van (basis)scholen, supermarkt en het wijkwinkelcentrum.
* Op enkele minuten gelegen van sportvoorzieningen en recreatiegebied Borgerswold.
* Er is een grote (doorzon)woonkamer aanwezig.
* De woning beschikt in totaal over vier ruime slaapkamers.
* Zonnige achtertuin met achterom en vrijstaande stenen berging (ca. 10 m²).
* Voorzien van 10 zonnepanelen (eigendom) in  2022.
* Verwarming en warm water via de combiketel bj. 2011.
* Geheel voorzien van isolerende beglazing in 2015 en 2023.
* De woning beschikt over na-isolatie van vloer, dak en muren 2015.
* Parkeergelegenheid nabij de woning.
* Goed bereikbaar met zowel openbaar vervoer als uitvalswegen N33 en A7.
* De woning is op korte termijn te aanvaarden.

Kenmerken