Beschrijving
Karakteristiek wonen in 't Roadhoes Raadhuisstraat 16 in Wildervank
Aan de Raadhuisstraat in Wildervank staat een pand dat decennialang het kloppend hart van het dorp vormde: het voormalige gemeentehuis , in de
volksmond ’t Roadhoes genoemd. Een gebouw met statige uitstraling, gebouwd in een tijd waarin vakmanschap en degelijkheid de standaard waren.
Het karakteristieke gemeentekantoor van destijds heeft inmiddels een nieuwe bestemming gekregen. Met behoud van zijn monumentale waarde is het pand zorgvuldig en met oog voor detail getransformeerd naar een unieke woonlocatie. Waar vroeger werd vergaderd en bestuurd, wordt nu gewoond
in stijl en comfort.
De transformatie van dit gemeentelijke erfgoed naar een modern wooncomplex is uitgevoerd met respect voor het verleden en gericht op de toekomst. Oorspronkelijke elementen zoals de gevelindeling en de hoge plafonds zijn behouden gebleven waar mogelijk, terwijl de binnenzijde volledig is
aangepast aan de eisen van deze tijd: duurzaam, energiezuinig en comfortabel.
Raadhuisstraat 16 biedt nu plaats aan acht eigentijdse appartementen en één ruime woning met tuin. De herontwikkeling is een ode aan de rijke geschiedenis van het pand, én een belofte voor een nieuwe generatie bewoners die willen wonen met karakter – midden in het dorp, maar met alle moderne gemakken.
Wildervank is een karakteristiek dorp in de Groningse Veenkoloniën, bekend om zijn rijke historie, vriendelijke sfeer en centrale ligging in de regio. Aan de Raadhuisstraat bevindt zich dit bijzondere woonproject – midden in het dorpshart en op loopafstand van dagelijkse voorzieningen zoals supermarkten,
winkels, horeca en zorg. De ligging biedt het beste van twee werelden: rust en ruimte, maar toch uitstekende bereikbaarheid. Binnen enkele minuten
bevindt u zich in Veendam, met een uitgebreider winkelaanbod, scholen en sportvoorzieningen. Ook steden als Groningen en Assen zijn binnen circa 30 minuten bereikbaar met de auto. Met de trein vanaf station Veendam reist u in circa 30 minuten naar Groningen.
Voor natuurliefhebbers is er volop keuze: wandelen langs het Wildervanckkanaal (tegenwoordig het Oosterdiep genoemd), fietsen door de veenkoloniale landschappen of een dag ontspannen bij het Zuidlaardermeer. En dat allemaal vanuit uw eigen comfortabele en duurzame appartement of woning, in een pand met historie en karakter. Of u nu een rustige thuisbasis zoekt of juist een levendige centrale plek om te wonen: de locatie van Raadhuisstraat 16
past bij uiteenlopende woonwensen.
Unieke woonlocatie met 8 appartementen + 1 woning in hartje Wildervank
Het voormalige gemeentehuis van Wildervank is her-ontwikkeld tot een uniek wooncomplex met een eigentijdse uitstraling en
oog voor historische charme. Het project bestaat uit:
• 8 hoogwaardige appartementen, variërend van 1-slaapkamer- tot ruime 2-slaapkamer appartement / woning.
• Woonoppervlaktes uiteenlopend van 52 m2 tot 132 m2
• 1 woning met eigen tuin, ideaal voor bewoners die net wat meer ruimte wensen.
• Er is een gezamenlijke tuin
• 2 Appartementen hebben ook een eigen tuin
De indeling en grootte van de appartementen zijn afgestemd op verschillende doelgroepen: starters, stellen, senioren en kleine
gezinnen. De royale woning met tuin biedt extra mogelijkheden voor wie graag buitenruimte wil combineren met het gemak
van wonen in een kleinschalig project. Met een gezamenlijke uitstraling, eigen bergingen en een verzorgde buitenruimte biedt Wonen in ’t Roadhoes een
bijzondere woonsfeer in hartje Wildervank.
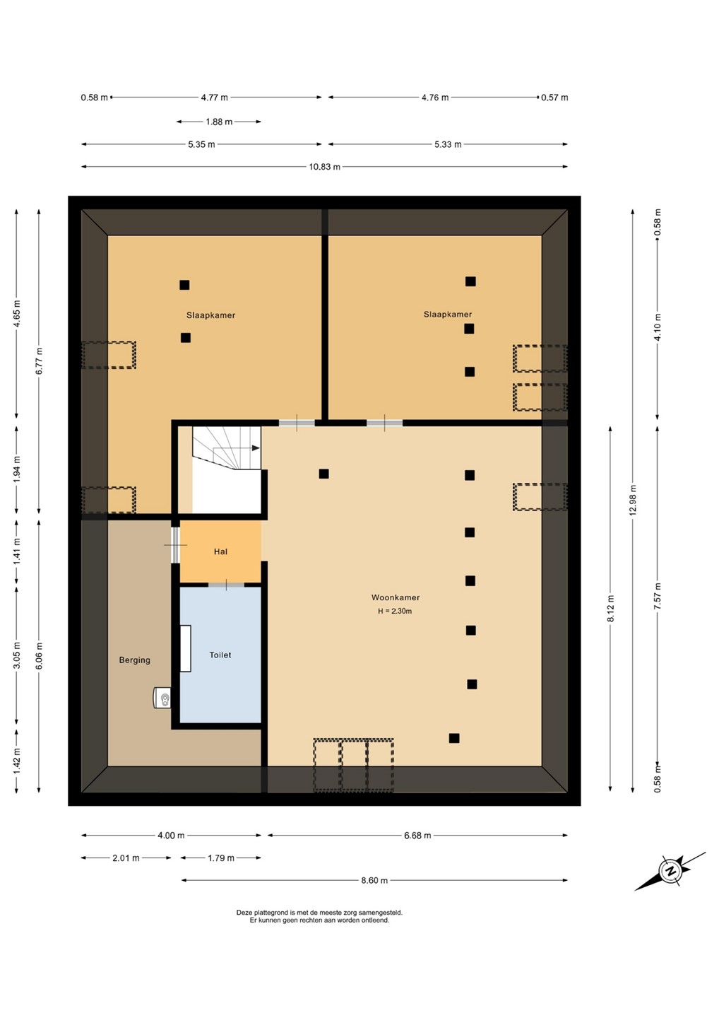
Indeling
Het penthouse is gelegen op de 2e verdieping heeft de navolgende indeling;
Er is een centrale hal op de 1e verdieping met trapopgang naar de 2e verdieping, vervolgens komt in de sfeervolle woonkamer met de balken in het zicht. De open inbouwkeuken is v.v. hoogwaardige inbouwapparatuur en sluit naadloos aan op de woonkamer. Er zijn maar liefst twee zeer ruime slaapkamers. En de badkamer beschikt over een douche, een wastafel en een (hang)closet. Daarnaast beschikt het pand over een technische ruimte, deze biedt tevens de opstelling voor het witgoed.
Afwerking
De appartementen en woning zijn ontworpen met een scherp oog voor wooncomfort, gebruiksgemak en tijdloze stijl.
• Indeling: Er zijn 1- en 2-slaapkamerappartementen, elk met een logische en praktische indeling waarbij daglicht en ruimtebeleving centraal staan. De woning en 2 appartementen op de begane grond beschikken over een tuin. 2 Appartementen beschikken over een balkon.
• Vloeren: Alle woningen zijn voorzien van hoogwaardige, onderhoudsvriendelijke gietvloeren, die niet alleen esthetisch zijn maar ook bijdragen aan een optimale warmteverdeling via de vloerverwarming.
• Wanden en plafonds: Strak afgewerkt met aandacht voor akoestiek en sfeer, met behoud van authentieke details waar mogelijk.
• Badkamer en keuken: Per woning is een moderne badkamer gerealiseerd. Keukens worden in overleg geleverd óf zijn
gereed voor plaatsing door koper, waardoor ruimte ontstaat voor individuele voorkeuren.
• Ready for Living: Het project is ontworpen volgens het ‘Ready for Living’-concept. Dit betekent: instapklaar wonen in een energiezuinige en comfortabele omgeving.
Elke woning is ontworpen met het oog op:
• Comfort: vloerverwarming, uitstekende geluidsisolatie en hoogwaardige materialen.
• Duurzaamheid: energiezuinige installaties zoals een warmtepomp, WTW-unit en zonnepanelen.
• Esthetiek: moderne afwerking met behoud van karakteristieke elementen, zoals hoge plafonds en grote ramen voor veel daglicht.
Project in Vogelvlucht
Duurzaam en Comfortabel Wonen
Wonen in ’t Roadhoes is ontwikkeld met oog voor de toekomst. Elk appartement en de woning zijn uitgerust met moderne en energiezuinige technieken, die niet alleen het milieu ten goede komen, maar ook zorgen voor optimaal wooncomfort.
Energie-efficiëntie en isolatie
• De vloeren zijn opgebouwd uit een dikke isolatielaag met daarboven een gietvloer inclusief vloerverwarming.
• Buitenwanden zijn van binnenuit geïsoleerd met Rockwool steenwol, afgewerkt met een OSB panelen en een dubbele gipswand.
• Plafonds en dakconstructie zijn geïsoleerd met opencellig schuim met een hoge Rd-waarde.
• Binnenwanden zijn voorzien van geluids- en thermische isolatie.
• Alle ramen zijn vervangen door hoogwaardig HR++ glas.
Technische installaties per appartement/woning
• Individuele warmtepompinstallatie voor verwarming en warm water.
• WTW-unit (Warmte Terug Win-installatie) per appartement, zorgt voor ventilatie met minimale warmteverliezen.
• Thermodynamische panelen aan de buitenmuur ondersteunen de opwarming van tapwater, met name douchewater.
• Zonnepanelen op het dak dragen bij aan de eigen energie-opwekking.
• Vloerverwarming door de gehele woning, aangesloten op de warmtepomp.
• Eigen aansluitingen en installaties: geen gedeeld systeem, maximale controle en privacy.
Binnenklimaat en geluidscomfort
• De woningen zijn ontworpen met aandacht voor daglicht toetreding en natuurlijke ventilatie.
• De combinatie van hoogwaardige isolatie en geluidswerende binnenwanden maakt het binnenklimaat rustig
en aangenaam, ook in een levendige dorpskern.
Energielabel en toekomstwaarde
• Energielabel: A+++ , dankzij de combinatie van hoogwaardige isolatie, ventilatie, zonnepanelen, thermo-dynamische panelen en warmtepomptechniek.
• Dit betekent: lage energiekosten, hoog wooncomfort en toekomstbestendigheid.
Duurzaam en Comfortabel Wonen
Wonen in ’t Roadhoes is ontwikkeld met oog voor de toekomst. Elk appartement en de woning zijn uitgerust met moderne en energiezuinige technieken, die niet alleen het milieu ten goede komen, maar ook zorgen voor optimaal wooncomfort.
Keuken en badkamer
Elke woning wordt geleverd met een luxe afgewerkte keuken en badkamer. Maar wie zijn eigen voorkeuren heeft, krijgt daar ook de ruimte voor.
• Keuken: De keuken (2,4 meter breed) bestaat uit onder- en bovenkasten, een spoelbak, afzuigkap, inductiekookplaat, vaatwasser en mengkraan. Alle apparatuur is van het merk ATAG. De keukens worden geleverd door onze partner Keukens & Zo in Lemmer. Liever een andere opstelling of
extra luxe? Dat kan, tegen meerprijs en volledig hypothecair mee te financieren.
• Badkamer: De badkamer wordt voorzien van een wastafelmeubel, spiegel, mengkranen, douchehoek en royaal tegelwerk (60×60 cm op de vloer, 30×60 cm op de wanden). Net als bij de keuken kunnen kopers hier hun eigen wensen realiseren.
• Wanden: Alle wanden worden behangklaar opgeleverd en kunnen in overleg worden afgewerkt (meerprijs).
• Vloeren: De vloeren kunnen worden afgewerkt met hoogwaardige PVC vloeren (meerprijs). Dit heeft een optimale uitwerking op de warmteoverbrenging in verband met de vloerverwarming.
Praktische zaken
Wonen in Raadhuisstraat 16 betekent genieten van een comfortabele, energiezuinige woning in een karakteristiek gebouw – met daarbij ook een aantal praktische voorzieningen die bijdragen aan een zorgeloze woonervaring.
• Parkeren op eigen terrein
Op het perceel is parkeergelegenheid aanwezig voor bewoners en bezoekers. Hoewel er geen individuele parkeerplaatsen in eigendom worden uitgegeven, kunnen bewoners gebruikmaken van de parkeerplekken op basis van beschikbaarheid.
• Eigen berging
Elke woning beschikt over een eigen berging met verlichting en een stroomvoorziening (stopcontact). Dit is ideaal voor het stallen van fietsen (opladen van fietsaccu’s) of bijvoorbeeld opslag van seizoensspullen.
• VvE-structuur
Het project valt onder een Vereniging van Eigenaren (VvE). Dit betekent dat gemeenschappelijke delen (zoals het dak, de gevels en de algemene ruimtes) gezamenlijk worden beheerd en onderhouden, wat zorgt voor continuïteit en behoud van kwaliteit op lange termijn.
• Oplevering en afwerkingsniveau
De woningen worden opgeleverd volgens het 'Ready for Living'-principe: volledig afgewerkt, met moderne badkamers en hoogwaardige vloeren, klaar om direct in gebruik te nemen of te verhuren. Bij levering is het mogelijk om onze monteur in te plannen voor klusjes (meerprijs), zoals lampen ophangen, gordijnrails, etc.
Bijzonderheden
De herontwikkeling van de Raadhuisstraat in Wildervank is een ode aan de rijke geschiedenis van het pand, én een belofte voor een nieuwe generatie bewoners die willen wonen met karakter. De transformatie van dit gemeentelijke erfgoed naar een modern wooncomplex is uitgevoerd met respect voor het verleden en gericht op de toekomst.
Verkoop en Hypotheek :
Ommeland Makelaardij en Assurantiën
Van Beresteijnstraat 2, Veendam
0598 350700 | info@ommelandmakelaardij.nl
www.ommelandmakelaardij.nl
Samen realiseren wij uw droomkeuken
Keukens & zo
Verlaet 10-12, Lemmer
0514 850 337 | info@keukensenzolemmer.nl
www.keukensenzolemmer.nl
Jouw notaris in de regio Veendam
Projectnotaris Wouters Netwerknotarissen
Prins Hendrikplein 21, Veendam
0598 61 78 80 | info@notariskantoorveendam.nl
www.notariskantoorveendam.nl