Beschrijving

Aan een rustige straat, direct aan vis- en vaarwater, staat deze levensloopbestendige vrijstaande bungalow met aangebouwde stenen garage en houten berging. Het perceel van ca. 598 m² ademt rust, ruimte en groen, terwijl voorzieningen zoals winkels, scholen en sportverenigingen op loopafstand bereikbaar zijn. Dankzij de gunstige ligging nabij de N33 zijn ook Groningen en Assen in slechts 25 minuten bereikbaar.

De woning verwelkomt u via een overkapte entree voorzien van een natuurstenen vloer die leidt naar de hal met een separaat toilet. Vanuit hier krijgt u toegang tot de verschillende vertrekken. De lichte woonkamer (ca. 26 m²) heeft grote raampartijen die zorgen voor veel daglicht en uitzicht op de voortuin en straat. De dichte keuken is praktisch ingedeeld en beschikt over een 5-pits gaskookplaat, afzuigkap en koelkast. Tevens is hier de nieuwe cv-ketel uit 2025 geplaatst.

De woning telt drie slaapkamers, waaronder een kamer met openslaande deuren naar de tuin die ook uitstekend geschikt is als hobby- of werkkamer. De badkamer is voorzien van douche, wastafel en aansluitingen voor witgoed. Daarnaast beschikt de woning over een aangebouwde stenen garage en een berging, ideaal voor extra opslag of het stallen van fietsen.

De bungalow is omringd door een ruime tuin die volop privacy en groen biedt. Het achtergelegen perceel is een fijne plek om tot rust te komen. De tuin biedt meerdere terrassen, volwassen beplanting en mogelijkheden om naar eigen smaak opnieuw in te richten.

Deze levensloopbestendige bungalow biedt volop mogelijkheden om naar eigen wens te moderniseren en is gelegen op een prachtige locatie aan het water. Bent u benieuwd? Neem dan contact op met Ommeland Makelaardij en Assurantiën in Veendam voor een bezichtiging.

Indeling

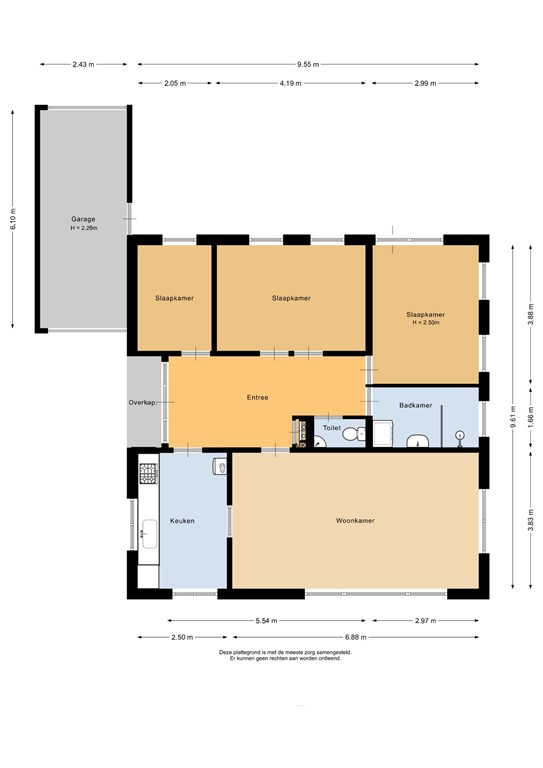
Entree/hal,14 m².
Royale ontvangsthal met natuurstenen vloer, gevolgd door entree v.v. laminaatvloer, meterkast en toegang tot de verschillende vertrekken.
Woonkamer, 26 m², v.v. laminaatvloer, lichte en aangename ruimte met grote raampartijen en uitzicht over de voortuin en straat.
Keuken, 10 m², gesloten keuken voorzien van een 5-pits gaskookplaat, afzuigkap, dubbele spoelbak en koelkast. Vanuit de keuken is er een doorkijk naar de woonkamer via een authentiek doorgeefluik.
Slaapkamer 1, 14 m², v.v. laminaatvloer, ruim met veel lichtinval, ideaal als hoofdslaapkamer.
Slaapkamer 2, 12 m², v.v. laminaatvloer,  gelegen aan de achterzijde, prettig als tweede slaapkamer of logeerkamer.
Slaapkamer 3, 7 m², te gebruiken als slaap-, werk- of hobbykamer, met openslaande deur naar de tuin.
Badkamer, 5 m², praktisch met inloopdouche, wastafel en aansluiting voor witgoed.
Separaat toilet met fonteintje, bereikbaar vanuit de hal.

Diversen:
Aangebouwde stenen garage (ca. 15 m²) met oprit voor meerdere auto’s. 
Vrijstaande houten berging, ideaal voor tuingereedschap.

Tuin

Voortuin, ingericht als een siertuin.
Oprit, geheel bestraat en parkeermogelijkheid voor meerdere auto's.
Achtertuin, gelegen op het Oosten, met zonneterras, gras en veel bomen.

Bijzonderheden

* Vrijstaande bungalow op een perceel van ca. 598 m²
* Gebruiksoppervlakte wonen: 90 m²
* Voorzien van vloer- en dakisolatie, dubbel glas en deels kunststof kozijnen
* Verwarming via CV-ketel (2025)
* Elektrische zonnescreens aanwezig
* Maar liefst 3 slaapkamers.
* Aangebouwde stenen garage en extra berging
* Gelegen aan rustig vis- en vaarwater

Kenmerken