Beschrijving
Droomt u van wonen in het groen met uw paarden aan huis? Aan de rustige Vonkslaan in het landelijke Bellingwolde staat deze sfeervolle twee-onder-een-kapwoning uit 1936 met een royaal perceel van maar liefst 4.158 m², diverse bijgebouwen en uitstekende voorzieningen voor paardenliefhebbers. Hier geniet u van rust, ruimte en vrijheid, terwijl u uw hobby letterlijk in de achtertuin kunt uitoefenen.
De woning beschikt over een woonoppervlakte van circa 109 m², een inhoud van ongeveer 385 m³ en heeft energielabel A. Dankzij de 25 zonnepanelen, de kunststof kozijnen met HR++ beglazing en de goede isolatie woont u hier niet alleen comfortabel, maar ook energiezuinig.
Wat deze plek echt bijzonder maakt, is de uitgebreide (paarden)accommodatie op eigen terrein. Achter de woning bevindt zich een ruime paardenstal van circa 74 m² met twee boxen, twee bergruimten en een vliering voor opslag van hooi of materialen. Op het terrein zijn daarnaast drie paddocks aanwezig en ligt achter op het perceel een rijbak van circa 20 x 40 meter, ideaal om uw paarden te trainen.
Daarnaast wordt er momenteel een stuk grond van de buurman gehuurd waarop een longeercirkel is aangelegd. Hierdoor heeft u nog meer mogelijkheden om uw paarden te trainen en te verzorgen. Voor paardenliefhebbers is dit werkelijk een unieke kans om wonen en hobby perfect te combineren.
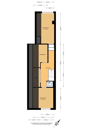
Indeling van de woning
Via de achterentree komt u binnen in een ruime hal van circa 17 m² met plavuizenvloer, meterkast en trapopgang naar de verdieping. Hier bevindt zich ook het toilet met fonteintje. Vanuit een kleine hal bereikt u de open keuken van ongeveer 13 m², voorzien van een nette inbouwkeuken met onder andere een spoelbak, inductiekookplaat, afzuigkap, oven, koelkast en vaatwasser, dus van alle gemakken voorzien.
De knusse woonkamer heeft een warme en sfeervolle uitstraling dankzij de laminaatvloer en de gezellige houtkachel. Op de begane grond bevindt zich daarnaast een slaapkamer en een luxe badkamer met een ruime inloopdouche, wastafelmeubel en aansluiting voor het witgoed. Door deze indeling is de woning ook geschikt voor gelijkvloers wonen.
Op de eerste verdieping vindt u een ruime overloop met laminaatvloer en een praktische kastenwand. Hier bevinden zich nog twee slaapkamers van circa 12 m² en 9 m², een extra berging en een tweede toiletruimte met fonteintje. Met kleine aanpassingen is het eenvoudig mogelijk om een vierde slaapkamer te realiseren.
Buitenruimte en bijgebouwen
Het perceel rondom de woning biedt volop ruimte en mogelijkheden. De voortuin van circa 389 m² ligt op het noordwesten, terwijl de zijtuin van ongeveer 236 m² op het zuidwesten ligt. De grote achtertuin van circa 3.331 m² is gelegen op het zuidoosten en vormt het hart van het terrein met de paardenvoorzieningen.
Naast de paardenstal beschikt het erf over een vrijstaande carport van circa 25 m², twee overkappingen aan de woning (circa 12 m² en 11 m²) en drie praktische bergingen van circa 18 m², 14 m² en 12 m². Op het terrein is bovendien ruimschoots parkeergelegenheid op eigen grond aanwezig.
Bellingwolde ligt in het prachtige Oost-Groningse landschap, bekend om zijn rust, ruimte en natuur. Het dorp heeft een karakteristieke uitstraling met historische lintbebouwing, statige boerderijen en veel groen. In de omgeving vindt u volop wandel- en fietsroutes en natuurgebieden waar u heerlijk kunt genieten van het buitenleven. Tegelijkertijd zijn plaatsen zoals Winschoten en ook de Duitse grens (Bunde - Leer) goed bereikbaar, waardoor voorzieningen en winkels nooit ver weg zijn.
Vonkslaan 47e biedt een unieke combinatie van landelijk wonen, veel buitenruimte en uitstekende faciliteiten voor paarden. Met een energiezuinige woning, meerdere bijgebouwen en een perceel van ruim vierduizend vierkante meter is dit een plek waar rust, vrijheid en hobby samenkomen.
Een ideale plek voor paardenliefhebbers en iedereen die wil genieten van ruimte en natuur. Laat u verrassen door de mogelijkheden en plan een bezichtiging om deze bijzondere plek zelf te ervaren. Neem dan contact op met de makelaars van Ommeland Makelaardij voor een rondleiding van dit unieke pand!
Indeling
Achterentree, 17 m², v.v. plavuizen, de meterkast en vaste trapopgang naar 1e verdieping.
Toilet, v.v. betegeling en een fonteintje.
Hal, 3 m², v.v. plavuizen.
Keuken, 13 m², v.v. een laminaatvloer, enkele spoelbak, vaatwasser, koelkast, oven, kookplaat en afzuigkap.
Woonkamer, 18 m², v.v. een laminaatvloer en een houtkachel.
1e Slaapkamer, 9 m², v.v. een laminaatvloer.
Luxe badkamer, 8 m², v.v. betegeling, een inloopdouche, wastafelmeubel en aansluiting voor het witgoed.
Diversen:
Paardenstal, 74 m², verdeelt in 2 bergruimten en 2 boxen.
Carport, 25 m²,
Overkapping, 12 m²,
Overkapping, 11 m²,
Berging, 18 m²,
Berging, 14 m²,
Berging, 12 m²,
Eerste verdieping
Overloop, 9 m², v.v. een laminaatvloer en inbouwkastenwand.
2e Slaapkamer, 12 m², v.v. een laminaatvloer.
3e Slaapkamer, 9 m², v.v. een laminaatvloer.
Berging, 5 m², v.v. een laminaatvloer.
Toilet, v.v. betegeling en een fonteintje.
Tuin
Voortuin, 389 m², gelegen op het Noordwesten.
Zijtuin, 236 m², gelegen op het Zuidwesten.
Achtertuin, 3331 m², gelegen op het Zuidoosten.
Bijzonderheden
* Twee-onder-een-kapwoning uit 1936
* Perceel met ruime tuin rondom (achtertuin ca. 3.331 m²)
* Slaapkamer en badkamer op de begane grond
* Eenvoudig een 4e slaapkamer te realiseren.
* Sfeervolle woonkamer met houtkachel en een schuimbeton vloer
* Nette inbouwkeuken voorzien van inbouwapparatuur, en een schuimbeton vloer
* Er zijn maar liefst 25 zonnepanelen aanwezig
* De woning is geheel v.v. kunststof kozijnen met HR++ beglazing
* Paardenstal van ca. 74 m² met 2 boxen, 2 bergruimten en vliering (hooi)
* Er zijn 3 paddocks op het terrein aanwezig.
* Achter op het terrein is een rijbak gelegen van 20 x 40 meter
* Er wordt een perceel grond gehuurd van de buurman t.b.v. een longeer-cirkel.
* Vrijstaande carport van ca. 25 m²
* Twee overkappingen (ca. 12 m² en 11 m²) aan de woning
* Drie bergingen (ca. 18 m², 14 m² en 12 m²)
* En voldoende parkeergelegenheid op eigen terrein