Beschrijving
Ruim en licht 3-kamerappartement met twee balkons én een royale berging – ideaal gelegen in Foxhol.
Ben je op zoek naar een verrassend ruim appartement, centraal gelegen en met alle dagelijkse voorzieningen binnen handbereik? Dan is dit fijne appartement aan de Meeuwenstraat 18 in Foxhol absoluut het bekijken waard! Dit nette portiek-appartement ligt op de 2e woonlaag, beschikt over twee balkons, een royale inpandige berging van maar liefst 20 m² en heeft bovendien een energielabel B—ideaal voor wie comfortabel én energiezuinig wil wonen.
Via het afgesloten portiek met intercom kom je bij het appartement op de tweede woonlaag. De ruime gang (6,5 m²) biedt toegang tot alle vertrekken en beschikt over de meterkast en een handige cv-berging. De lichte L-vormige woonkamer (28 m²) is ruim en beschikt over een nette laminaatvloer. Middels 2 openslaande deuren bereik je de tweede slaapkamer, deze slaapkamer heeft ook direct toegang heeft tot de badkamer.
De keuken (8 m²) is voorzien van een moderne inbouwkeuken uit 2022, uitgerust met gaskookplaat, afzuigkap en oven. Vanuit de keuken stap je zo het balkon aan de voorzijde op, gelegen op het noorden—heerlijk voor een kop koffie in de ochtend. Ook is via de keuken de nette badkamer (4,5 m²) te bereiken, deze beschikt over een douchecabine, wastafel en aansluiting voor het witgoed. Het appartement telt dus twee ruime slaapkamers (10,7 m² en 11,4 m²). De slaapkamer aan de achterzijde biedt tevens toegang tot het balkon op het Zuiden, waar je in de middag- en avond heerlijk kunt genieten van de zon en het uitzicht. Een derde slaapkamer is eenvoudig te realiseren door de oorspronkelijke indeling weer te creëren.
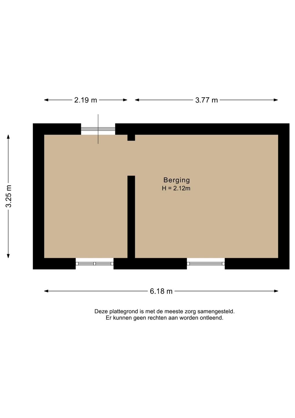
Daarnaast beschikt dit prettige appartement over een forse berging van 20 m², tevens is deze ruimte v.v. elektra. De basisschool is op loopafstand gelegen en achter het appartementencomplex is de speelweide aanwezig. De maandelijkse bijdrage is slechts € 155,- (VVE), waardoor het prettig en betaalbaar wonen is in het dorp.
Foxhol is een vriendelijk dorp met een gunstige ligging tussen Hoogezand en Groningen. Je woont hier rustig en groen, maar wel met verrassend veel voorzieningen dichtbij. Het Zuidlaardermeergebied ligt op korte afstand, perfect voor wandelen, varen of ontspannen in de natuur. Met zowel een treinstation als de A7 om de hoek zit je binnen no-time in Groningen, wat dit appartement ideaal maakt voor forenzen.
Bent u op zoek naar een ruim en betaalbaar appartement op ca 15 minuten van de stad Groningen?
Maak dan snel een afspraak met de makelaars van Ommeland voor een bezichtiging, tot snel!
Indeling
Appartementencomplex;
Gesloten portiek, v, .v. intercom en postbussen.
Appartement op de 2e woonlaag:
Gang, 6.5 m², v.v. meterkast en cv-berging.
Toiletruimte
Woonkamer, 28 m², L-vorm en v.v. laminaatvloer.
Keuken, 8 m², met een laminaatvloer en v.v. een inbouwkeuken met een gaskookplaat, afzuigkap en oven.
Badkamer, 4.5 m², met een douche met cabine, wastafel en aansluiting voor het witgoed.
1e slaapkamer, 10.7 m², met toegang tot het balkon aan de achterzijde.
2e slaapkamer, 11.4 m², met toegang tot woonkamer en badkamer.
Diversen:
Balkon aan de voorzijde, 3.6 m².
Balkon aan de achterzijde, 4.3 m².
Inpandige berging, maar liefst 20 m² en v.v. elektra.
Balkon
Balkon voorzijde, 3.6 m², gelegen op het Noorden en via de keuken te bereiken.
Balkon achterzijde, 4.3 m², gelegen op het Zuiden en via de slaapkamer te bereiken.
Bijzonderheden
* Ruim appartement gelegen op de 2e woonlaag.
* Energielabel B, dus lage energielasten.
* 2 grote slaapkamers en eenvoudig een 3e te creëren.
* 2 balkons, gelegen aan de voor en achterzijde.
* Nette keuken geplaatst in 2022.
* Jonge cv-ketel met bouwjaar 2023.
* Er is een royale berging van maar liefst 20 m².
* De balkons moeten opnieuw gecoat worden, materiaal is reeds aanwezig.
* Op loopafstand van basisschool.
* Achter het appartementencomplex is een speelweide gelegen.
* Op enkele minuten van het treinstation Foxhol.
* Op enkele minuten van de oprit A7 Groningen - Winschoten.