Beschrijving
Ruime eengezinswoning met verrassend veel leefruimte, rustige ligging en alles binnen handbereik !
Welkom aan de Jupiterstraat 43, Groningen, gelegen aan een rustig hofje in de geliefde wijk Paddepoel Noord. Een royale en praktisch ingedeelde woning met volop mogelijkheden. Met een grote doorzonwoonkamer, maar liefst vier slaapkamers, een vaste trap naar de zolder en een aangebouwde bijkeuken is dit een huis dat met gemak meegroeit met uw woonwensen.
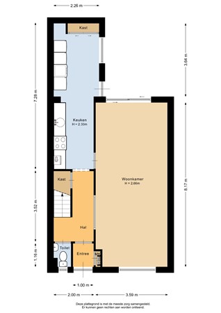
Via de entree komt u in de hal met trapopgang en trapkast. De doorzonwoonkamer van ruim 29 m² is heerlijk licht en biedt dankzij de schuifpui een directe verbinding met de achtertuin. De laminaatvloer zorgt voor een verzorgde en neutrale basis. De keuken is praktisch ingericht en staat in open verbinding met de ruime bijkeuken, waar zich de witgoedaansluitingen en vaste kasten bevinden. Deze uitbouw zorgt voor extra leefruimte e voldoende bergruimte door de vaste kastenwand.
Op de eerste verdieping bevinden zich maar liefst vier slaapkamers, allen voorzien van kunststof kozijnen met HR++ beglazing. De kamers zijn functioneel en goed in te delen, ideaal voor een gezin, thuiswerkplek of hobbyruimte. De badkamer is compact en praktisch ingericht met douche en wastafel.
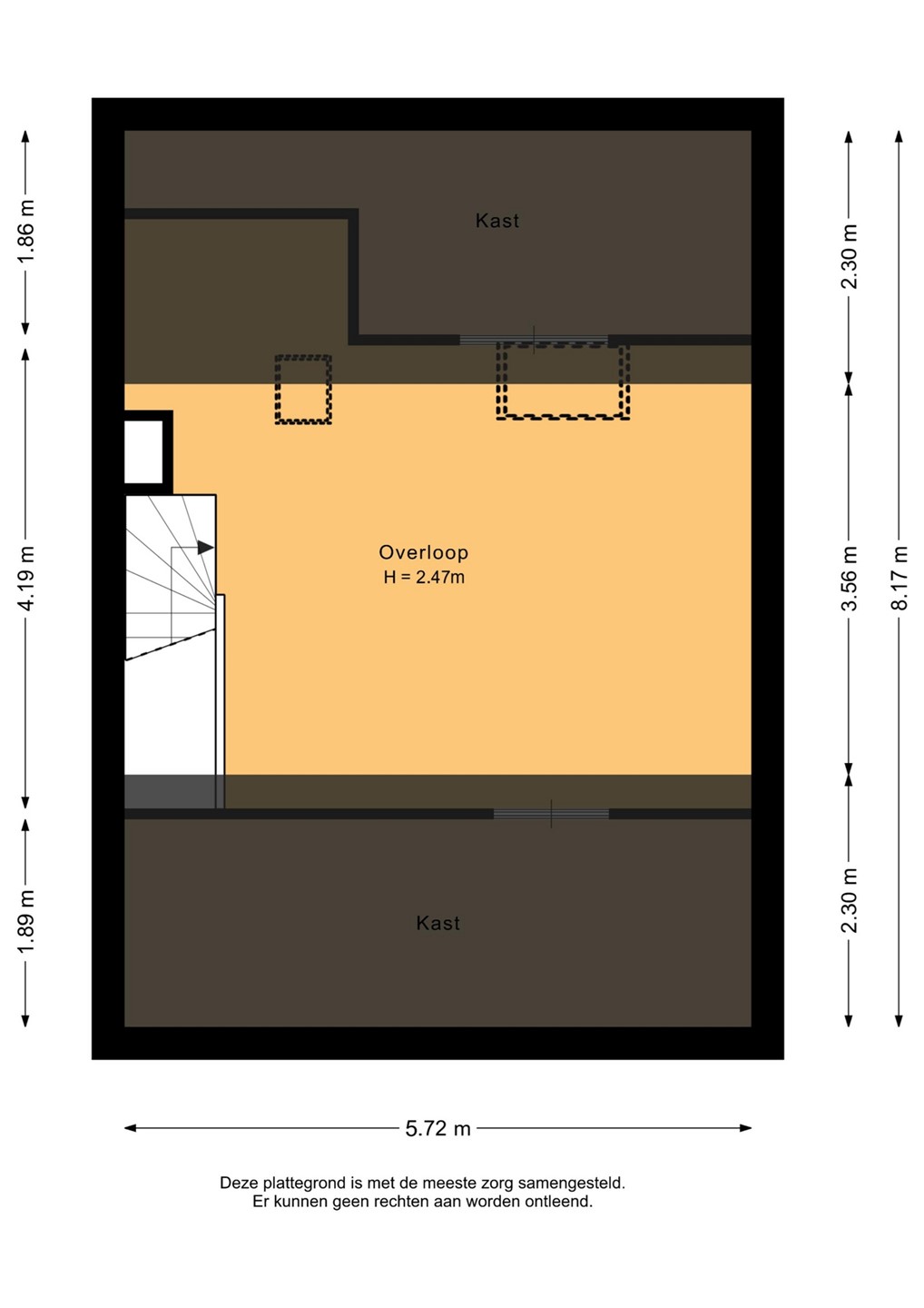
De tweede verdieping is bereikbaar via een vaste trap en bestaat uit een ruime, open zolder met dakramen. Deze verdieping biedt uitstekende mogelijkheden voor het realiseren van één of zelfs twee extra slaapkamers, een werkruimte of hobbyzolder.
De achtertuin is gelegen op het noorden en beschikt over een terras, tuinborders en een handige achterom via een brede gang. De vrijstaande berging met elektra, ideaal voor fietsen en opslag is ook in de achtertuin gesitueerd.
Paddepoel Noord staat bekend als een groene, rustige en prettige woonwijk met alle voorzieningen dichtbij. Het wijkwinkelcentrum Paddepoel ligt op loopafstand en biedt een ruim aanbod aan winkels en supermarkten. Daarnaast woont u hier zeer gunstig ten opzichte van uitvalswegen, de ring van Groningen en het Zernikecomplex, wat de wijk bijzonder aantrekkelijk maakt voor zowel gezinnen als werkenden. Openbaar vervoer, scholen en recreatievoorzieningen bevinden zich eveneens in de directe omgeving.
Samengevat biedt deze woning verrassend veel ruimte, een rustige ligging en uitstekende bereikbaarheid. Een fijne basis voor wie heerlijkl wil wonen in een prettige groene wijk, met volop mogelijkheden om de woning verder naar eigen smaak en wensen in te richten.
Wilt u de woning komen bezichtigen ? Neem dan contact op met ons kantoor en we zien elkaar bij deze aantrekkelijke en scherp geprijsde woning !
Indeling
Entree, 1.2 m², met meterkast.
Hal, 5.3 m², v.v. plavuizen, trapkast en trapopgang naar de verdieping.
Toiletruimte, v.v. staand toilet met fonteintje en natuurlijke ventilatie.
Woonkamer, 29.3 m², doorzon woonkamer v.v. laminaatvloer en schuifpui naar de tuin.
Keuken, 8.2 m², v.v. plavuizen, een keukenblok met losse apparatuur en de opstelling combiketel.
Bijkeuken, 8.2 m², open verbinding naar de keuken v.v. plavuizen, aansluitingen voor het witgoed en vaste kasten.
Diversen:
Vrijstaande berging, 9.5 m². gelegen in de achtertuin en beschikt over elektra.
Eerste verdieping
Overloop, 3 m², v.v. inbouwkast en vaste trap naar de 2e verdieping.
1e slaapkamer, 4.75 m², v.v. kunststof kozijnen.
2e slaapkamer, 5.25 m²,v.v. kunststof kozijnen.
3e slaapkamer', 12 m²,v.v. kunststof kozijnen en laminaatvloer
4e slaapkamer, 12.6 m², met inbouwkast, kunststof kozijnen en laminaatvloer.
Badkamer, 2.4 m², v.v. douche en wastafel.
Tweede verdieping
Zolderverdieping, 20.5 m², niet ingedeeld met dakramen en middels een vaste trap bereikbaar.
Tuin
Achtertuin, 41 m², gelegen op het Noorden, v.v. terras en via de achterom (brede gang) te bereiken.
Bijzonderheden
* Grotendeels kunststof kozijnen met HR++ beglazing
* Grote woonkamer met schuifpui
* De woning is uitgebouwd met een bijkeuken.
* 4 slaapkamers op de verdieping
* Vaste trap naar zolder, mogelijkheid voor extra slaapkamers
* Op loopafstand van wijkwinkelcentrum Paddepoel
* Nabij uitvalswegen naar de ring en het Zernike
*Gelegen aan een rustig hofje in een zeer prettige buurt
* De voortuin is ingericht en in gebruikt als tuin maar is geen eigendom (gemeente Groningen)