Beschrijving
Deze praktische eengezinswoning met vier slaapkamers en een onderhoudsvriendelijke tuin is ideaal voor starters en jonge gezinnen. De woning is verzorgd en goed onderhouden, recent nog geschilderd (2024), en biedt een prettige leefruimte met een sfeervolle indeling. Dankzij de schuifpui wordt de tuin bij de woonkamer betrokken en door de indeling van de Z-vormige woonkamer is het een comfortabele woning met open indeling.
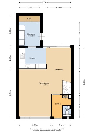
De woning beschikt op de begane grond een prima entree/hal (4,5 m²) is voorzien van plavuizen. Vanuit de hal is er toegang tot de toiletruimte, welke beschikt over een fonteintje. Via de hal is de ruime woonkamer (33 m²) te bereiken, deze sfeervolle woonkamer is gelegen in een speelse Z-vorm en beschikt over een warme houten vloer, een schuifpui naar de tuin en een vaste trap naar de eerste verdieping, wat zorgt voor een open en lichte sfeer.
De keuken (8 m²) is eveneens voorzien van dezelfde warme houten vloer en is daarnaast uitgerust met diverse inbouwapparatuur, waaronder een inductiekookplaat, afzuigkap, oven, koelkast en vaatwasser. Aansluitend bevindt zich de bijkeuken (8 m²), voorzien van lichte plavuizen en praktische inbouwkasten voor extra bergruimte.
Op de eerste verdieping bevindt zich een overloop (5 m²) met vaste trap naar de 2e verdieping. Op deze verdieping zijn drie slaapkamers gesitueerd van respectievelijk 12 m², 10 m² en 10 m². De grootste slaapkamer is voorzien van een wastafel met meubel. De badkamer (5 m²) is netjes en uitgevoerd met een inloopdouche, een wastafelmeubel, het 2e toilet en een designradiator.
De tweede verdieping beschikt over een ruime overloop met de opstelling voor de combi-ketel. Daarnaast bevindt zich hier de vierde slaapkamer (14 m²), afgewerkt met houten schroten, wat zorgt voor een warme en karaktervolle uitstraling.
Deze fijne en ruime woning beschikt daarnaast over een onderhoudsvriendelijke tuin, ideaal voor wie graag buiten zit zonder veel onderhoud. In de achtertuin bevindt zich een tuinhuis (11,5 m²), geschikt voor opslag, hobbyruimte of fietsenberging. De voortuin is eveneens ruim, heeft een ruim grasveld en heeft daarnaast nog een fijn terras (gelegen op het Westen).
De ligging in de kindvriendelijke woonwijk is ook ideaal, op loopafstand van basisscholen, supermarkt en op 5 minuten van recreatiepark. Daarnaast zijn de uitvalswegen naar A7 en het treinstation ook op korte afstand aanwezig. Deze goed gelegen eengezinswoning heeft alle voordelen nabij en is ook nog eens betaalbaar geprijsd.
De bezichtigingen van het pand gaan op afspraak, dus wilt u deze ruime woning bezichtigen ? Neem dan contact op met de makelaars van Ommeland Makelaardij en u bent van harte welkom.
Indeling
Entree, 4.5 m², v.v. plavuizen en meterkast.
Toilet, v.v. plavuizen en een fonteintje.
Woonkamer, 33 m², v.v. een houtenvloer, schuifpui en vaste trap naar de 1e verdieping.
Keuken, 8 m², met een houtenvloer en een inbouwhoekkeuken v.v. inductiekookplaat, afzuigkap, enkele spoelbak, oven, koelkast en vaatwasser.
Bijkeuken, 8 m², v.v. plavuizen en inbouwkasten.
Diversen:
Tuinhuis, 11.5 m²
Eerste verdieping
Overloop, 5 m², v.v. een vaste trap naar de zolder.
1e Slaapkamer, 12.3 m², v.v. een wastafelmeubel.
2e Slaapkamer, 10 m²
3e Slaapkamer, 10 m²
Badkamer, 5 m², v.v. een inloopdouche, een wastafelmeubel, het 2e toilet en een designradiator.
Tweede verdieping
Overloop, 8 m², met de opstellling van de combiketel.
4e slaapkamer, 14 m², met een houtenschroten plafond.
Tuin
Voortuin, 68 m², Gelegen op het Westen.
Achtertuin, 49 m², Gelegen op het Oosten.
Bijzonderheden
* De woning beschikt over een energielabel C !
* Buitenom geschilderd in 2024.
* Een Z-vormige woonkamer met schuifpui naar de tuin.
* Aan de achterzijde is er een bijkeuken geplaatst.
* De woning beschikt over 4 royale slaapkamers.
* De achtertuin is onderhoudsvriendelijke.
* De voortuin beschikt over een fijn terras en toch met privacy.
* Aanvaarding kan op korte termijn.