Beschrijving
Welkom in deze luxe en instapklare Tussenwoning op een uitstekende locatie aan de rand van de wijk! Hier woon je comfortabel, modern én energiezuinig.
De begane grond is volledig voorzien van vloerverwarming en strak afgewerkt met fraai laminaat en nieuw stucwerk. De open luxe keuken (2023) vormt het hart van de woning en daarnaast is er een praktische bijkeuken voor extra gemak. Buiten geniet je van een royale terrasoverkapping én een carport. Dankzij de zonnepanelen, kunststof kozijnen, dakisolatie en energielabel B woon je hier bovendien duurzaam.
Op de eerste verdieping vind je twee slaapkamers, waarvan één met walk-in-closet (eenvoudig weer naar een slaapkamer), en een luxe badkamer met heerlijke stortdouche. Via de vaste trap bereik je de zolder, waar een derde slaapkamer is gesitueerd.
Een complete, comfortabele woning waar je direct kunt intrekken!
Wilt u ook Wonen op een uitstekende locatie aan de rand van de wijk ? Hier heeft u alle voorzieningen dichtbij. Via het fietspad naast de woning bereikt u snel winkelcentrum De Hooge Meeren met o.a. winkels, horeca en een bioscoop. Sport en ontspanning vindt u op loopafstand bij sportpark De Kalkwijck, met zwembad, sporthallen en diverse sportvelden. Kortom veel woongenot in deze instapklare woning, maak gerust een afspraak, wij laten de woning graag aan u zien !
Indeling
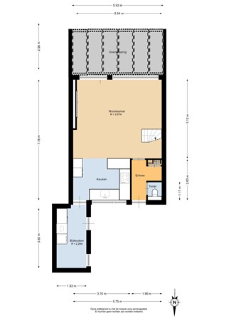
Entree, 4 m², met laminaatvloer.
Vernieuwd VH Toilet.
Rechthoekige Woonkamer, 30 m² met laminaatvloer v.v. vloerverwarming, gestucte wanden en deur naar de tuin.
Open Keuken, 10 m², v.v. inbouwhoekkeuken met enkele spoelbak, inductieplaat, combimagnetron, vaatwasser, koelkast,
Geïsoleerde Bijkeuken, 7 m², met tegelvloer en aansluiting WA/Droger.
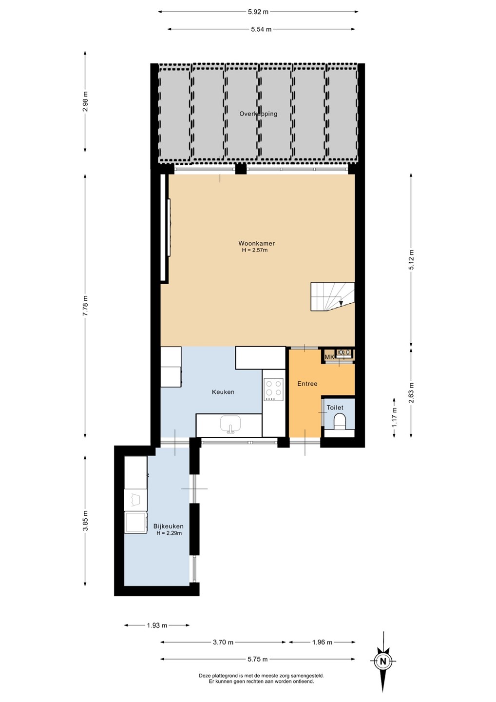
Eerste verdieping
Overloop, 4 m², v.v. laminaatvloer en spackwerk.
Slaapkamer, 9 m², v.v. laminaatvloer en spackwerk.
Slaapkamer met walk-in-closet, 21 m², v.v. laminaatvloer en spackwerk.
De walk-in-closet is eenvoudig weer naar een slaapkamer te veranderen.
Luxe badkamer, 5 m² met inloopdouche (stortdouche) , wastafelmeubel en vrijhangend toilet.
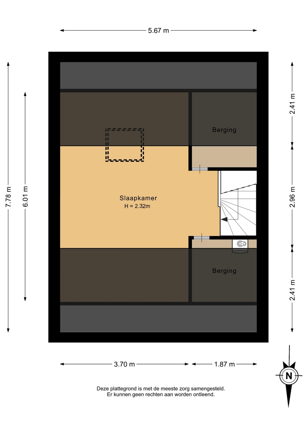
Tweede verdieping
Overloop met 2 handige bergruimtes van elk ca. 4 m²
Slaapkamer, 11m², v.v. laminaatvloer.
Tuin
Achtertuin, 55 m² met achterom gelegen op het Zuiden.
- Aan de woning vast is een royale overkapping gesitueerd.
- Tevens aan de achterzijde vind u een praktische carport met berging.
Voortuin, 16 m² met een extra schaduwterras.
Bijzonderheden
- Carport met berging.
- Royale Terrasoverkapping
- Geheel voorzien van kunststof kozijnen.
- Zonnepanelen en een elektrische boiler.
- Vloerverwarming op de begane grond.
- Luxe keuken en nieuwe badkamer.