Beschrijving
Aan de Ljepper 34 in het moderne buurtschap Wiarda staat deze uitstekend onderhouden vrijstaande woning uit 2020. Met een tuingerichte woonkamer, luxe open keuken, vier slaapkamers, een brede oprit en een fraai aan het water gelegen achtertuin met eigen aanlegsteiger, is dit een ideale woning voor wie op zoek is naar comfort, ruimte en energiezuinig wonen op een bijzondere locatie.
Bij binnenkomst ervaart u direct de moderne en verzorgde afwerking. De hal is voorzien van plavuizen, stijlvolle wandpanelen met houten latten en een trapopgang naar de verdieping. De moderne toiletruimte is uitgevoerd met een wandcloset, fonteintje en lichte plavuizen. De ruime woonkamer is tuingericht, heerlijk licht en beschikt over vloerverwarming en directe verbinding met de achtertuin aan het water. Dankzij de grote leefruimte is er volop plek voor een royale zithoek en een gezellige eethoek.
De open keuken heeft een moderne opstelling met kookeiland en is uitgerust met diverse inbouwapparatuur, waaronder een inductiekookplaat met geïntegreerde afzuiging, oven, vaatwasser, koelkast en vriezer. De gehele begane grond is voorzien van plavuizen met vloerverwarming, wat zorgt voor extra comfort en een strakke uitstraling.
Op de eerste verdieping bevinden zich twee royale slaapkamers van circa 19 m² en 22 m². Beide kamers zijn afgewerkt met een plavuisvloer met laminaat-look en bieden volop ruimte voor slapen, werken of hobby’s. De moderne badkamer is compleet uitgevoerd met een inloopdouche met een plexiglas opaal witte wand, wastafelmeubel, toilet en vloerverwarming. Ook deze verdieping is volledig voorzien van vloerverwarming, die per kamer is in te stellen. Dit draagt zeker bij aan een aangenaam wooncomfort.
Via een vaste trap bereikt u de tweede verdieping. Hier bevinden zich nog twee slaapkamers van circa 10 m² en 12 m², beide voorzien van een plavuisvloer met laminaat-look. Deze ruimtes zijn ideaal als extra slaapkamers, werkkamers of hobbyruimtes.
Ook buiten biedt deze woning veel extra’s. De brede oprit biedt parkeergelegenheid voor meerdere auto’s op eigen terrein. Daarnaast beschikt de woning over een vrijstaande houten berging en een overkapping aan de achterzijde. De achtertuin is gelegen aan open water en beschikt over een eigen aanlegsteiger, waardoor u vanuit uw eigen tuin direct het water op kunt. Een prachtige plek om te genieten van rust, ruimte en het uitzicht.
De woning is gebouwd in 2020, volledig geïsoleerd en beschikt over energielabel A. Met zes zonnepanelen en vloerverwarming in de gehele woning is dit een duurzame en energiezuinige woning met lage energielasten. De moderne afwerking, het comfort en de ligging maken dit een instapklare woning voor jarenlang woonplezier.
De woning ligt in het populaire Wiarda, onderdeel van De Zuidlanden aan de zuidkant van Leeuwarden. Deze jonge en kindvriendelijke woonomgeving kenmerkt zich door ruimte, groen en water. Voorzieningen zoals scholen, kinderopvang, sportverenigingen en supermarkten bevinden zich op korte afstand. Bovendien bent u binnen enkele minuten op de uitvalswegen en bereikt u het centrum van Leeuwarden binnen korte tijd.
Bent u op zoek naar een moderne, energiezuinige woning op een unieke locatie aan het water? Dan is deze woning aan de Ljepper 34 absoluut een bezichtiging waard. Neem contact op met Ommeland Makelaardij en plan snel een afspraak – u bent van harte welkom!
Indeling
Entree/hal, 4.4 m², v.v. plavuizen, wandpanelen met houten latten en trapopgang. Meterkast aanwezig.
Toiletruimte, modern uitgevoerd, v.v. wandcloset, fonteintje en plavuizen in lichte kleurstelling.
Woonkamer, 43 m², tuingericht en v.v. plavuizen met vloerverwarming en directe verbinding met de tuin.
Open keuken, 8 m², moderne opstelling v.v. kookeiland, inductiekookplaat met geïntegreerde afzuiging, oven, vaatwasser, koelkast en vriezer.
De gehele begane grond is voorzien van vloerverwarming met plavuizen.
Diversen:
Vrijstaande houten berging, 9 m².
Steiger, grenzend aan het terras voor het aanleggen van je eigen boot.
Eerste verdieping
Overloop, v.v. plavuizen vloer met laminaat-look, vaste trap naar de tweede verdieping.
1e slaapkamer, 19 m², gelegen aan de voorzijde, v.v. plavuizen vloer met laminaat-look.
2e slaapkamer, 22 m², gelegen aan de achterzijde, v.v. plavuizen vloer met laminaat-look.
Badkamer, 6,7 m², modern uitgevoerd, v.v. inloopdouche met een plexiglas opaal witte wand, wastafelmeubel, toilet en vloerverwarming.
De gehele eerste verdieping is voorzien van vloerverwarming die per kamer is in te stellen.
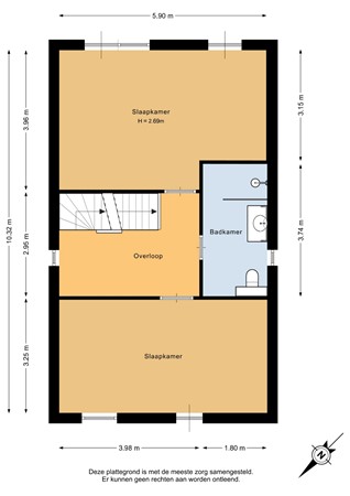
Tweede verdieping
Overloop, v.v. plavuizen met laminaat-look.
1e slaapkamer, 10 m², gelegen aan de voorzijde, v.v. plavuizen.
2e slaapkamer, 12 m², gelegen aan de achterzijde, v.v. plavuizen.
De gehele verdieping is voorzien van vloerverwarming die per kamer is in te stellen.
Tuin
Voortuin, 61 m², gelegen op het Noordwesten en keurig aangelegd.
Zijtuin/oprit, 102 m² geheel bestraat en met een lengte van 14 meter voldoende parkeerruimte.
Achtertuin aan het water, 74 m², vlonderterras gelegen op het Zuidoosten met eigen aanlegsteiger.
Bijzonderheden
* Bouwjaar 2020
* Volledig geïsoleerd met een Energielabel A !
* Voorzien van 6 zonnepanelen.
* Vloerverwarming in de gehele woning v.v. zone-regeling.
* Begane grond voorzien van plavuizen vloer met laminaat-look.
* Brede oprit met parkeergelegenheid voor meerdere auto’s.
* Achtertuin gelegen aan het water met eigen aanlegsteiger.