Beschrijving
Gelegen in een rustige en groene straat in Muntendam staat deze verzorgde twee onder een kapwoning. De woning springt direct in het oog door de brede oprit, de diepe achtertuin en de ruime aangebouwde garage met carport. De woning beschikt over energielabel A en is uitgerust met 8 zonnepanelen en airconditioning die zorgen voor een laag energieverbruik. Dit draagt bij aan een comfortabel binnenklimaat en lagere maandlasten.
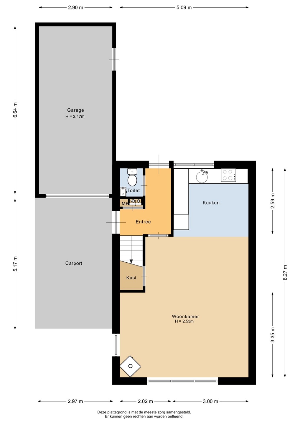
De overdekte entree geeft toegang tot de hal met toilet en trapopgang. De lichte woonkamer van 29 m² ligt aan de voorzijde en heeft een ruime indeling met grote ramen die zorgen voor een fijne lichtinval. De houten vloer geeft de ruimte een warme uitstraling. De gashaard biedt extra comfort op koelere dagen. De open keuken ligt aan de achterzijde en is in een hoekopstelling geplaatst, deze inbouwkeuken beschikt over voldoende inbouwapparatuur.
De aangebouwde garage is ruim (19 m²) en biedt mogelijkheden voor opslag, werkruimte of het parkeren van een voertuig. De carport aan de voorzijde maakt overdekt parkeren mogelijk.
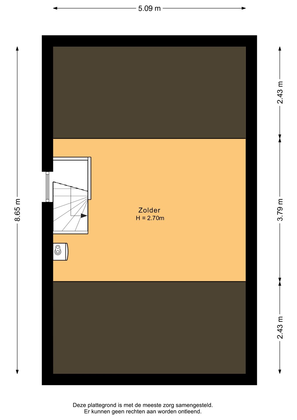
Op de eerste verdieping beschikt deze fijne woning over drie slaapkamers met een goede afmeting en een lichte uitstraling. De nette badkamer uit 2015 is uitgevoerd met een douche, toilet en een wastafelmeubel. De vaste trap brengt u naar de tweede verdieping waar een royale zolderruimte ligt. Deze verdieping biedt extra opslag en kan gebruikt worden als werkruimte of de vierde slaapkamer.
De achtertuin is diep gelegen op het Oosten en is onderhoudsvriendelijk aangelegd. De tuin is volledig omsloten, biedt veel privacy en achterin de tuin staat een houten tuinberging. De bestrating maakt de tuin praktisch en geschikt voor meerdere zitplekken. De voortuin is verzorgd aangelegd en de oprit is ook keurig onderhouden en volledig bestraat, wat bijdraagt aan de nette uitstraling van de woning.
Muntendam ligt centraal ten opzichte van Veendam en Groningen en biedt een rustige woonomgeving met alle dagelijkse voorzieningen in de buurt. Deze woning biedt ruimte, comfort en een energiezuinige basis in een verzorgde straat. Wilt u de woning bezichtigen, dan staat Ommeland Makelaardij en Assurantiën graag voor u klaar.
Indeling
Entree, 4 m², met trapopgang, meterkast en toegang tot de achtertuin
Toiletruimte, met fonteintje.
Woonkamer, 29 m², v.v. nette houten vloer, voorraadkast, gashaard en airco.
Open keuken, v.v. hoekopstelling met inductie-kookplaat, afzuigkap, oven en koeler.
Diversen:
Garage, 19 m², v.v. elektrische sectionaaldeur.
Carport, 15 m².
Tuinhuis, 7 m². (hout)
Eerste verdieping
Overloop, 4 m², met vaste trap naar de 2e verdieping.
1e slaapkamer, 7 m²,
2e slaapkamer, 11.4 m²,
3e slaapkamer, 13.2 m²,
Badkamer, 5.5 m², douche, toilet, wastafelmeubel.
Tweede verdieping
Zolder, 19.3 m², niet ingedeeld en uitstekend geschikt voor een 4e slaapkamer.
Tuin
Voortuin, 35 m², gelegen op het Westen.
Oprit, 14 meter lang v.v bestrating, carport en met toegang tot de garage.
Achtertuin, 120 m², gelegen op het Oosten, beschikt over een achterom.
Bijzonderheden
* Goed onderhouden 2-onder-1 kapwoning.
* Met een garage en een carport.
* De woning beschikt over een Energielabel A
* Vloer- dak- en muurisolatie
* 8 zonnepanelen (Oost-West)
* Kunststof dakgoten vervangen in 2025
* De woonkamer beschikt over een Airco-unit
* Zolder zeer geschikt voor de 4e slaapkamer
* Zonnige achtertuin met een achterom naast de garage.
* Gelegen in een kindvriendelijke wijk nabij (basis)scholen.
* Goed gelegen t.o.v. uitvalswegen en openbaar vervoer.