Beschrijving
Deze sfeervolle en ruime hoekwoning met serre, garage en zonnepanelen is gelegen in een kindvriendelijke woonomgeving. De woning is goed onderhouden en biedt veel leefruimte en een praktische indeling, daarnaast zijn er energiebesparende voorzieningen getroffen en beschikt de woning over meerdere bergingen. Dankzij de kunststof kozijnen met HR++ glas, rolluiken, twee overkappingen en maar liefst 16 zonnepanelen is dit een comfortabel en duurzaam huis, Energielabel B !
De begane grond beschikt over een entree met trapopgang en toiletruimte. De woonkamer (27 m²) heeft een laminaatvloer en rolluiken aan de voorzijde. De halfopen keuken (6 m²) is voorzien van diverse inbouwapparatuur, waaronder een oven, koelkast, vriezer, 4-pits kookplaat, spoelbak, designradiator en Quooker-kraan. De serre (18 m²) vormt een fijne uitbreiding van de leefruimte en is uitgerust met vloerverwarming, laminaatvloer, pelletkachel en een schuifpui naar de tuin.
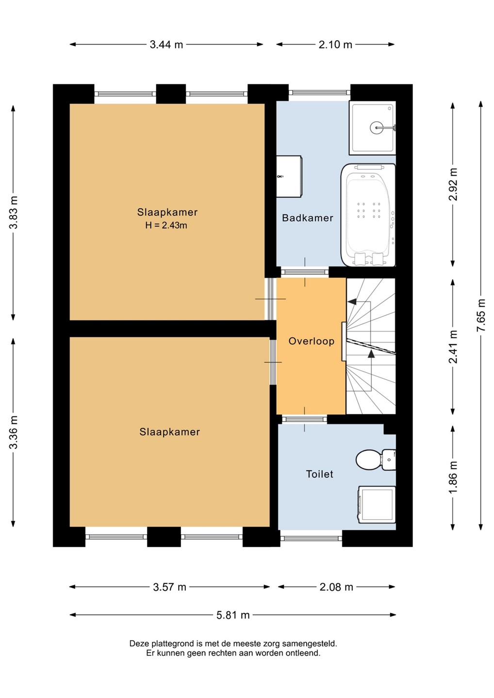
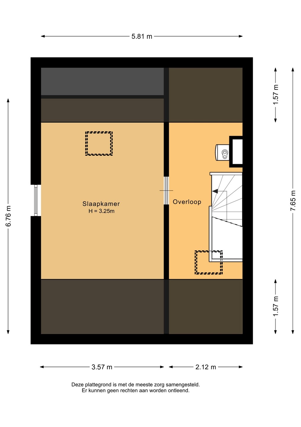
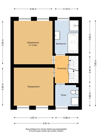
Op de eerste verdieping bevinden zich twee ruime slaapkamers (13 m² en 12 m²), beide voorzien van een laminaatvloer, waarvan één met rolluiken. De badkamer (6 m²) is compleet uitgerust met een douchecabine, whirlpool-ligbad, wastafelmeubel en designradiator. Daarnaast is er een aparte toiletruimte (4 m²) met aansluiting voor de wasmachine en droger. De tweede verdieping biedt een overloop met CV-installatie, elektrische boiler en een dakraam voor natuurlijk lichtinval. Daarnaast is op deze verdieping ook de 3e ruime slaapkamer (16 m²) gesitueerd, deze is eveneens met dakraam en laminaatvloer uitgevoerd.
De woning beschikt over een verzorgd aangelegde voor-, zij- en achtertuin. De achtertuin (73 m²) ligt gunstig op het westen en is voorzien van een achterom. De voortuin (23 m²) bevindt zich aan de oostzijde en de zijtuin (6 m²) aan de zuidzijde. Daarnaast zijn er twee overkappingen (20 m² en 12 m²), een vrijstaande garage (13 m²) en twee bergingen (15 m² en 6 m²) aanwezig, wat zorgt voor voldoende opbergmogelijkheden.
Gelegen op korte afstand van het centrum van Muntendam met supermarkt en een leuk winkelaanbod met o.a. slager en bakker. Daarnaast zijn de basisscholen en de sportvelden op enkele minuten gelegen, ook de heemtuin met veel wandelroutes in de natuur is eenvoudig bereikbaar zijn. De woning is ook ideaal gelegen t.o.v. de uitvalswegen naar N33 en A7, waardoor Delfzijl - Groningen - Assen eenvoudig te bereiken zijn.
Indeling
Entree, 5 m² v.v. laminaatvloer, stucwerk en trapopgang.
Toilet, 1 m² v.v. betegeling en een fonteintje.
Woonkamer, 27 m² v.v. een laminaatvloer en stucwerk.
Keuken, 6 m² v.v. een PVC-vloer met een hoekkeuken v.v. een spoelbak met Quooker kraan, een 4-pits kookplaat, afzuigkap, oven, koelkast, vriezer en designradiator.
Serre, 18 m², v.v. vloerverwarming met een laminaatvloer, pellet-kachel en een schuifpui.
Diversen:
Overkapping, 20 m², (aluminium)
Overkapping, 12 m²,
Garage, 13 m², vrijstaand
Berging, 15 m², v.v. elektra
Berging, 6 m²,
Eerste verdieping
Overloop, 5 m² v.v. een laminaatvloer.
1e slaapkamer, 13 m² v.v. een laminaatvloer en rolluiken.
2e slaapkamer, 12 m² v.v. een laminaatvloer en rolluiken.
Badkamer, 6 m² v.v. betegeling, douchecabine, whirlpool ligbad, wastafelmeubel en designradiator.
Toilet, 4 m² v.v. plavuizen, aansluiting wasautomaat en droger.
Tweede verdieping
Overloop, 10 m² v.v. een laminaatvloer en CV installatie, elektrische boiler en een dakraam.
3e slaapkamer, 16 m² v.v. een laminaatvloer en een dakraam.
Tuin
Voortuin, 23 m², gelegen op het Oosten en ingericht als siertuin.
Achtertuin, 73 m², v.v. terras, overkappingen en met een achterom, gelegen op het Westen.
Zijtuin, 6 m², gelegen op het Zuiden.
Bijzonderheden
* De woning is v.v. kunststof kozijnen (draai-/kiep) met HR++ glas
* De verdieping van de woning is voorzien van rolluiken
* De moderne keuken is v.v. veel inbouwapparatuur met o.a. Quooker-kraan
* Er zijn maar liefst 16 zonnepanelen aanwezig
* De woning beschikt over een elektrische boiler, 2 airco’s (inverter) en waterontharder
* De serre beschikt tevens over vloerverwarming en een pelletkachel
* Er zijn maar liefst 2 overkappingen en 2 bergingen aanwezig
* De woning heeft daarnaast nog een vrijstaande garage
* Op loopafstand van basisschool, sportvelden en de Heemtuin
* Daarnaast heeft Muntendam een prima winkelaanbod voor de basisbehoefte