Beschrijving
Op een fraai gelegen hoekperceel in de dorpskern van Muntendam staat deze verzorgde twee-onder-een-kapwoning met royale aanbouw, ruime oprit, vrijstaande stenen garage en een onderhoudsvriendelijke tuin rondom. De woning is de afgelopen jaren op belangrijke punten gemoderniseerd, waaronder een moderne keuken (2022) en een luxe badkamer (2024), waardoor comfortabel wonen hier direct mogelijk is.
De ligging is rustig en toch centraal, met winkels, scholen, sportvoorzieningen, openbaar vervoer en uitvalswegen (A7 en N33) op korte afstand.
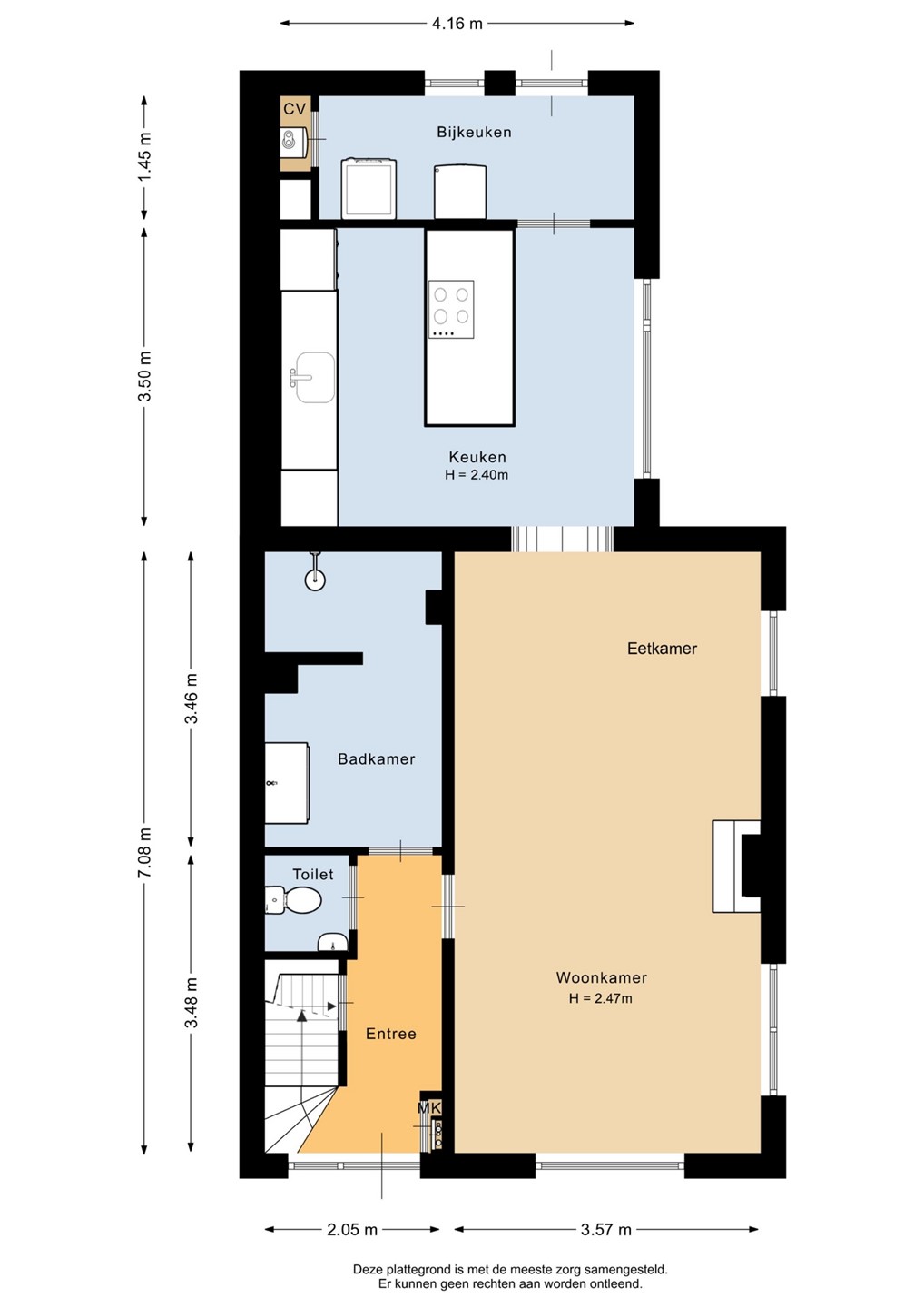
Via de entree komt u in de hal met laminaatvloer, meterkast en trapopgang. Vanuit hier bereikt u het toilet met fonteintje en de moderne badkamer (2024), uitgevoerd met vloerverwarming, een ruime inloopdouche, dubbele wastafel en designradiator.
De sfeervolle woonkamer (ca. 25 m²) is voorzien van een nette laminaatvloer, airconditioning en een karakteristieke schouw, wat zorgt voor een warme en huiselijke uitstraling. De woonkamer staat in open verbinding met de keuken, wat zorgt voor een prettig en ruimtelijk geheel.
De keuken (2022) is modern en eigentijds uitgevoerd en beschikt over een kookeiland met barfunctie, 4-pits kookplaat met geïntegreerde afzuiging, combi-oven, koelkast, vriezer en vaatwasser. Een fijne leefkeuken waar koken en samenzijn centraal staan.
Aansluitend bevindt zich de praktische bijkeuken met plavuizen vloer, witgoedaansluitingen, de cv-opstelling en toegang tot de tuin en de overkapping.
Op de verdieping biedt de overloop toegang tot drie volwaardige en ruime slaapkamers van respectievelijk ca. 10,6 m², 14,6 m² en 22 m², allen voorzien van laminaatvloeren en inbouwkasten. De grootste slaapkamer beschikt over dakramen en een prettige lichtinval. Daarnaast beschikt de woning over een bergzolder die via de vlizotrap bereikbaar is, ideaal voor extra opslag.
De tuin is rondom gelegen en biedt een onderhoudsvriendelijk geheel, grotendeels v.v. een terras en omheind met schuttingen en een fraai hekwerk. De tuin heeft door zijn ligging de gehele dag zon maar ook schaduwplekken, waardoor je het gehele jaar van de tuin kan genieten.
Wilt u deze woning bezichtigen? Neem dan contact op met ons kantoor, we laten de woning graag aan je zien !
Indeling
Entree, 3,6 m², v.v. laminaatvloer, meterkast en trapopgang.
Toilet met fonteintje.
Badkamer, 7 m², v.v. betegeling, vloerverwarming, dubbele wastafel, designradiator en inloopdouche.
Woonkamer, 25 m², v.v. laminaatvloer, airco en toegang tot de keuken.
Keuken (2022), 14,5 m², v.v. laminaatvloer, kookeiland met 4-pits kookplaat incl. afzuiging, combi-oven, koelkast, vriezer en vaatwasser.
Bijkeuken, 6 m², v.v. plavuizen, witgoedaansluiting en cv-opstelling.
Diversen:
Garage, 22,5 m², vrijstaand en v.v. een fraaie vloer.
Eerste verdieping
Overloop, 3 m², v.v. vloerbedekking en toegang tot de vliering.
Toilet
Tussenhal, 6 m², v.v. laminaatvloer.
1e slaapkamer, 10,6 m², v.v. laminaatvloer.
2e slaapkamer, 14,6 m², v.v. laminaatvloer en inbouwkasten.
3e slaapkamer, 22 m², v.v. laminaatvloer, inbouwkast en dakramen.
Tweede verdieping
Bergzolder, toegankelijk via vlizotrap.
Tuin
Voortuin, 60 m², gelegen op het Westen, onderhoudsvriendelijk met een mooi sierhek
Zijtuin, 69 m², gelegen op het Zuiden, geheel bestraat en omheind met schuttingen.
Achtertuin, 56 m², gelegen op het Oosten met eigen oprit.
Bijzonderheden
* Royale aanbouw en verrassend veel leefruimte
* Moderne keuken met kookeiland geplaatst in 2022
* Luxe badkamer vernieuwd in 2024, voorzien van vloerverwarming
* Woonkamer met airconditioning
* Drie ruime slaapkamers + bergzolder (via vlizotrap)
* Praktische bijkeuken met witgoedaansluitingen en cv-opstelling
* Vrijstaande stenen garage ca. 22,5 m² en parkeergelegenheid op eigen terrein
* Onderhoudsvriendelijke tuin rondom met meerdere zonliggingen.
* Gelegen in de dorpskern van Muntendam, nabij voorzieningen en uitvalswegen (A7/N33)