Beschrijving
Sfeervol en licht appartement op de bovenste woonlaag met balkon, lift en eigen parkeerplaats in het centrum van Norg.
Op een prachtige locatie in het gezellige centrum van Norg bevindt zich dit comfortabele en goed onderhouden appartement (bouwjaar 2004) met een woonoppervlakte van circa 96 m². Gelegen op de bovenste woonlaag van het complex, geniet u hier van rust, privacy én een vrij uitzicht over het groene centrum van het dorp.
Het appartement is volledig geïsoleerd, voorzien van dak- en muurisolatie en volledig dubbel HR-glas, en beschikt over energielabel B. Verwarming en warm water worden verzorgd door een eigen cv-ketel (bj 2025). Dit alles zorgt voor een prettig en energiezuinig wooncomfort.
Via de centrale entree met intercom, postbussen, lift en trappenhuis bereikt u het appartement op de tweede verdieping.
De ruime hal geeft toegang tot alle vertrekken. De woonkamer van circa 40 m² is heerlijk licht dankzij de grote raampartijen en balkondeuren. Met een laminaatvloer, airconditioning en een Frans balkon is dit een fijne leefruimte in elk seizoen. Vanuit de woonkamer stapt u zo het balkon op het zuidwesten op, waar u kunt genieten van de middag- en avondzon. De open keuken is praktisch ingericht in een hoekopstelling en voorzien van diverse inbouwapparatuur, waaronder een gaskookplaat, afzuigkap, combi-oven en koelkast. Aansluitend bevindt zich een ruime bijkeuken met witgoedaansluitingen, cv-opstelling en mechanische ventilatie – ideaal voor extra bergruimte.
Het appartement beschikt over twee comfortabele slaapkamers, beide voorzien van een laminaatvloer. Eén van de slaapkamers heeft bovendien een Frans balkon. De badkamer is compleet uitgevoerd met ligbad, douchecabine en wastafel. Daarnaast is er een separaat toilet aanwezig.
In de afgesloten parkeerkelder beschikt u over een eigen parkeerplaats en een separate fietsenberging met elektra. Dit maakt het appartement niet alleen comfortabel, maar ook bijzonder praktisch.
Norg staat bekend om zijn sfeervolle dorpskern, groene omgeving en uitstekende voorzieningen. Vanuit het appartement kijkt u uit over het centrum met veel bomen en groen. De supermarkt bevindt zich tegenover het complex en ook restaurants en het zwembad Molenduinbad liggen op korte afstand.
Daarnaast woont u hier midden in een prachtige natuurrijke omgeving, nabij de natuurgebieden Noordscheveld en Langeloërduinen – ideaal voor wandel- en fietsliefhebbers. De ligging is bovendien gunstig ten opzichte van Assen, Roden en Groningen, waardoor u rustig woont met de stad binnen bereik.
Kortom: een licht en sfeervol appartement op een toplocatie in Norg, met balkon op de zon, twee slaapkamers, lift, eigen parkeerplaats en vrij uitzicht.
Een ideale plek voor wie comfortabel en zorgeloos wil wonen in een groene en levendige omgeving.
Wilt u dit heerlijke appartement komen bezichtigen? Neem dan contact op met de makelaars van Ommeland Makelaardij en u bent van harte welkom!
Indeling
Begane grond:
Portiek met postbussen, toegang en intercom
Trappenhuis en lift.
2e verdieping:
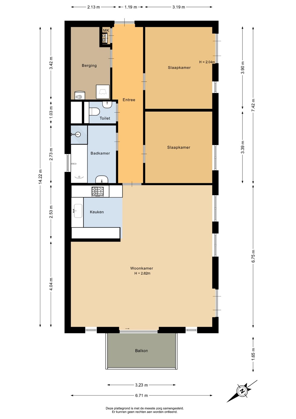
Entree, 8.8 m² v.v. laminaatvloer.
Woonkamer, 40 m², v.v. laminaatvloer, airco, een frans balkon en balkondeuren naar het balkon (5.2 m²) gelegen op het Zuidwesten.
Keuken, 5.7 m², open inbouwkeuken in hoekopstelling, v.v. 1¼ spoelbak, gaskookplaat, afzuigkap, combi-oven en koelkast.
Bijkeuken, 7.3 m², v.v. laminaatvloer, opstelling voor het witgoed, combiketel en mechanische ventilatiebox.
1e slaapkamer, 10.8 m², v.v. laminaatvloer
2e slaapkamer, 12.4 m², v.v. laminaatvloer en frans balkon.
Badkamer, 5.8 m², v.v. vloertegels, ligbad, wastafel en douche met cabine.
Separaat toiletruimte.
Diversen:
Fietsenberging, 5 m², v.v. elektra.
Parkeerplaats in kelder, 21 m².
Balkon
Balkon, 5.2 m², middels de woonkamer te bereiken en gelegen op het Zuidewesten.
Bijzonderheden
* Sfeervol appartement gelegen op de bovenste woonlaag.
* Het appartement beschikt over een zonnige woonkamer met airco en balkon.
* Er zijn 2 ruime slaapkamers in het appartement aanwezig.
* In de afgesloten parkeerkelder is een eigen parkeerplaats aanwezig.
* Tevens is er een (fietsen)berging gelegen in de parkeerkelder.
* Vrij uitzicht over het centrum van Norg met veel bomen en groen.
* Tegenover supermarkt en nabij restaurants, het zwembad Molenduinbad.
* Centraal gelegen nabij natuurgebieden Noordscheveld en Langeloërduinen.
* Ideale ligging t.o.v. Assen, Roden en Groningen.