Beschrijving
Gelegen in een rustige straat in het gemoedelijke Schildwolde staat deze moderne en verrassend ruime woning uit 2006 aan de Taco Haringastraat 6. De woning combineert comfortabel wonen met energiezuinigheid dankzij de aanwezigheid van 12 zonnepanelen. Met een royale woonkamer, vier slaapkamers, een vernieuwde keuken uit 2022 en een diepe achtertuin op het zuidwesten is dit een ideale gezinswoning. Daarnaast is deze woning in de basis al met 1.5 meter verlengt en beschikt de woning over een erker aan de voorzijde, een royale dakkapel op de 2e verdieping, aangebouwde garage, ruime carport en een sfeervolle overkapping, wat zorgt voor extra veel leefruimte.
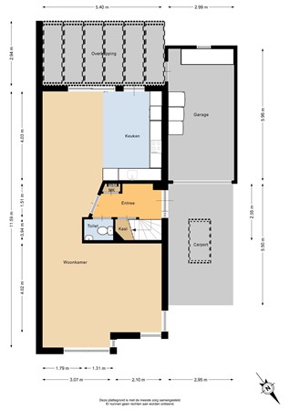
De woning is te betreden middels een zij-entree, deze is voorzien van een laminaatvloer en ook de meterkast en de vaste trap naar de verdieping zijn hier gesitueerd. In de hal bevindt zich tevens de nette toiletruimte. De ruime woonkamer met erker (47 m²) is in een L-vorm gesitueerd en vormt het hart van de woning, ook deze fijne ruimte is voorzien van een laminaatvloer. De open keuken (10 m²), is vernieuwd in 2022 en beschikt over diverse inbouwapparatuur zoals een inductiekookplaat, afzuigkap, oven, combi-oven, koel-vriescombinatie, vaatwasser en een Quooker. Daarnaast is de achtertuin via de deur en ook via de schuifpui te bereiken en komt ui direct onder de overkapping uit om van het buitenleven te genieten.
Op de verdieping biedt de overloop (4,5 m²) toegang tot drie goede slaapkamers (12 m², 11 m² en 10 m²), allen voorzien van een laminaatvloer. De badkamer (5 m²) is compleet en voorziet u van een douchecabine, een ligbad, wastafelmeubel, het 2e toilet en een designradiator. Via de vaste trap is de tweede verdieping te bereiken, de zolder is voorzien van een ruime dakkapel is nog niet ingedeeld maar wel in gebruik als een vierde slaapkamer (22 m²), daarnaast zijn op deze verdieping ook de combiketel en de aansluitingen voor wasmachine en droger aanwezig.
Buitenom is het eveneens genieten, de woning beschikt over een voortuin (26,5 m²) op het noordoosten, een zijtuin (61,6 m²) op het noordwesten en een royale achtertuin van maar liefst 197 m² op het zuidwesten. In de achtertuin bevindt zich een sfeervolle overkapping (16 m²) grenzend aan de woning, een diepe tuin met meerdere terrassen, grasveld en borders. Tevens is er de beschikking over een garage (18 m²) en aangrenzende carport (16 m²), beide zijn via de voorzijde van de woning bereikbaar en bieden, in combinatie met de nette oprit, veel parkeergelegenheid op eigen terrein.
Schildwolde staat bekend om zijn rustige en groene woonomgeving, zo zijn het Slochterbos, het Roegwold nabij gelegen maar ook op ca. 200 meter zijn de Schotse Hooglanders te vinden. Daarnaast zijn diverse voorzieningen in het aangrenzende Slochteren aanwezig en is er een goede bereikbaarheid richting Groningen en A7.
Deze heerlijke ruime en goed onderhouden woning is energiezuinig heeft veel leefruimte en een heerlijke zonnige tuin? Wilt u deze woning komen bezichtigen, neem dan contact op met de makelaars van Ommeland Makelaardij en u bent van harte welkom !
Indeling
Entree, 4.2 m², v.v. een laminaatvloer, meterkast, voorraadkast en een vaste trap naar de verdieping.
Toiletruimte, v.v. betegeling en fonteintje.
Woonkamer, 47 m², gelegen in een L-vorm met een erker aan de voorzijde en geheel v.v. een laminaatvloer.
Open keuken, 10 m², v.v. een laminaatvloer, en beschikt over een inbouwkeuken in een hoekopstelling met een inductie-kookplaat, afzuigkap, oven, combi-oven, koel-vriescombinatie, vaatwasser en een Quooker. Daarnaast is de tuin te bereiken via de achterdeur en de schuifpui.
Diversen;
Overkapping, 16 m², met licht-doorlatende platen, grenzend aan de achterzijde van de woning.
Houten tuinberging, 18 m², v.v. elektra.
Carport, 16 m², met lichtkoepel.
Garage, 18 m², v.v. elektrische sectionaaldeur en grenzend aan de woning.
Eerste verdieping
Overloop, 4.5 m², v.v. een laminaatvloer en vaste trap naar de 2e verdieping.
1e Slaapkamer, 12 m², v.v. een laminaatvloer.
2e Slaapkamer, 11 m², v.v. een laminaatvloer.
3e Slaapkamer, 10 m², v.v. een laminaatvloer.
Badkamer, 5 m², v.v. een douche-cabine, ligbad, wastafelmeubel, 2e toilet, designradiator.
Tweede verdieping
Zolderkamer, 22 m², v.v. een laminaatvloer, dakkapel opstelling combiketel en aansluitingen voor wasautomaat en droger.
Tuin
Voortuin, 26 m², gelegen op het Noordoosten.
Zijtuin, 61 m², gelegen op het Noordwesten.
Achtertuin, 197 m², gelegen op het Zuidwesten met terrassen, overkapping, tuinhuis, gazon en borders.
Bijzonderheden
* Gelegen in een rustige en kindvriendelijke straat nabij voorzieningen.
* Moderne woning, uitgebouwd met 1.5 meter aan de achterzijde,
* De woning heeft een erker, dakkapel en carport als vele extra's meegekregen met de bouw.
* Hierdoor is een praktische en ruime indeling van de woning gerealiseerd.
* Energiezuinig dankzij 12 zonnepanelen gelegen op het Zuidwesten.
* Royale woonkamer van circa 47 m² met erker en tuindeuren en veel lichtinval.
* Keuken vernieuwd in 2022 en voorzien van diverse inbouwapparatuur met o.a. een Quooker.
* Vier slaapkamers, waarvan een ruime zolderkamer van 22 m² met dakkapel.
* Complete badkamer met douchecabine, ligbad, wastafelmeubel en toilet.
* Diepe achtertuin van circa 197 m² gelegen op het zuidwesten, ideaal voor zonliefhebbers.
* Sfeervolle overkapping van 16 m² voor extra buitencomfort.
* Carport van 16 m² met lichtkoepel en oprit met parkeergelegenheid op eigen terrein.
* Garage van 18 m² en extra berging van 18 m² aanwezig.
* Gelegen op korte afstand van voorzieningen en met goede bereikbaarheid richting Groningen (10 minuten).
* Op 200 meter het Dorpsrandpark van Slochteren met o.a. een aantal Schotse Hooglanders en waterplassen.
* Op loopafstand van de Fraeylemaborg en het Slochterbos.
* Op fietsafstand van het natuurgebied Het Roegwold met veel plassen en een bonte variatie aan (trek)vogels.