Beschrijving
Gelegen aan het karakteristieke Oosterdiep, midden in het centrum van Veendam, staat deze sfeervolle en ruime woning met uitzicht over het vaarwater. De woning maakt deel uit van het beschermd stads en dorpsgezicht, waardoor het historische karakter prachtig behouden is gebleven. Daarnaast beschikt deze unieke woning over parkeerruimte naast het huis en is zij volledig aangepast aan de eisen van deze tijd, met onder andere een vernieuwde keuken uit 2024, pvc vloeren door de gehele woning en 12 zonnepanelen. De woning is bovendien verduurzaamd en beschikt over een definitief energielabel C, wat zorgt voor lagere energielasten en prettig wooncomfort. Tegelijkertijd zijn de authentieke details behouden gebleven, zoals glas in lood ramen, paneeldeuren en het balkenplafond op de verdieping. Deze karaktervolle woning is dan ook een bijzonder fijne plek om te wonen.
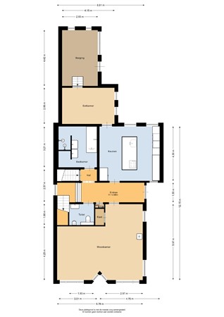
De begane grond biedt een ruime entree met hal (10,5 m²) en middels deze ruimte bereikt u de kelder en het toilet met urinoir en wastafelmeubel. De woonkamer (33,8 m²) is aan de voorzijde gesitueerd en is voorzien van een pvc-vloer, glas-in-loodramen, een pelletkachel en een inbouwkast, daarnaast is er een prachtig zicht over het Oosterdiep door de vele raampartijen. De moderne woonkeuken (20 m²) beschikt over een kookeiland en is daarnaast uitgerust met diverse inbouwapparatuur, waaronder een inductiekookplaat met geïntegreerde afzuiging, een combi-oven en een stoomoven, een koelkast en een vaatwasser. De aangrenzende eetkamer (11,8 m²) biedt ruimte voor een grote tafel om met het gehele gezin te genieten, daarnaast biedt de eetkamer toegang tot de aangebouwde berging (12,5 m²) met (berg)vliering. De begane grond is daarnaast voorzien van een complete badkamer (9,6 m²), deze beschikt over een inloopdouche met dubbele stortdouche, een ligbad en een dubbele wastafel.
Op de eerste verdieping is een ruime overloop gesitueerd, deze overloop (9 m²) beschikt over een Velux-dakraam en 2 inbouwkasten. Daarnaast zijn er maar liefst (5) vijf slaapkamers gesitueerd op de verdieping (7,5 m² tot 17 m²), waarvan er twee zijn uitgevoerd met airconditioning. De grootste slaapkamer beschikt over een balkon aan de voorzijde van de woning. De gehele verdieping is voorzien van een pvc-visgraatvloer.
Achter de woning is de besloten achtertuin (194 m²) gelegen, deze is voorzien van een terras en een groot gazon en is gericht op het Zuid-Oosten waardoor het lang genieten is van de zon. Naast de woning is de zijtuin gelegen, deze is grotendeels bestraat en biedt voldoende parkeerruimte op eigen terrein.
Deze woning combineert authentiek karakter, moderne afwerking en een gunstige ligging in het hart van Veendam – een unieke kans voor wie comfortabel en sfeervol wil wonen. Wilt u deze karakterwoning ervaren, maak dan een afspraak met de makelaars van Ommeland Makelaardij en we zien u graag bij de bezichtiging!
Indeling
Entree/hal, 10,5 m², v.v. pvc vloer.
Toilet, v.v. hangend toilet, urinoir en wastafelmeubel.
Woonkamer, 33,8 m², v.v. pvc vloer, glas-in-lood ramen, inbouwkast en pelletkachel.
Badkamer beneden, 9,6 m², v.v. plavuizen, inloopdouche met twee stortdouches, ligbad en dubbele wastafel.
Keuken, 20 m², v.v. pvc vloer, glas-in-lood ramen, kookeiland, kookplaat incl. afzuiging, spoelbak, combi-oven, stoom-oven, koelkast en vaatwasser.
Eetkamer, 11,8 m², v.v. pvc vloer, witgoed aansluiting en toegang tot de aangebouwde berging.
Diversen:
Kelder, 8 m², via de hal te bereiken.
Berging, 12,5 m², aangebouwd van steen te bereiken via de eetkamer, v.v. elektra en vliering.
Eerste verdieping
Overloop, 9 m², v.v. pvc vloer, Velux dakraam en inbouwkasten.
Slaapkamer 1, 10,5 m², v.v. pvc vloer en airco.
Slaapkamer 2, 16 m², v.v. pvc vloer en Velux dakraam.
Slaapkamer 3, 9,8 m², v.v. pvc vloer en 2 Velux dakramen.
Slaapkamer 4, 17 m², v.v. pvc vloer, airco en toegang tot het balkon.
Slaapkamer 5, 7,5 m², v.v. pvc vloer en inbouwkast.
Balkon
Balkon via de grootste slaapkamer te bereiken, ca. 2 m².
Tuin
Voortuin, 16 m², gelegen op het Westen.
Zijtuin, 28 m², gelegen op het Zuiden en grotendeels bestraat t.b.v. oprit.
Achtertuin, 194 m² gelegen op het Zuid-Oosten, v.v. een terras en gazon.
Bijzonderheden
* Gelegen aan het vaarwater in het centrum van Veendam
* Parkeren op eigen terrein, naast de woning
* Onderdeel van het beschermd stads- en dorpsgezicht
* Gemeentelijk monument, aanduiding B (voorgevelzone)
* Moderne keuken (2024) met kookeiland en hoogwaardige inbouwapparatuur
* 12 zonnepanelen (energiezuinig en duurzaam)
* Sfeervolle woonkamer met glas-in-loodramen en pelletkachel
* Vijf slaapkamers, waarvan twee voorzien van airconditioning
* De woning is grotendeels v.v. een pvc-visgraatvloer (2024)
* De woonkamer is recent v.v. nieuwe stijlvolle shutters
* Instapklare woning met behoud van karakter en moderne afwerking
* Gunstige ligging nabij winkels, horeca, scholen en openbaar vervoer