Beschrijving
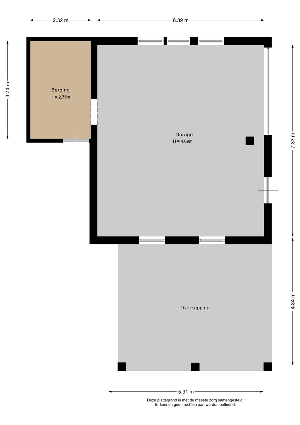
Deze woning is vanaf 2019/2020 volledig gerenoveerd en dat ziet u overal terug: van de vloeren tot de badkamer, van de verdieping tot de technische installaties. Dat betekent dat u hier zó kunt intrekken. Bovendien is de woning levensloopbestendig dankzij de slaapkamer en badkamer op de begane grond, gesitueerd in de aanbouw. Comfortabel wonen voor nu, maar ook met het oog op de toekomst! De brede oprit van maar liefst 27 meter en de vrijstaande garage (46 m²) met zonnepanelen en houtkachel maken het geheel compleet. Met een energielabel A bent u gereed voor de toekomst.
De lichte woonkamer beschikt over een laminaatvloer, airco en sfeervolle houtkachel. De inbouwkeuken is uitgerust met kookplaat, oven en afzuiging. De woning is aan de achterzijde vergroot met een forse aanbouw, deze is dan ook als volgt ingedeeld; toiletruimte met (hang)closet, de ruime badkamer (12 m²) met dubbele wastafel, inloopdouche en witgoedaansluiting, en de slaapkamer (13 m²), allen keurig afgewerkt en middels een ruime hal te bereiken.
Op de verdieping vindt u nog eens twee slaapkamers (12,5 m² en 11 m²) met laminaatvloer en een overloop. Extra bergruimte is aanwezig op de zolder, bereikbaar via een vlizotrap.
Buiten geniet u van volop ruimte. De voortuin is netjes aangelegd met sierhek en gazon, terwijl de diepe achtertuin (426 m²) op het westen is gesitueerd, zodat u tot in de avondzon kunt genieten van het terras, gazon en de overkapping. De 27 meter lange oprit en de vrijstaande garage (46 m²), voorzien van zonnepanelen, houtkachel en elektra, maken dit huis extra praktisch en compleet.
Een instapklare woning die sfeer, ruimte en duurzaamheid goed combineert – klaar voor nieuwe bewoners!
Klinkt dit als uw nieuwe thuis? Neem dan snel contact op voor het maken van een afspraak.
Indeling
Entree, v.v. meterkast.
Woonkamer, 20,5 m² v.v. laminaatvloer, airco en houtkachel.
Keuken, 9 m² v.v. laminaatvloer, kookplaat, oven en afzuiging.
Gang, 9,5 m² v.v. plavuizen.
Badkamer, 12 m² v.v. dubbele wastafel, inloopdouche en aansluiting voor witgoed.
Toilet
Slaapkamer, 13 m² v.v. plavuizen
Diversen:
Vrijstaand garage 46 m², v.v. zonnepanelen, houtkachel en elektra.
Overkapping
Berging achter de garage
Eerste verdieping
Overloop, v.v. laminaatvloer, met vlizo-trap naar de bergzolder.
Slaapkamer 1, 12,5 m² v.v. laminaatvloer.
Slaapkamer 2, 11 m² v.v. laminaatvloer.
Tweede verdieping
Zolderberging, toegankelijk d.m.v. vlizotrap.
Tuin
Voortuin, 90 m², v.v. sierhek en gazon.
Achtertuin, 426 m² v.v. een terras, overkapping en gazon, gelegen op de avondzon (westen)
Oprit, 27 meter, geheel bestraat.
Bijzonderheden
* Sfeervolle jaren '30 woning.
* Royale aanbouw met slaapkamer en een luxe badkamer beneden.
* De woning is geheel gemoderniseerd en goed onderhouden.
* Vrijstaande garage met overkapping, recent geplaatst.
* De woning is voorzien van 12 zonnepanelen.
* Energielabel A !
* Er is een houtkachel in de woonkamer en in de garage.
* Ruime achtertuin op het Westen.
* Gelegen op loopafstand van basisschool en nabij voorzieningen.
* Sportvelden, sportscholen op enkele minuten afstand gelegen.