Beschrijving
Op een fijne en rustige locatie in Veendam staat deze sfeervolle en verrassende eengezinswoning met een unieke indeling. De woning onderscheidt zich door de vide in de woonkamer, wat zorgt voor een speels effect, extra licht en een ruimtelijk gevoel. Hier woon je net even anders – met karakter, warmte en volop mogelijkheden om het huis verder naar eigen smaak te moderniseren.
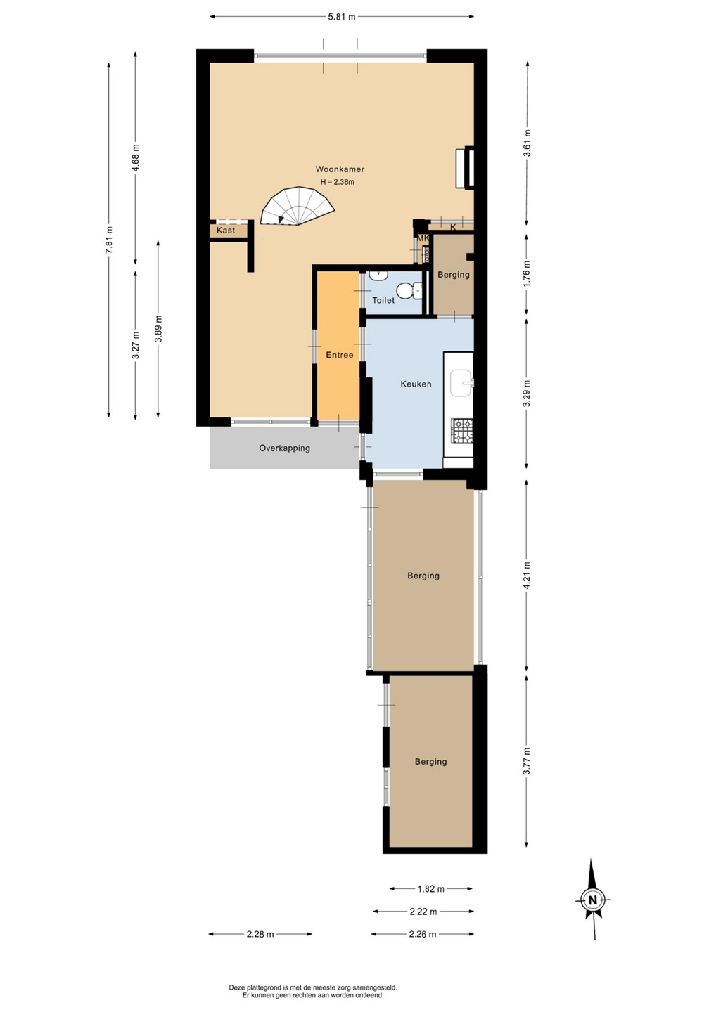
Via de entree met laminaatvloer en fraai schoonmetselwerk kom je binnen in de woning. De woonkamer is tuingericht, uitgevoerd in een L-vorm en voorzien van een laminaatvloer, een schouw en openslaande deuren naar de achtertuin. De vide en de wenteltrap geven deze ruimte een uniek en open karakter en maken het tot een heerlijke plek om te zijn. De keuken is praktisch ingericht met een inbouwkeuken voorzien van inductiekookplaat, afzuigkap en spoelbak. Daarnaast is er een handige voorraadruimte en aansluiting voor het witgoed. Daarnaast is er een toiletruimte op de begane grond gesitueerd.
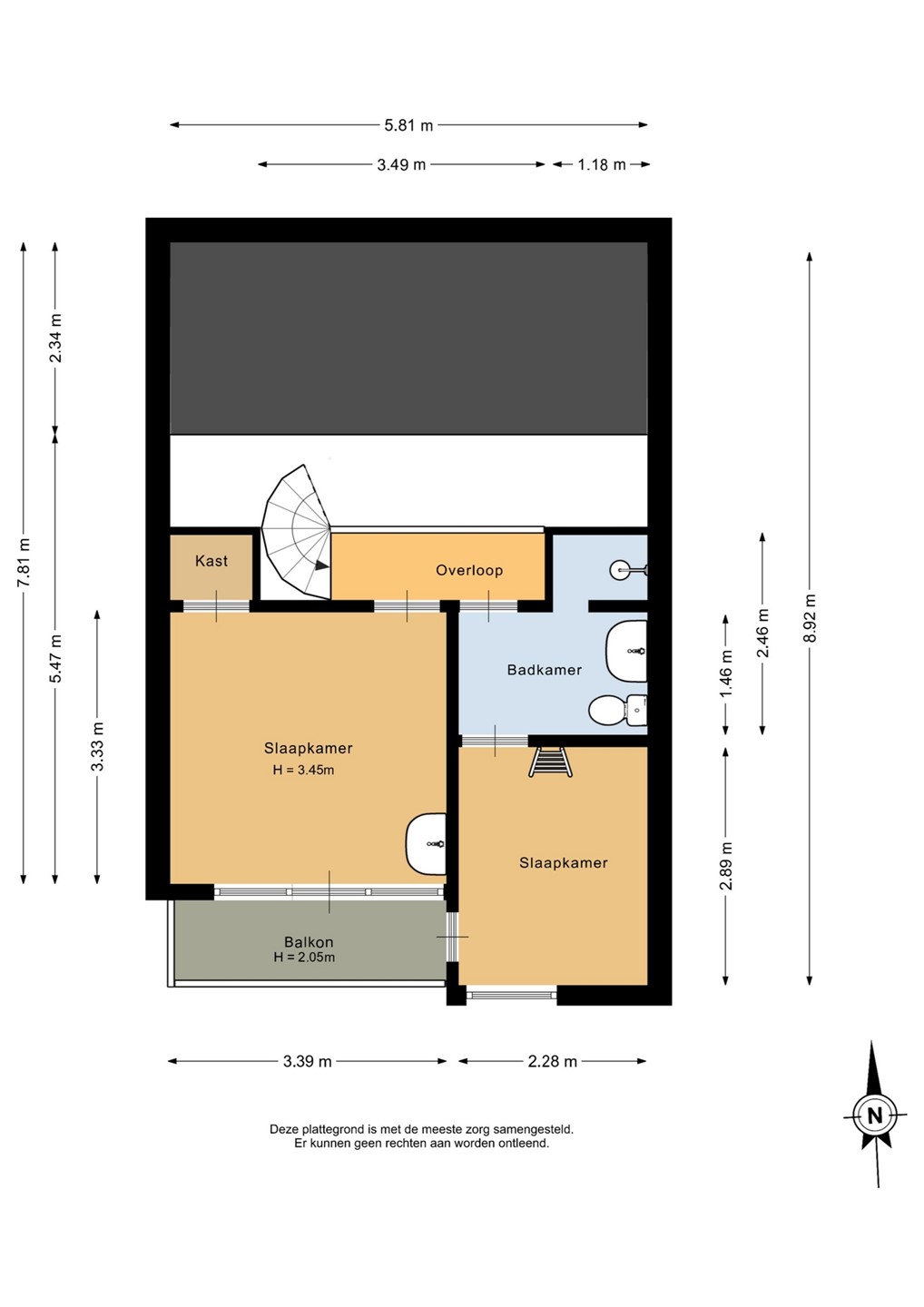
Op de eerste verdieping kom je via de overloop/vide, die opnieuw dat open en lichte gevoel benadrukt. Hier bevinden zich twee slaapkamers, waarvan één met een speelse slaapzolder en toegang tot het balkon. De andere slaapkamer beschikt over een laminaatvloer en heeft eveneens toegang tot het balkon. De badkamer beschikt over een douche, een wastafel en een toilet (type: sani-broyeur). Het balkon, bereikbaar vanuit beide slaapkamers, is gelegen op het noorden en biedt een fijne plek om buiten te zitten.
Buiten is er zowel aan de voor- als achterzijde een tuin gelegen. De voortuin is te bereiken via de woonkamer en is royaal, ligt op het zuiden en biedt een vrij uitzicht, wat bijdraagt aan het open en rustige gevoel van de woning. De achtertuin is onderhoudsvriendelijk en gelegen op het noorden. Daarnaast zijn er twee bergingen: een stenen fietsenberging met onder andere de postbus en CV-opstelling, en een houten berging met veel raampartijen grenzend aan de woning.
De woning is recent voorzien van een vernieuwd dak in 2024 door middel van nieuwe dakpannen en folie. Daarnaast zijn bijna alle vertrekken afgewerkt met een laminaatvloer en als extra is de woning op korte termijn te aanvaarden.
Veendam is een prettige en complete woonplaats met een goede balans tussen rust en voorzieningen. Winkels, supermarkt en basisschool bevinden zich op loopafstand en ook sportfaciliteiten, groenvoorzieningen en openbaar vervoer zijn dichtbij. De bereikbaarheid is goed en het wooncomfort is hoog, wat Veendam tot een fijne plek maakt voor jong en oud.
Een sfeervolle en unieke woning met karakter, licht en ruimte, op een fijne plek in Veendam. Ben je op zoek naar een huis dat nét even anders is en dat je verder naar eigen smaak kunt maken? Dan is Dominee Sannesstraat 160 absoluut een bezichtiging waard. Neem dus direct contact op met de makelaars van Ommeland Makelaardij en we zien elkaar bij de woning !
Indeling
Entree, 4 m², v.v. laminaatvloer en schoonmetselwerk.
Toilet, v.v. staand toilet met fonteintje en geheel betegeld.
Woonkamer, 33 m², gelegen in een L-vorm, v.v. tuindeuren, laminaatvloer, wenteltrap en schouw.
Keuken, 7 m², v.v. plavuizen, een voorraadruimte en een inbouwkeuken met een inductiekookplaat, afzuigkap, spoelbak en aansluiting voor het witgoed.
Diversen:
Berging (steen), 7 m², fietsenberging met o.a. de postbus en opstelling combi-ketel.
Berging (hout), 9 m², grenzend aan de woning en met veel raampartijen.
Eerste verdieping
Overloop / Vide, 4 m², v.v. een laminaatvloer.
Slaapkamer, 12 m², v.v. een laminaatvloer.
Slaapkamer, 7 m², v.v. een houten vloer, een slaapzolder van 4 m² en toegang tot het balkon.
Badkamer, 5 m², v.v. douche wastafel en toilet (sani-broyeur)
Balkon, 3 m², gelegen op het Noorden en via beide slaapkamers te bereiken.
Balkon
Balkon, 3 m², gelegen op het Noorden en via beide slaapkamers te bereiken.
Tuin
Voortuin, 61 m², gelegen op het Zuiden.
Achtertuin, 39 m², gelegen op het Noorden.
Bijzonderheden
* Sfeervolle eengezinswoning
* Dak is voorzien van folie en nieuwe dakpannen in 2024
* Vrij uitzicht aan voorzijde
* De woning is op korte termijn te aanvaarden
* Bijna alle vertrekken v.v. een laminaatvloer
* Tuingerichte woonkamer met openslaande deuren
* Op loopafstand van winkels, basisschool en supermarkt
* De woning is nog naar eigen smaak te moderniseren