Beschrijving
Instapklare en energiezuinige gezinswoning op een toplocatie !
Ben je op zoek naar een sfeervolle woning waar je zó in kunt trekken én die helemaal klaar is voor de toekomst? Dan is deze nette en goed onderhouden woning absoluut het bekijken waard. Met vier slaapkamers, een tuingerichte woonkamer, energielabel A en voldoende parkeergelegenheid is dit een ideale plek voor starters en jonge gezinnen.
De woning is de afgelopen jaren op meerdere punten verbeterd en verduurzaamd, hierdoor is deze comfortabele en sfeervolle woning klaar voor de toekomst met lage energielasten.
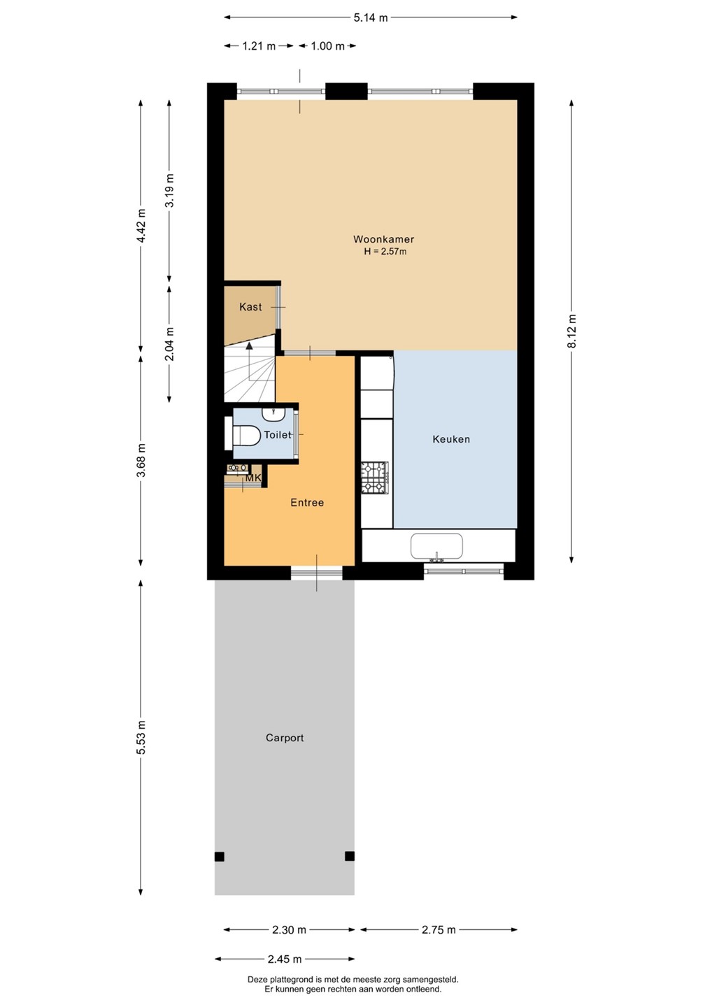
De woning is te betreden middels de ruime entree/hal met laminaatvloer en de trapopgang naar de eerste verdieping. Vanuit de hal is de toiletruimte bereikbaar, voorzien van een hangcloset en fonteintje. De tuingerichte woonkamer (22 m²) is licht en sfeervol dankzij de vele raampartijen en de deur naar de achtertuin, daarnaast is er een praktische voorraadkast aanwezig.
De open keuken (10 m²) is uitgevoerd in een hoekopstelling en voorzien van een inbouwkeuken met 1¼ spoelbak, 4-pits gaskookplaat, afzuigkap, koelkast, vriezer en vaatwasser. Ook hier ligt een laminaatvloer, wat zorgt voor een rustige en uniforme uitstraling.
De eerste verdieping biedt de navolgende indeling; een overloop met vaste trap naar de tweede verdieping, 3 ruime slaapkamers (10 - 13 - 6,5 m²) en een badkamer (5 m², vernieuwd in 2017), deze is compleet uitgevoerd met wastafelmeubel, hangcloset, ligbad, inloopdouche en designradiator.
De tweede verdieping biedt naast de overloop, toegang voor de 4e slaapkamer 10,5 m² met dakraam en een wasruimte met opstelling witgoed, combi-ketel en omvormer van de zonnepanelen.
Deze fijne woning beschikt over een voor- en een achtertuin. De voortuin (ca. 33 m²), volledig bestraat en voorzien van carport en parkeerruimte en de achtertuin (ca. 46 m²), gelegen op het zuidoosten, onderhoudsvriendelijk en beschikt over een achterom. Daarnaast is er een vrijstaande fietsenberging (ca. 6 m²) met elektra, ideaal voor fietsen en opslag.
Dankzij diverse energiebesparende maatregelen beschikt de woning over een energielabel A. zo zijn o.a. de vloer en de spouwmuren na-geïsoleerd en zijn er 8 zonnepanelen aangebracht.
De woning ligt in een rustige, kindvriendelijke buurt, het centrum bevindt zich op ca. 3 minuten lopen en het trein- en busstation op ca. 5 minuten. Alle dagelijkse voorzieningen zijn dus binnen handbereik.
Kortom: een comfortabele, duurzame en complete woning op een uitstekende locatie. Maak snel een afspraak met de makelaars van Ommeland Makelaardij en we zien jullie graag bij de bezichtiging !
Indeling
Entree/hal, 5.5 m², v.v. een laminaatvloer en met een trapopgang en meterkast
Toiletruimte, v.v. (hang)closet en fonteintje.
Woonkamer, 22 m², v.v. een laminaatvloer, tuingericht wonen met tuindeur en v.v. een voorraadkast.
Open keuken, 10 m², met laminaatvloer en een inbouwkeuken in hoekopstelling v.v. een 1¼ spoelbak, 4-pits gaskookplaat, afzuigkap, koelkast, vriezer en vaatwasser.
Diversen:
Vrijstaande fietsenberging, 6 m², v.v. elektra.
Carport, 13 m².
Eerste verdieping
Overloop, 2.5 m², met een vaste trap naar de 2e verdieping
1e slaapkamer, 10 m², met stucwerk, v.v. dakraam.
2e slaapkamer, 13 m², met stucwerk.
3e slaapkamer, 6.5 m², met stucwerk.
Badkamer, 5 m², met een wastafelmeubel, (hang)closet, ligbad, inloopdouche en designradiator.
Tweede verdieping
Overloop, 2.5 m², v.v. dakluik.
4e slaapkamer, 10.5 m², v.v. dakraam.
Wasruimte, 5 m², v.v. opstelling witgoed, combi-ketel en omvormer.
Tuin
Voortuin, 33 m², geheel bestraat en v.v. carport en parkeerruimte.
Achtertuin, 46 m², gelegen op het Zuid-Oosten, onderhoudsvriendelijk en met een achterom.
Bijzonderheden
De woning heeft de navolgende verbeteringen ondergaan;
2017 de badkamer vervangen
2021 Ventilatiebox vernieuwd (t.b.v. keuken en badkamer)
2023 Vloerisolatie aangebracht en bodemisolatie
2023 Zonnepanelen 8x geplaatst
2024 Spouwmuurisolatie aangebracht
2024 Plat dak van de schuur vervangen (bitumen)
* Er is daardoor een energielabel A geplaatst.
* De woning is sfeervol en netjes onderhouden.
* Een tuingerichte woonkamer met veel raampartijen.
* Er zijn maar liefst 4 slaapkamers aanwezig.
* Daarnaast is er een aparte wasruimte op de 2e verdieping.
* De woning beschikt over een carport aan de voorzijde.
* Achter de woning zijn tevens parkeerplaatsen aanwezig.
* De achtertuin is onderhoudsvriendelijk aangelegd.
* Het centrum is op ca 3 minuten lopen gelegen.
* Het trein-/busstation is op ca 5 minuten gelegen.