Beschrijving
Deze verzorgde twee-onder-een-kapwoning met een goede en levensloopbestendige indeling is gelegen aan de Langeleegte. De woning is goed gelegen met aan de achterzijde grenzend aan de vijverpartij, op steenworp afstand van recreatiegebied Borgerswold aan de voorzijde en nabij allerlei sportgelegenheden. De woning beschikt dus over een slaapkamer en badkamer op de begane grond, heeft vloerverwarming in de aanbouw en een separate garagebox.
De woning beschikt op de begane grond over een entree met plavuizen vloer, meterkast en witgoedaansluiting. Vanuit de hal is er toegang tot het toilet met fonteintje. De woonkamer (ca. 15,5 m²) is aan de voorzijde van het pand gelegen en is voorzien van een laminaatvloer, een prettige leefruimte. De open keuken (ca. 14 m²) beschikt over een inbouwkeuken met onder andere een 4-pits gaskookplaat, afzuigkap, oven en een koelkast, daarnaast is de trapopgang naar de verdieping hier ook gesitueerd. De badkamer (ca. 6 m²) is gelegen in de aanbouw en is compleet uitgevoerd met een ligbad, douchecabine, wastafelmeubel en toilet. De slaapkamer op de begane grond (ca. 14 m²) bevindt zich aan de achterzijde en is voorzien van vloerverwarming en heeft directe toegang tot de tuin.
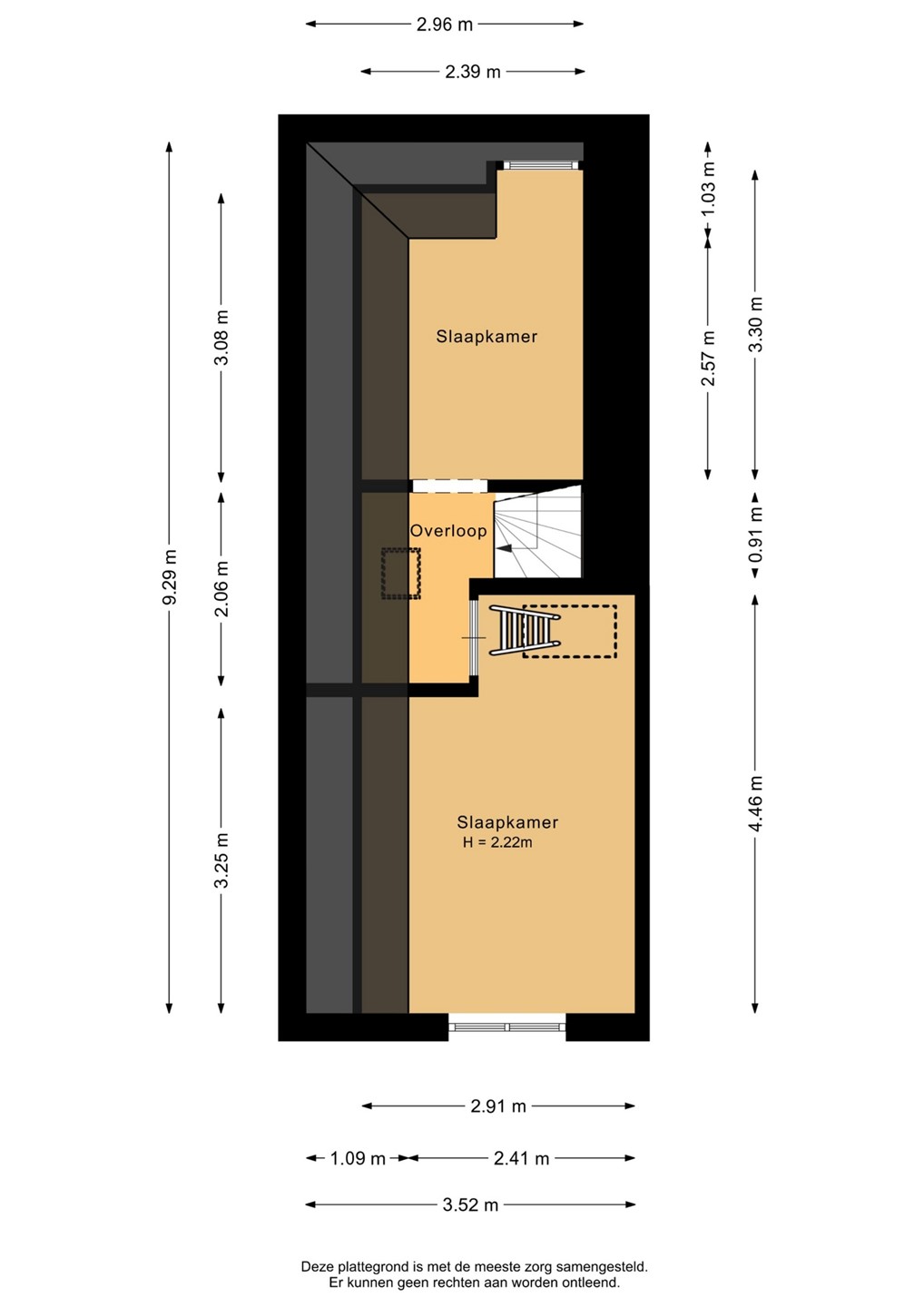
Op de eerste verdieping is deze woning voorzien van een overloop met een dakraam en twee slaapkamers van respectievelijk ca. 7,4 m² en 10,7 m², waarvan één met toegang tot de vliering. De tweede verdieping is middels de vlizotrap bereikbaar en biedt een ruime vliering.
De achtertuin beschikt over een overkapping, een houten berging én een separate garagebox, geschikt voor het stallen van fietsen, opslag van tuinmeubilair of andere praktische doeleinden. De woning is voorzien van kunststof kozijnen met HR++ glas en beschikt over energielabel D.
Deze sfeervolle en functionele woning heeft een prettige indeling en biedt door de aantrekkelijke vraagprijs de mogelijkheid om modernisering aan te brengen. Wil je de woning bezichtigen, maak dan een afspraak met de makelaars van Ommeland Makelaardij en we zien u bij deze en geschikt voor verschillende doelgroepen.
Indeling
Entree, v.v. plavuizen, witgoedaansluiting en meterkast.
Toilet met fonteintje.
Woonkamer, 16 m², v.v. laminaatvloer.
Keuken, 14 m², v.v. laminaatvloer, inbouwkeuken met 4-pits gaskookplaat, afzuigkap, oven en koelkast. Daarnaast de trapopgang naar de verdieping.
Badkamer, 6 m², v.v. een ligbad, douchecabine, wastafelmeubel en toilet.
Slaapkamer, 14 m², v.v. vinyl en toegang tot de tuin.
Eerste verdieping
Overloop, v.v. vloerbedekking en dakraam.
1e slaapkamer, 7,4 m², v.v. vloerbedekking.
2e slaapkamer, 10,7 m², v.v. vloerbedekking en toegang tot de vliering.
Tweede verdieping
Vliering toegankelijk via vlizotrap.
Tuin
Voortuin, ingericht als siertuin en bestrating.
Achtertuin, gelegen op het Noorden met een diepte van 40 meter en grenzend aan vijverpartij.
Bijzonderheden
* Sfeervolle 2/1kapwoning
* Grotendeels v.v. kunststof kozijnen
* Slaapkamer en badkamer op de begane grond
* Deels v.v. vloerverwarming
* Verdieping met nog eens 2 slaapkamers
* Diepe tuin en grenzend aan vijver
* Op loopafstand van Borgerswold en sportgelegenheden.
* Aanvaarding in overleg