Beschrijving
Deze moderne en instapklare hoekwoning is ideaal voor starters die comfortabel willen wonen nabij alle voorzieningen zoals scholen, winkels, sport en recreatie. De woning is recent gemoderniseerd, heeft een frisse kleurstelling en beschikt over een luxe keuken, badkamer en drie slaapkamers.
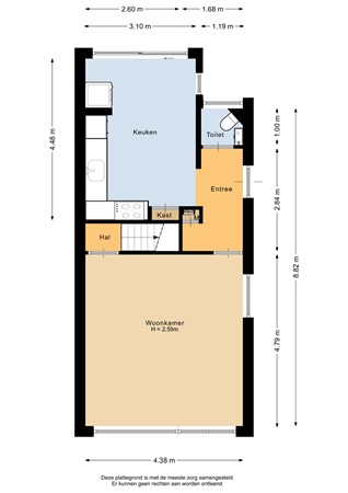
Via de entree met meterkast kom je in de woning. Hier bevinden zich ook het toilet en de toegang tot de lichte woonkamer, die is voorzien van een moderne visgraat laminaatvloer, airconditioning en een zonnescherm. Aansluitend bevindt zich de uitgebouwde keuken, voorzien van plavuizen en een moderne inbouwkeuken met inductiekookplaat, oven, vaatwasser, koelkast en een schuifpui naar de achtertuin. Tevens zijn hier de aansluitingen voor wasmachine en droger aanwezig.
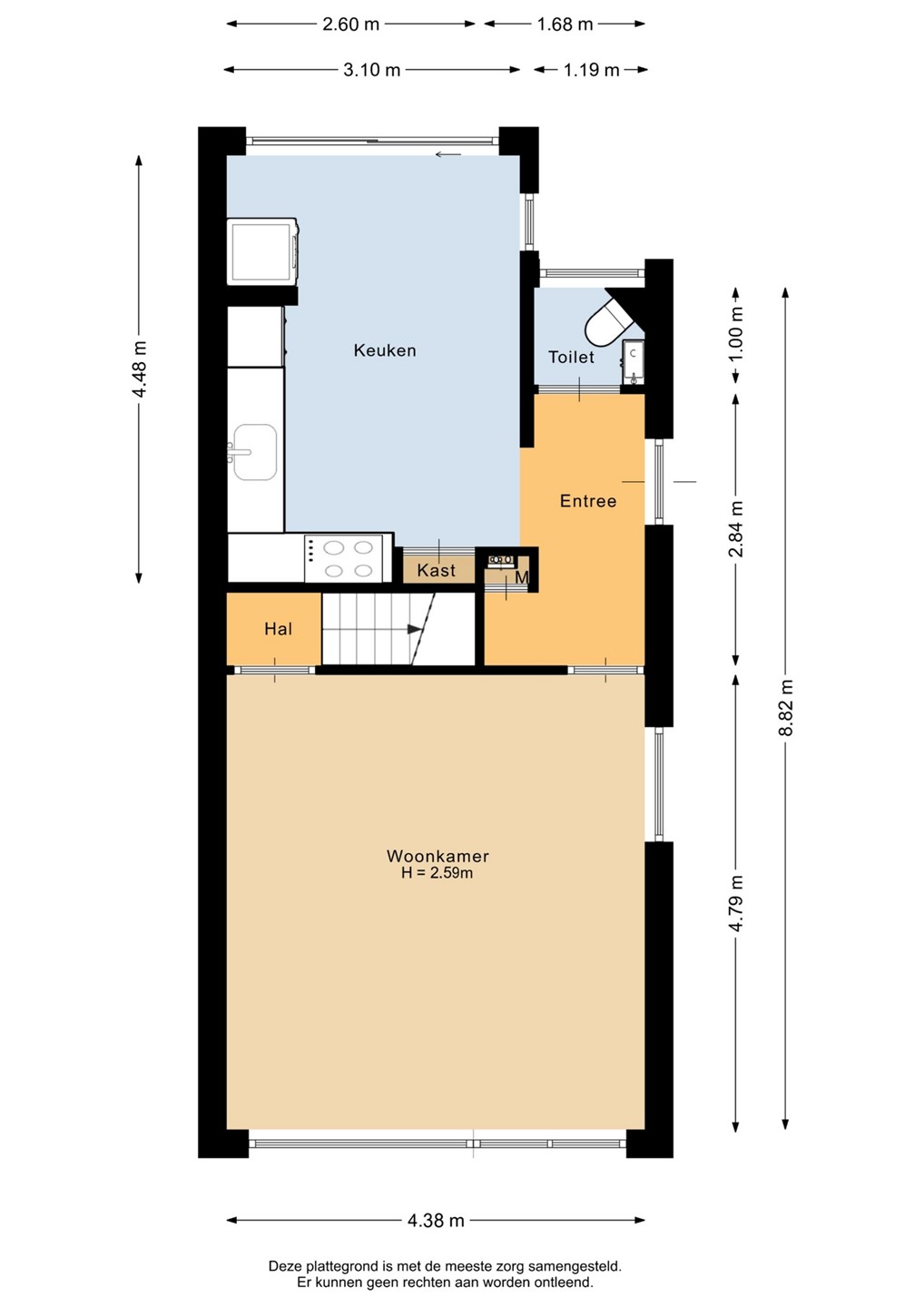
Op de eerste verdieping geeft de overloop toegang tot drie slaapkamers, allen voorzien van een laminaatvloer. De badkamer, gerenoveerd in 2025, beschikt over een douche, wastafelmeubel en een dakkoepel voor extra daglicht.
Buiten is er een onderhoudsvriendelijke tuin met een voortuin op het oosten, een zijtuin op het noorden en een achtertuin op het westen. Daarnaast is er een ruime berging met elektra en de CV-installatie (2020).
De woning is de afgelopen jaren grotendeels vernieuwd en verduurzaamd met onder andere een uitbouw, nieuw dak, zonnepanelen, HR++ beglazing, vloer-, muur- en dakisolatie. Hierdoor is het hier comfortabel én energiezuinig wonen.
Wilt u deze moderne en gerenoveerde woning bezichtigen ? Maak dan een afspraak met de makelaars van Ommeland Makelaardij en u bent van harte welkom !
Indeling
Entree, 3 m², v.v. plavuizen en meterkast.
Toilet, v.v. plavuizen en een fonteintje.
Woonkamer, 21 m², v.v. laminaatvloer (visgraat), zonnescherm en airco.
Uitgebouwde keuken, 14 m², v.v. plavuizen, met een inbouwkeuken v.v. inductiekookplaat, afzuigkap, oven, vaatwasser, koelkast, airco, aansluiting wasautomaat en droger en schuifpui naar achtertuin.
Diversen:
Berging, 18 m² v.v. CV installatie en elektra.
Eerste verdieping
Overloop, 4 m², v.v. laminaatvloer en airco.
1e slaapkamer, 13 mm², v.v. een laminaatvloer en structuur.
2e slaapkamer, 8 m², v.v. een laminaatvloer.
3e slaapkamer, 8 m², v.v. een laminaatvloer.
Badkamer, 2 m², v.v. betegeling, douche, wastafelmeubel en een dakkoepel.
Tuin
Voortuin, 21 m² gelegen op het Oosten.
Zijtuin, 22 m² gelegen op het Noorden.
Achtertuin, 37 m² gelegen op het Westen.
Bijzonderheden
* Moderne en goed onderhouden hoekwoning
* 2024 Uitbouw van keuken met schuifpui naar achtertuin.
* 2024 dak vervangen, (10 cm PIR)
* 2024 10 zonnepanelen geplaatst.
* 2024 nieuwe keuken geplaatst met inbouwapparatuur.
* 2024 HR++ beglazing geplaatst
* 2020 Combiketel vervangen
* 2025 Badkamer gerenoveerd
* 2024 Muurisolatie (EPS korrels)
* Vloerisolatie middels PUR en PIR platen (houten vloer)
* Onderhoudsvriendelijke tuin