Beschrijving
Energiezuinige gezinswoning met garage en ideale ligging nabij Borgerswold, de Rensel 29 in Veendam heeft het !
In een rustige en kindvriendelijke woonwijk (RIvierenbuurt) van Veendam staat deze verzorgde en energiezuinige woning met garage, een fijne tuin en volop leefruimte. Met een woonoppervlak van circa 108 m², een perceel van 258 m², energielabel A en maar liefst 10 zonnepanelen is dit een comfortabel en toekomstgericht huis op een toplocatie.
De woning is gebouwd in 1974 en beschikt grotendeels over kunststof kozijnen met HR++ glas, keralit gevelbeplating en een geïsoleerd dak, waardoor u direct geniet van een onderhoudsarm geheel en een prettig wooncomfort.
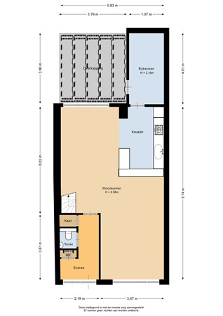
Via de ruime entree met laminaatvloer en meterkast betreedt u de woning. De toiletruimte is tevens voorzien van een fonteintje. De royale woonkamer van ca. 40 m² is heerlijk licht en biedt volop ruimte voor een gezellige zithoek en een grote eettafel. De laminaatvloer en de aanwezige buitenzonwering zorgen voor comfort in elk seizoen. De keuken is open en praktisch ingericht, voorzien van een 4-pits gasfornuis, afzuigkap, oven, koelkast en een dubbele spoelbak. Aansluitend bevindt zich de bijkeuken, ideaal voor extra bergruimte. Vanuit de woning is er toegang tot de overkapping, een fijne plek om beschut buiten te zitten en lang te genieten van het buitenleven.
Op de eerste verdieping bevinden zich drie prima slaapkamers, waarvan één royale slaapkamer met wastafel. De overige kamers zijn praktisch en licht, mede dankzij de dakramen. De badkamer is voorzien van een douchecabine, wastafelmeubel, een 2e toilet en een dakraam. De tweede verdieping bestaat uit een volledig geïsoleerde zolderberging, bereikbaar via een vlizotrap – ideaal voor extra opslag.
De woning beschikt over een verzorgde voortuin op het zuidwesten, waar u heerlijk van de zon kunt genieten. De achtertuin is gelegen op het noordoosten en biedt volop ruimte, privacy en een fraaie overkapping van ca. 15 m². Een fijne plek voor lange zomeravonden of beschut buiten zitten in het voor- en najaar. De aanwezigheid van een eigen garage maakt het geheel extra praktisch.
Veendam is een prettige en complete woonplaats met een fijne mix van rust, groen en voorzieningen. De woning ligt op steenworp afstand van basisscholen en het geliefde recreatiegebied Borgerswold, waar u kunt wandelen, fietsen, zwemmen en ontspannen in het groen. Daarnaast zijn winkels, sportvoorzieningen en uitvalswegen goed bereikbaar, wat Veendam tot een ideale woonplek maakt voor gezinnen.
Dit energiezuinige woonhuis biedt de perfecte start voor de (jonge) starters en gezinnen, die op zoek zijn naar een centraal gelegen, goed onderhouden woning nabij alle essentiële voorzieningen. Een unieke kans om sfeervol te wonen in de gewilde Rivierenbuurt van Veendam. Wilt u deze ruime duurzame woning ook bezichtigen? Maak dan een afspraak met ons kantoor, u bent van harte welkom!
Indeling
Entree, 6 m², v.v. een laminaatvloer en meterkast.
Toilet, v.v. plavuizen en een fonteintje.
Woonkamer, 40 m², v.v. een laminaatvloer en zonwering buiten.
Keuken, 9 m², v.v. een laminaatvloer, 4-pits gasfornuis, afzuigkap, oven, koelkast en dubbele spoelbak.
Bijkeuken, 8 m², v.v. plavuizen.
Diversen:
Overkapping 15 m².
Garagebox, 16 m², op 25 meter van de woning gelegen.
Eerste verdieping
Overloop, 2 m², v.v. een laminaatvloer.
Hal, 3 m², v.v. een laminaatvloer, inbouwkast en vlizo trap.
1e Slaapkamer, 14 m², v.v. een laminaatvloer en wastafel.
2e Slaapkamer, 12 m², v.v. plavuizen en een dakraam.
3e Slaapkamer, 9 m², v.v. plavuizen en een dakraam.
Badkamer, 8 m², v.v. plavuizen, douchecabine, wastafelmeubel, toilet en dakraam.
Tweede verdieping
Zolderberging, middels vlizotrap te bereiken en volledig geïsoleerd.
Tuin
Voortuin, 40 m², gelegen op het Zuidwesten.
Achtertuin, 78 m², gelegen op het Noordoosten met een fraaie overkapping.
Bijzonderheden
* Energiezuinige woning met een energielabel A.
* 10 zonnepanelen
* Kunststof kozijnen met HR++ glas en keralit gevelbeplating
* Voorzien van buiten zonwering voor extra comfort in de zomer
* Praktische bijkeuken.
* Ruime achtertuin met overkapping 15m²
* Op loopafstand van basisschool, "Borgerswold" en voorzieningen.