Beschrijving
In de rustige en geliefde wijk Sorghvliet staat deze goed onderhouden, gemoderniseerde en verrassend ruime eengezinswoning. Een huis waar je direct kunt intrekken, met een moderne keuken, badkamer en toilet (allemaal vernieuwd in 2025), goede isolatie en maar liefst vier slaapkamers. Ideaal voor starters of jonge gezinnen die op zoek zijn naar een comfortabel thuis.
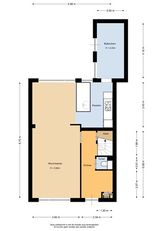
Via de entree met hal (8,5 m²) betreed je de woning. Hier vind je de meterkast, een handige trapkast en het vernieuwde toilet. Middels de stijlvolle schuifdeur is de naastgelegen ruime woonkamer (31,5 m²) gelegen deze is licht door de grote raampartijen, is keurig afgewerkt en voorzien van een nette laminaatvloer. De open keuken (9,6 m²) is in 2025 voorzien van een showroom keuken en heeft daardoor een moderne uitstraling en beschikt over een spoeleiland met klimaatkast. Uiteraard ontbreekt het niet aan inbouwapparatuur: een vaatwasser, 5-pits gaskookplaat, afzuiging, oven en koelkast maken koken hier een feestje. Aansluitend bevindt zich de bijkeuken (8,6 m²) met laminaatvloer en witgoedaansluiting – een ideale plek voor extra opslag of het doen van de was.
Op de verdieping beschikt deze woning ook over verrassend leuke extra's. De overloop (4,5 m²) biedt toegang tot vier slaapkamers en een tweede toilet. De badkamer is in 2025 vervangen en is modern, een inloopdouche en een strak wastafelmeubel maken het geheel compleet. De slaapkamers (ca. 5 m² – 13,5 m²) hebben allemaal een laminaatvloer en één kamer beschikt zelfs over airconditioning.
De 2e verdieping is op dit moment niet ingedeeld, de ruime zolder (25,5 m²) is bereikbaar via een vlizotrap en beschikt al over een groot dakraam. Met de aanleg van een vaste trap kun je hier een volwaardige extra kamer creëren – perfect als werkruimte, hobbykamer of vijfde slaapkamer.
De voortuin (26 m²) is verzorgd aangelegd als siertuin, terwijl de achtertuin (33 m²) is voorzien van bestrating, gras en heeft een achterom. Een fijne plek om in de zomer te ontspannen of gezellig te barbecueën. Alles wat u nodig heeft – winkels, scholen, sportvelden en het openbaar vervoer – ligt op loopafstand. Bovendien bevindt het heerlijke en groene natuur- en recreatiegebied Borgerswold zich op steenworp afstand: ideaal voor een wandeling, fietstocht of een ontspannen middag aan het water. Binnen enkele minuten bereikt u de N33, waardoor Groningen en Assen uitstekend bereikbaar zijn.
Bent u op zoek naar een instapklare woning met luxe en een hoog afwerkingsniveau? Dan zien we u graag bij deze woning. Maak vandaag nog een afspraak met de makelaars van Ommeland Makelaardij voor een persoonlijke bezichtiging.
Indeling
Entree/hal, 8,5 m², v.v. laminaatvloer, meterkast en een trapkast.
Toilet, vernieuwd in 2025.
Woonkamer, 31,5 m², v.v. laminaatvloer en schuifdeur naar de hal.
Open keuken, 9,6 m², v.v. laminaatvloer, wandpanelen, spoeleiland met klimaatkast, vaatwasser, 5-pits gaskookplaat, afzuiging, oven en koelkast.
Bijkeuken, 8,6 m², v.v. laminaatvloer en witgoed aansluiting.
Eerste verdieping
Overloop, 4,5 m², v.v. laminaatvloer en toegang tot de zolder.
Toilet op de verdieping.
Badkamer, 3,2 m², vernieuwd in 2025, v.v. inloopdouche en wastafelmeubel.
Slaapkamer 1, 8,3 m², v.v. laminaatvloer.
Slaapkamer 2, 13 m², v.v. laminaatvloer en airco.
Slaapkamer 3, 13,5 m², v.v. laminaatvloer.
Slaapkamer 4, 5 m², v.v. laminaatvloer.
Tweede verdieping
Zolder, 25,5 m², toegankelijk via vlizotrap, met opstelling combi-ketel en dakraam.
Tuin
Voortuin, 26 m², ingericht als een siertuin.
Achtertuin, 33 m², grotendeels v.v. bestrating, gras en voorzien van een achterom.
Bijzonderheden
* Keuken, badkamer en toilet vernieuwd in 2025.
* Vier slaapkamers en ruime zolder met uitbreidingsmogelijkheid.
* Dak- en vloerisolatie aanwezig.
* Energielabel C !
* Moderne en luxe open keuken met spoeleiland en veel inbouwapparatuur.
* Nette vernieuwde badkamer en een separaat toilet op de 1e verdieping.
* Vernieuwde toiletruimte op de begane grond.
* Gelegen in kindvriendelijke wijk Sorghvliet, nabij Borgerswold en N33.
* Voor het huis is een speelweide gelegen met speeltoestellen.
* Instap-klaar en ideaal voor starters of jonge gezinnen.