Beschrijving
Sfeervolle en instapklare tussenwoning met zonnige tuin aan het water met energielabel A!
Deze ruime en verzorgde woning biedt alles wat u zoekt: comfort, energiezuinig wonen en een prachtige ligging. De lichte doorzonwoonkamer (33 m²) met laminaatvloer en zonwering aan de achterzijde zorgt voor een warme, huiselijke sfeer. De luxe keuken (2020) is modern uitgevoerd en voorzien van veel inbouwapparatuur zoals inductiekookplaat, afzuigkap, koelkast, vriezer, vaatwasser en combi-magnetron.
Op de eerste verdieping bevinden zich drie ruime slaapkamers met kunststof kozijnen en een moderne badkamer (2022) met dubbele wastafel, douchecabine en tweede toilet. Op de zolderverdieping vindt u dan nog een vierde slaapkamer die onlangs is voorzien van een nieuw dakraam.
Buiten geniet u van een zonnige achtertuin op het zuiden, direct grenzend aan een vijverpartij – een heerlijke plek om te ontspannen. Daarnaast beschikt de woning over een garage, een carport en houten tuinhuis. Ook zijn er in 2024 zes zonnepanelen geplaatst, wat zorgt voor lagere energiekosten en een duurzamer wooncomfort.
Deze woning is gelegen in de rivierenbuurt, op loopafstand van geliefde basisschool en recreatiepark "Borgerswold". Ook zijn voorziening zoals supermarkt dichtbij te vinden. Wilt u deze leuke gezinswoning komen bekijken? Neemt u dan contact op met de makelaars van Ommeland, wij laten deze woning graag aan u zien.
Indeling
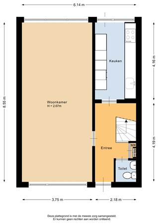
Hal, 8 m², v.v. meterkast, trapkast en laminaatvloer.
Toilet met fonteintje.
Doorzon Woonkamer, 33 m², v.v. laminaatvloer, structuur en zonwering aan de achterzijde.
Luxe gesloten Keuken, 9 m², (2020), met v.v. inbouwkeuken met enkele spoelbak, inductiekookplaat, afzuigkap, koelkast, vriezer, vaatwasser, combi-magnetron en laminaatvloer en gestucte wanden.
Diversen:
Garage, 19 m² (de toegangsdeur is nog geïnstalleerd)
Carport, 24 m²
Houten Tuinhuis, 5 m²
Eerste verdieping
Overloop, 4 m², v.v. laminaatvloer.
1e slaapkamer, 9 m²
2e slaapkamer, 12 m²
3e slaapkamer, 16 m²,
Badkamer, 4 m² met dubbele wastafelmeubel, douche+cabine, 2e toilet (VH).
Tweede verdieping
Overloop, 10 m²
4e slaapkamer, 11 m² (nieuw dakraam)
Tuin
Voortuin, 30 m², gelegen op het Noorden.
Achtertuin, 64 m², gelegen op het Zuiden en grenzend aan vijverpartij.
Bijzonderheden
* Ruime tussenwoning met 4 slaapkamers
* Er is een garage én een carport aanwezig
* Luxe Badkamer vernieuwd in 2022
* Moderne Keuken geïnstalleerd in 2020
* (2022) Waterontharder
* (2024) Zonnepanelen (6x)
* De verdieping is v.v. kunststof kozijnen.
* Dakraam zolder vervangen
* Op loopafstand van basisschool en het recreatiepark "Borgerswold"
* Heerlijke zonnige tuin aan het vijverpartij gelegen op het Zuiden.