Beschrijving
Gelegen aan het karakteristieke lint van Wildervank aan de J. Kammingastraat, staat deze sfeervolle jaren ’30 woning die historie, sfeer, comfort en luxe naadloos combineert. Met zijn statige uitstraling, royale leefruimtes en sfeervolle tuin ademt dit huis charme en degelijkheid. Het geheel wordt compleet gemaakt door een ruime garage, energiebesparende voorzieningen zoals 9 zonnepanelen en een modern afwerkingsniveau, een instapklare woning met luxe.
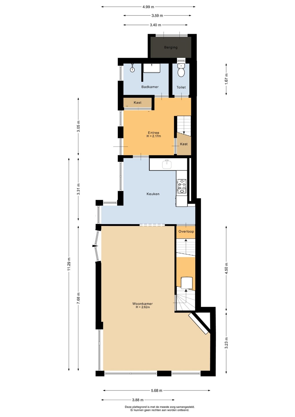
U betreedt de woning via de ruime en praktische zij-entree, met aan de linkerzijde handige inbouwkasten met schuifdeuren, ideaal voor het opbergen van jassen, schoenen en voorraad. Daarnaast biedt de entree toegang tot zowel het moderne toilet als de luxe badkamer, uitgerust met wastafelmeubel en inloopdouche. Er bevindt zich hier ook een vaste trapopgang naar een praktische ruimte die uitstekend worden ingericht als extra slaapkamer, werkplek of hobbyruimte.
Vanuit de zij-entree loopt u door naar de woonkeuken, voorzien van diverse inbouwapparatuur en veel kastruimte. De keuken vormt het hart van de woning en sluit aan op de lichte en sfeervolle woonkamer, van maar liefst 36 m², aan de voorzijde met erker, elektrische haard en het prachtige uitzicht over het Oosterdiep.
De eerste verdieping beschikt over twee slaapkamers van verschillende afmetingen, waaronder een royale hoofdslaapkamer met veel lichtinval. Oorspronkelijk waren dit drie slaapkamers, waardoor het eenvoudig mogelijk is om weer een extra (slaap)kamer te creëren middels een wand. Via een vlizotrap bereikt u de bergzolder, een praktische ruimte voor opslag of in gebruik te nemen als hobbykamer.
Achter de woning bevindt zich een grote garage (ca. 52 m²) met voldoende plaats voor auto’s, fietsen en hobbyruimte. De gezellige tuin rondom de woning biedt veel privacy, groen en mogelijkheden. Aan de achterzijde ligt een zonneterras en fraaie beplanting. Dankzij de volwassen bomen heeft de tuin een prettige balans tussen zon en schaduw.
De woning ligt in Wildervank, een dorp met een sterke sociale structuur en een breed scala aan voorzieningen, zoals scholen, winkels en sportfaciliteiten. Het centrum van Veendam bereikt u in enkele minuten, en Groningen en Assen liggen op circa 25 autominuten afstand.
Deze sfeervolle woning combineert de authentieke jaren ’30 uitstraling met hedendaags wooncomfort en duurzame voorzieningen. Een buitenkans voor wie royaal wil wonen met karakter, ruimte en een heerlijke tuin. Bent u enthousiast geworden? Neem dan contact op met Ommeland Makelaardij en Assurantiën voor een bezichtiging.
Indeling
Zij-entree/hal, ca. 7,5 m², voorzien van praktische inbouwkasten met schuifdeuren, trappenkast en trapopgang naar de vliering met cv-opstelling.
Woonkamer, ca. 36 m² , een royale en lichte leefruimte aan de voorzijde, met erker, elektrische haard en grote raampartijen. Afgewerkt met een laminaatvloer.
Keuken, ca. 10 m², nette inbouwkeuken (2010) met gaskookplaat, afzuigkap, oven, vaatwasser en koelkast.
Badkamer, ca. 6 m², modern en vernieuwd (2019), voorzien van douche en wastafelmeubel.
luxe Toilet separaat.
Kelder, ca. 7 m², praktisch voor provisie en opslag.
Diversen:
Vrijstaande garage, 52 m², met een hoogte van 3.8 m. Ideaal voor de hobbyist.
Overkapping, 12 m².
Eerste verdieping
Overloop, ca. 7 m², toegang tot slaapkamers.
1e slaapkamer, ca. 22 m², royale kamer met laminaatvloer en veel lichtinval.
2e slaapkamer, ca. 15 m², eveneens voorzien van laminaatvloer.
Tweede verdieping
Vliering, ca. 15 m², middels vlizo-trap te bereiken en voorzien van inbouwkasten en een dakraam.
Tuin
Voortuin, 13 m², gesitueerd op het oosten, volledig bestraat.
Zijtuin/oprit, 52 m², gelegen op het zuiden, volledig bestraat.
Achtertuin, 194 m², gelegen op het westen, met meerdere terrassen, gazon, bestrating en grote garage.
Bijzonderheden
* Woonoppervlakte: ca. 124 m² en perceeloppervlakte: 330 m²
* Vrijstaande garage van ca. 52 m² met bergzolder.
* Cv-installatie: Remeha Avanta 35c uit 2020, onderhouden in 2025
* 9 zonnepanelen (2020, eigendom, full black, totaal ca. 2880 Wp)
* Dak keuken vernieuwd en geïsoleerd in 2025
* Keurige keuken met veel inbouwapparatuur
* Badkamer ca. 6 jaar oud
* Vloerisolatie (2017), grotendeels kunststof kozijnen met HR++ glas
* Nieuw Energielabel: C, geldig tot september 2035
* werkkamer.