Beschrijving
Sfeervol jaren ’30 wonen op een royaal perceel in het hart van Zuidbroek
Sommige huizen voelen meteen goed. Dit is er zo één. Deze vrijstaande jaren dertig woning uit 1939 ademt karakter en warmte, met prachtige authentieke details zoals glas-in-loodramen, een kenmerkende voordeur en sfeervolle erkers aan zowel de voor- als zijkant. Dat de huidige eigenaren hier maar liefst 57 jaar met veel plezier hebben gewoond, zegt eigenlijk alles: dit is een huis waar je je thuis voelt.
De woning is altijd keurig onderhouden en biedt een solide basis voor wie houdt van charme en ruimte, met de mogelijkheid om het geheel naar eigen smaak te moderniseren. Met een woonoppervlakte van circa 100 m² en een royaal perceel van 466 m² is er volop leefruimte, zowel binnen als buiten.
Bij binnenkomst valt direct de prettige sfeer op. De entree met glas-in-loodramen zet de toon. De woonkamer is ruim en licht, een voormalige en-suite kamer met een fraaie erker aan de voorzijde én zijkant, een gashaard en karakteristiek schoonmetselwerk. Aangrenzend bevindt zich een slaapkamer of werkkamer op de begane grond, wat de woning levensloopbestendig maakt in combinatie met de eveneens op de begane grond gelegen badkamer.
De keuken is praktisch ingericht en voorzien van een inbouwkeuken met natuurstenen werkblad en diverse inbouwapparatuur. Vanuit hier is er toegang tot de kelder, ideaal als provisieruimte. De bijkeuken biedt plaats aan witgoed en de cv-installatie.
Op de eerste verdieping zijn drie slaapkamers aanwezig, allen prettig van formaat, en extra bergruimte met toegang tot de bergzolder. De tweede verdieping beschikt over een ruime bergzolder met hoge kap, bereikbaar via een steektrap.
Ook buiten is het genieten. De tuin rondom biedt voor elk moment van de dag een fijne plek: een zonnige achtertuin op het zuiden met terras en grasveld, een zijtuin met oprit en parkeergelegenheid voor meerdere auto’s, en een verzorgde voortuin. Daarnaast zijn er een vrijstaande berging en een garage aanwezig.
Deze woning combineert authentiek jaren ’30 wonen met praktische pluspunten zoals vloerisolatie middels PUR, een ruime kelder, vier slaapkamers, en een slaapkamer én badkamer op de begane grond. Extra aantrekkelijk is de overdraagbare SNN-subsidie van € 10.000,-
Zuidbroek is een levendig en actief dorp met verrassend veel voorzieningen. Zo zijn er twee supermarkten, een eigen slager, basisscholen, sportverenigingen en volop dorpsactiviteiten. De ligging is ideaal: op korte afstand van de A7, met een trein- en busstation in het dorp, waardoor Groningen en omliggende plaatsen uitstekend bereikbaar zijn. Sportvelden, winkels en scholen liggen bovendien op korte afstand van de woning.
Kortom: een sfeervolle, vrijstaande jaren dertig woning op een fijne plek, met ruimte, karakter en toekomstmogelijkheden. Een huis dat klaar is voor een nieuwe generatie bewoners om er net zo lang en met net zoveel plezier te wonen.
Wilt u deze prettige woning komen bezichtigen, maak dan een afspraak met Ommeland Makelaardij, dan plannen we gelijk een afspraak in !
Indeling
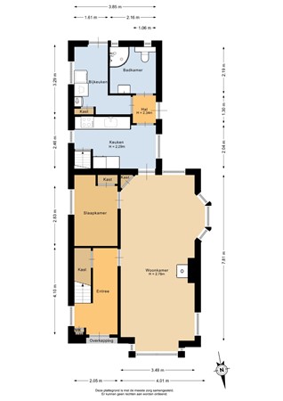
Entree, 8.4 m², met kenmerkende voordeur, glas-in-lood ramen, trapopgang en meterkast
Woonkamer, voormalige en-suite kamer, met erker aan de voorzijde en zijkant, een gashaard en schoonmetselwerk.
Slaapkamer/werkkamer, 5.7 m², grenzend aan de woonkamer.
Keuken, 9.5 m², v.v. laminaatvloer en een inbouwkeuken met natuurstenen blad, spoelbak, inductiekookplaat, afzuigkap, vaatwasser, koeler en combi-magnetron/oven en toegang tot de kelder.
Bijkeuken, 5.3 m², v.v. plavuizen met aansluiting voor het witgoed en de combiketel.
Badkamer, 4.7 m², douche met cabine, wastafelmeubel en (hang)closet.
Diversen:
Kelder, 6.75 m² met een stahoogte van 1.65 meter.
Vrijstaande berging, 17 m², v.v. betonelementen.
Vrijstaande garage, 13 m².
Eerste verdieping
Overloop, 3.6 m², v.v. inbouwkast.
1e slaapkamer, 7.7 m², gelegen aan de voorzijde van de woning.
2e slaapkamer, 7.8 m², gelegen aan de voorzijde van de woning.
3e slaapkamer, 13.1 m², gelegen aan de achterzijde van de woning.
Berging, 2 m², met toegang tot de bergzolder.
Tweede verdieping
Zolderverdieping, 12 m², middels een steektrap te bereiken bergzolder met hoge kap.
Tuin
Voortuin, 56 m², gelegen op het Noorden en ingericht als siertuin.
Zijtuin, 28 m², gelegen op het Oosten.
Zijtuin met oprit, 93 m², fraai ingericht en parkeerruimte voor meerdere auto's
Achtertuin, gelegen op het Zuiden met terras, grasveld, tuinschuur en garage.
Bijzonderheden
* Vrijstaande jaren dertig woning met authentieke details
* Slaapkamer en badkamer op begane grond
* Totaal 4 slaapkamers
* Royale woonkamer met zij-erker
* Er is een ruime kelder aanwezig
* Woning is v.v. vloerisolatie middels PUR
* Achtertuin in gelegen op het Zuiden
* Op loopafstand van sportvelden
* Nabij supermarkt, basisschool, oprit A7 en trein-/busstation
* SNN Subsidie € 10.000,- wordt overgedragen bij notaristransport.